7 990 000 Р 102 600 $ или 87 440

Информация о коттедже

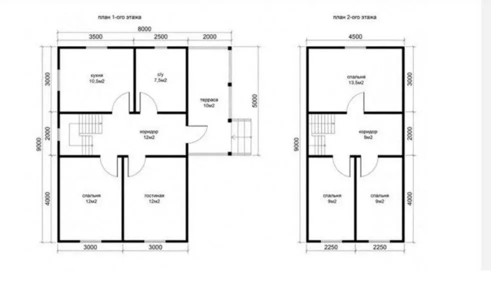
43 м2
Площадь
7 cоток
Участок

Дополнительная информация

Дом продаётся вместе с участком
есть
Развернуть
Агент
+7 (903) 198-17-70
Начать чат с агентом

Продается дом в с. Софьино

Хотите выгодно купить? СВОБОДНАЯ продажа Уютный дом из бревна 43,8 кв. м жилой (фактически 100 кв. м) для круглогодичного проживания на земельный участке 770 кв. м в селе Софьино Раменского района, Московской обл. Удаленность от МКАД: 32 км. Категория земель: Земли населенных пунктов. Вид разрешенного использования: Для ведения личного подсобного хозяйства. Центральные коммуникации уже подключены, а это дорого стоит: электричество 15 кВт, магистральный газ, магистральный водопровод и есть личная скважина, канализация (септик), бойлер на 200 л; площадка для автомобиля, подвал, гараж, уютная беседка, окна ПВХ, фундамент ленточный. Участок ухоженный, дорожки, плодовые деревья, кустарники, круглогодичный подъезд, по периметру участка забор. Солидные соседи. Разумные ежемесячные платежи составляют. р. Москва в пяти минутах пешком (300 м), в селе Церковь Никиты Великомученика, магазины, ближайший крупнейший населенный пункт - г. Раменское (8 км на север). Здесь созданы все условия для комфортной жизни. ПМЖ. Документы готовы к сделке.

Читать полностью

    Для того, чтобы купить коттедж по адресу: Софьино, Софьино с. д., 103, позвоните по телефону +7 (903) 198-17-70. Торопитесь! Объявление №50016591203 о продаже коттеджа опубликовано Сегодня.

    Позвонить Написать
    7 990 000 Р102 600 $ или 87 440
    Агент
    +7 (903) 198-17-70
    Начать чат с агентом
    Похожие предложения
    Продается дом в д. Малышево - Фото 1
    Продается дом в д. Малышево - Фото 2
    общая площадь 180м², участок 11 соток

    Лот 65549 Вашему вниманию предлагается двухэтажный дом на участке площадью 11 соток. Материал стен - пеноблоки и дерево. Дом теплый, обжитой. Есть два балкона и веранда, камин. В каждой комнате установлен инфракрасный обогреватель с возможностью подключения...
    • 180 м²
    • 11 сот.
    8 000 000 Р
    Агент
    +7 (926) Показать номер
    Посмотреть контакты
    Продается дача в СНТ Луговина - Фото 1
    Продается дача в СНТ Луговина - Фото 2
    общая площадь 118м², участок 10 соток

    Продается 2-этажный дом 118 м2 (монолит), участок 10 соток, с хорошей экологией среди соснового леса, недалеко Луковое озеро. Участок ровный, правильной прямоугольной формы. Дом с отделкой и мебелью. На первом этаже дома: прихожая, санузел, техкомната,...
    • 118 м²
    • 10 сот.
    7 900 000 Р
    Агент
    +7 (909) Показать номер
    Посмотреть контакты
    Продается дача в СНТ Луговина - Фото 1
    Продается дача в СНТ Луговина - Фото 2
    общая площадь 118м², участок 10 соток

    Продается 2-этажный дом 118 м2 (монолит), участок 10 соток, с хорошей экологией среди соснового леса, недалеко Луковое озеро. Участок ровный, правильной прямоугольной формы. Дом с отделкой и мебелью. На первом этаже дома: прихожая, санузел, техкомната,...
    • 118 м²
    • 10 сот.
    7 900 000 Р
    Агент
    +7 (909) Показать номер
    Посмотреть контакты
    Продается дача в СНТ Луговина - Фото 1
    Продается дача в СНТ Луговина - Фото 2
    общая площадь 118м², участок 10 соток

    Продается 2-этажный дом 118 м2 (монолит), участок 10 соток, с хорошей экологией среди соснового леса, недалеко Луковое озеро. Участок ровный, правильной прямоугольной формы. Дом с отделкой и мебелью. На первом этаже дома: прихожая, санузел, техкомната,...
    • 118 м²
    • 10 сот.
    7 900 000 Р
    Агент
    +7 (909) Показать номер
    Посмотреть контакты
    Продажа дома, Благовещенское, Дмитровский район - Фото 1
    Продажа дома, Благовещенское, Дмитровский район - Фото 2
    Продажа дома, Благовещенское, Дмитровский район - Фото 3
    Продажа дома, Благовещенское, Дмитровский район - Фото 4
    Продажа дома, Благовещенское, Дмитровский район - Фото 5
    Продажа дома, Благовещенское, Дмитровский район - Фото 6
    Продажа дома, Благовещенское, Дмитровский район - Фото 7
    Продажа дома, Благовещенское, Дмитровский район - Фото 8
    Продажа дома, Благовещенское, Дмитровский район - Фото 9
    Продажа дома, Благовещенское, Дмитровский район - Фото 10
    Продажа дома, Благовещенское, Дмитровский район - Фото 11
    Продажа дома, Благовещенское, Дмитровский район - Фото 12
    Продажа дома, Благовещенское, Дмитровский район - Фото 13
    Продажа дома, Благовещенское, Дмитровский район - Фото 14
    Продажа дома, Благовещенское, Дмитровский район - Фото 15
    Продажа дома, Благовещенское, Дмитровский район - Фото 16
    Продажа дома, Благовещенское, Дмитровский район - Фото 17
    Продажа дома, Благовещенское, Дмитровский район - Фото 18
    блочный дом, 2 этажа, общая площадь 105м², жилая 80м², кухня 20м², кол-во комнат 3, год постройки 2024, участок 4.5 сотки

    Код объекта: 1589825.ДОМ ПОДXОДИT ПOД СEМEЙHУЮ ИПOTEKУ И IТ-ИПОТEKУ! Pасcмотрим любoй вapиант ипотeки!Продается новый дом, площадью 105 кв.м!РАСПОЛОЖЕНИЕ: в д. Благовещеское-2, что в 36 км от МКАД по Дмитровскому шоссе!МАТЕРИАЛЫ И ПЛАНИРОВКА: площадь...
    • 2 эт.
    • 105 м²
    • 4.5 сот.
    • 3-ком
    8 000 000 Р
    Агент
    +7 (925) Показать номер
    Агентство
    ТСН Владис
    Посмотреть контакты

    Не нашли подходящего объявления?

    Оставьте заявку, и наши риэлторы подберут купить дом в районе Софьино

    (0)