105 000 000 Р 1 323 400 $ или 1 129 800

Информация о коттедже

271 м2
Площадь
2
Этажность
10 cоток
Участок

Дополнительная информация

Дом продаётся вместе с участком
есть
Развернуть
Агент
+7 (980) 141-75-13
Начать чат с агентом

Дом в Московская область, Истра муниципальный округ, д. Исаково ул. ...

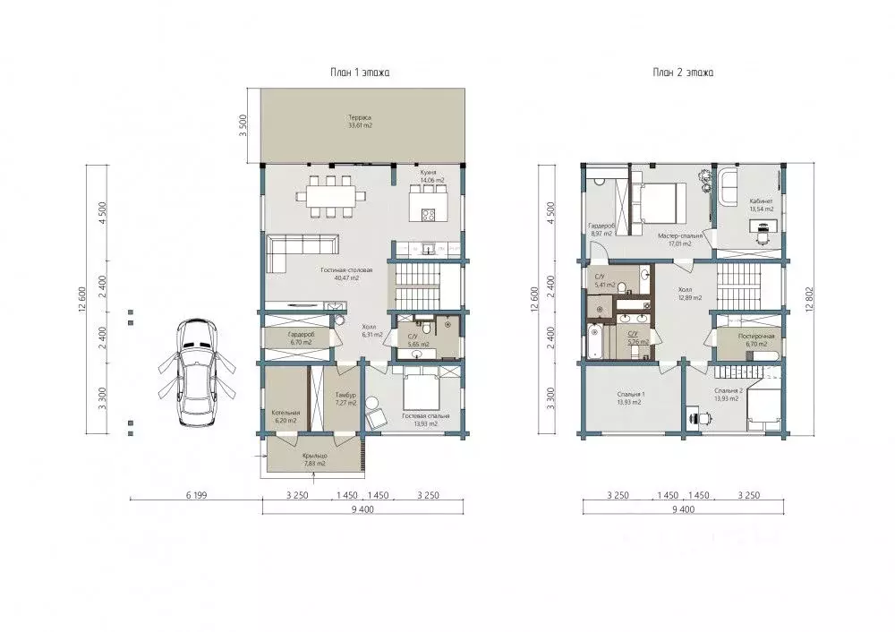
ID 8918НОВЫЙ ДОМ С 4 СПАЛЬНЯМИ. КАБИНЕТ/ГОСТЕВАЯ СПАЛЬНЯ, САУНА, ТЕПЛЫЙ ГАРАЖ И ТЕРРАСА. Расположен в КП бизнес-класса Павловы озера, 14 км от МКАД по Новорижскому шоссе.Основные преимущества дома:* Просторная кухня-гостиная с панорамными окнами: Включает 4 зоны: • Кухня с современной встроенной техникой. • Обеденная зона с большим столом на 8-12 человек • Уютная гостиная с биокамином и ТВ-зоной • Скрытая зона отдыха (хобби-рум): Пространство, которое можно адаптировать под ваши увлечения: Геймерский уголок, домашний кинотеатр + VR, детская игровая зона, спортивная зона, творческая мастерская, музыкальная студия Возможна комбинированная зона, объединяющая несколько идей в одном пространстве. • Портальные раздвижные двери, открывающий выход из гостиной на просторную террасу 37 м2. • Кабинет на первом этаже • Лестница с подсветкой и ограждение выполненное из закаленного стекла с деревянным поручнем. • Сауна из термолипы на первом этаже • Постирочная: Отдельное помещение с местом для стиральной и сушильной машин, хранения бытовых принадлежностей и удобным рабочим пространством. • Приватная зона на втором этаже: Включает 4 спальни, из которых 2 — мастер-спальни с собственными ванными комнатами и гардеробными.Дополнительно:• Электрокарнизы, тюль.• Фасадное и ландшафтное освещение• Рулонный газон премиального класса• Терраса из натуральной лиственницы сорт экстра ( 36 кв.м.)Во всем доме тройная система комфорта: вентиляция с рекуперацией, мультисплит-системы Haier и теплые полы с интегрированными конвекторами. Премиальная отделка и материалы: • Межкомнатные двери: скрытого монтажа с фурнитурой Armadillo (Италия). • Отделка стен: декоративная штукатурка и декоративные панели Ultrawood. • Отделка стен в санузлах: плитка от брендов Vitra, ARTCER (Италия) и Creatile. • Напольное покрытие: • Первый этаж (зона холла) и все санузлы — керамогранит. • Все жилые комнаты, игровая зона и гостиная — кварцвинил LVT Tarkett, уложенный по типу елочка . • Плинтуса: скрытого монтажа на первом этаже • Потолки: с теневым профилем по всему дому. Сантехника:• Системы инсталляции TECE (Германия). • Смесители и душевые системы Boheme (Италия). • Раковины и унитазы от Grossman (Германия) и Aqueduto (Португалия)Дом выстроен из натуральной керамики Porotherm, и облицован кирпичом из премиальной коллекции.

Читать полностью

    Для того, чтобы купить 2-этажный коттедж по адресу: Исаково, Садовая улица, 33, позвоните по телефону +7 (980) 141-75-13. Торопитесь! Объявление №50016624800 о продаже двухэтажного коттеджа опубликовано 09 декабря 2025.

    Позвонить Написать
    105 000 000 Р1 323 400 $ или 1 129 800
    Агент
    +7 (980) 141-75-13
    Начать чат с агентом
    Похожие предложения
    Дом в Исаково, КП Павловы озёра (271 м) - Фото 1
    Дом в Исаково, КП Павловы озёра (271 м) - Фото 2
    общая площадь 271м², участок 10 соток

    Лот №102984.1 этаж: прихожая, кухня-гостиная с биокамином и TV-зоной, хобби-рум, кабинет, гардероб, санузел с сауной из термолипы, постирочная, котельная, гараж;2 этаж: 2 спальни с ванными комнатами и гардеробными, 2 спальни с ванными комнатами, балкон.В...
    • 271 м²
    • 10 сот.
    105 000 000 Р
    Агент
    +7 (495) Показать номер
    Посмотреть контакты
    Дом в Исаково, КП Павловы озёра (391 м) - Фото 1
    Дом в Исаково, КП Павловы озёра (391 м) - Фото 2
    общая площадь 391м², участок 11 соток

    Лот №102980.Новый 2-этажный кирпичный дом 391 м2 с большой террасой в КП Павловы озера.1 этаж: кухня-гостиная 51.8 м2 с биокамином, гостевая спальня или кабинет, санузел с сауной с гималайской солью, из сауны есть выход на террасу с купелью; постирочная,...
    • 391 м²
    • 11 сот.
    110 000 000 Р
    Агент
    +7 (495) Показать номер
    Посмотреть контакты
    Дом в Московская область, Истра муниципальный округ, д. Исаково ул. ... - Фото 1
    Дом в Московская область, Истра муниципальный округ, д. Исаково ул. ... - Фото 2
    2 этажа, общая площадь 353м², участок 11 соток

    ID 8915Новый 2-этажный кирпичный дом 391 м2 в премиальной отделке с ТРЕМЯ МАСТЕР-СПАЛЬНЯМИ, СПА-ЗОНОЙ и большой угловой террасой расположен в КП бизнес-класса Павловы озера, 14 км от МКАД по Новорижскому шоссе.Чистые линии, естественный свет и продуманный...
    • 2 эт.
    • 353 м²
    • 11 сот.
    110 000 000 Р
    Агент
    +7 (980) Показать номер
    Посмотреть контакты
    Дом в Московская область, Истра муниципальный округ, д. Исаково ул. ... - Фото 1
    Дом в Московская область, Истра муниципальный округ, д. Исаково ул. ... - Фото 2
    2 этажа, общая площадь 314м², участок 9 соток

    Номер объекта: 113901Менеджер объекта: Шерер СергейКП Павловы Озёра, проект Анхель .Приглашаем на просмотр...Площадь участка9 сотокОбщая площадь дома314 м2Жилая площадь дома183 м2Кол-во этажей2Кол-во спален4Кол-во санузлов3Терраса34 м2ФундаментЖБИ плитаМатериал...
    • 2 эт.
    • 314 м²
    • 9 сот.
    111 500 000 Р
    Агент
    +7 (985) Показать номер
    Посмотреть контакты
    Дом в Московская область, Истра муниципальный округ, д. Исаково ул. ... - Фото 1
    Дом в Московская область, Истра муниципальный округ, д. Исаково ул. ... - Фото 2
    2 этажа, общая площадь 271м², участок 10 соток

    Номер объекта: 113876Менеджер объекта: Шерер СергейКП Павловы Озера, проект ТРОСТЕН .Приглашаем на просмотр.Площадь участка10,03 сотокОбщая площадь дома271,14 м2Жилая площадь дома229,20 м2Кол-во этажей2Кол-во спален4Кол-во санузлов5Терраса36,66 м2ФундаментСвайно-ростверковы...
    • 2 эт.
    • 271 м²
    • 10 сот.
    105 000 000 Р
    Агент
    +7 (985) Показать номер
    Посмотреть контакты

    Не нашли подходящего объявления?

    Оставьте заявку, и наши риэлторы подберут купить дом в районе Исаково

    (0)