114 121 600 Р 1 444 900 $ или 1 240 100

Информация об помещении

1
Этаж

Состояние и оснащение

Количество этажей
1
Развернуть
Агент
+7 (915) 374-57-90
Начать чат с агентом

Производственное помещение в Московская область, Ленинский городской ...

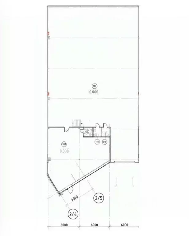
Арт.Продается производственно-складское помещение общей площадью: 713,26 кв.м, из них офисно-торговая площадь: 106,05 кв.м. Возможно увеличение площадей.Высота потолков: 8 м.Пол антипыль, с нагрузкой на пол: 5 тонн т/м2.Шаг колонн: 12х18 м.Тип ворот: доки +1.2 и ворота 0.0. Отопление: автономное.Эл. мощность 30 кВт. (возможно увеличение).Все коммуникации.Консьерж сервис. Клининговая компания.Расположен на территории индустриального парка. Это обеспечивает резидентам не только престижный статус, но и максимальную близость к МКАД, МСД и ключевой строящейся магистрали — Южно-Лыткаринской автодороге, что обеспечивает мгновенный выезд на кольцевую дорогу и доступ ко всем направлениям.На территории парка соседствуют проекты крупнейших российских компаний, включая РОСАТОМ, АКВАРИУС, GS GROUP, ВТБ, ЕКС. Это способствует повышению статуса резидентов - укрепляет доверие со стороны контрагентов, инвесторов и финансовых институтов.Также на территории имеется следующая инфраструктура: автомойка, зарядка электромобилей, лаунж-бар, кафе, кейтеринг, спортивные площадки и многое другое. Расстояние до МКАД: 10 км / 9 мин; Расстояние до ЦКАД: 30 км / 25 мин; Расстояние до МСД: 7 км / 6 мин; Расстояние до центра Москвы: 29 км / 22 мин.Общественный транспорт: Ж/д станция Расторгуево (Павелецкое направление): 5 мин/2,5 км; Метро Анино : 15 мин/12 км.Подробности по телефону, оперативный показ.

Читать полностью
    Позвонить Написать
    114 121 600 Р1 444 900 $ или 1 240 100
    Агент
    +7 (915) 374-57-90
    Начать чат с агентом
    Похожие предложения
    Производственное помещение в Московская область, Ленинский городской ... - Фото 1
    Производственное помещение в Московская область, Ленинский городской ... - Фото 2
    Арт.Продается производственно-складское помещение общей площадью: 713,26 кв.м, из них офисно-торговая площадь: 106,05 кв.м. Возможно увеличение площадей.Высота потолков: 8 м.Пол антипыль, с нагрузкой на пол: 5 тонн т/м2.Шаг колонн: 12х18 м.Тип ворот:...
    • 1/1 эт.
    114 121 600 Р
    Агент
    +7 (915) Показать номер
    Посмотреть контакты
    Производственное помещение в Московская область, Ленинский городской ... - Фото 1
    Производственное помещение в Московская область, Ленинский городской ... - Фото 2
    Арт.Продается производственно-складское помещение общей площадью: 713,26 кв.м, из них офисно-торговая площадь: 106,05 кв.м. Возможно увеличение площадей.Высота потолков: 8 м. Пол антипыль, с нагрузкой на пол: 5 тонн т/м2.Шаг колонн: 12х18 м.Тип ворот:...
    • 1/1 эт.
    114 121 600 Р
    Агент
    +7 (915) Показать номер
    Посмотреть контакты
    Производственное помещение в Московская область, Ленинский городской ... - Фото 1
    Производственное помещение в Московская область, Ленинский городской ... - Фото 2
    Арт.Продается производственно-складское помещение общей площадью: 669,45 кв.м, из них офисно-торговая площадь: 106,05 кв.м. Возможно увеличение площадей.Высота потолков: 8 мм.Пол антипыль, с нагрузкой на пол: 5 тонн т/м2.Шаг колонн: 12х18 м.Тип ворот:...
    • 1/1 эт.
    107 112 000 Р
    Агент
    +7 (915) Показать номер
    Посмотреть контакты
    Продажа производственного помещения, Ленинский район - Фото 1
    Продажа производственного помещения, Ленинский район - Фото 2
    Продажа производственного помещения, Ленинский район - Фото 3
    Продажа производственного помещения, Ленинский район - Фото 4
    Продажа производственного помещения, Ленинский район - Фото 5
    общая площадь 713.3м², полезная площадь 713.3м²

    Арт. Продается производственно-складское помещение общей площадью: 713,26 кв.м, из них офисно-торговая площадь: 106,05 кв.м. Возможно увеличение площадей. Высота потолков: 8 м. Пол антипыль, с нагрузкой на пол: 5 тонн т/м2. Шаг колонн: 12х18 м. Тип ворот:...
    • 713.3 м²
    • 1-й эт.
    114 121 600 Р
    PRO
    +7 (495) Показать номер
    Агентство
    ИП Захарова
    Посмотреть контакты
    Производственное помещение в Московская область, Видное ул. Хуторская, ... - Фото 1
    Производственное помещение в Московская область, Видное ул. Хуторская, ... - Фото 2
    Арт.Прямая продажа от застройка Готовые помещения для бизнеса в формате Light Industrial Земельный участок оформляется в собственность Свободные площади от 643 м2 (возможно объединение боксов)Высота потолков -8 метров (рабочая)Нагрузка на пол -4т/м2 Нулевые...
    • 1/1 эт.
    102 880 000 Р
    Агент
    +7 (915) Показать номер
    Посмотреть контакты

    Не нашли подходящего объявления?

    Оставьте заявку, и наши риэлторы подберут производственное помещение в районе Володарского

    (0)