800 000 Р 10 110 $ или 8 710

Информация об помещении

1
Этаж

Состояние и оснащение

Количество этажей
5
Развернуть
Агент
+7 (938) 656-74-88
Начать чат с агентом

Помещение свободного назначения в Московская область, Видное Заводская ...

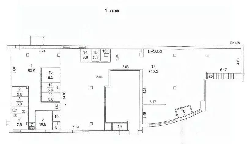
934202-s . Предлагаем торговую площадь формата street-retail с якорным арендатором Дикси в бизнес-центре Капитал Плаза , площадью 464.6 кв. м, расположенное на первом этаже 5-этажного здания. Преимущества объекта:-первая линия ул. Заводская;-6 минут на автомобиле от ж/д станции Расторгуево ;-удобная транспортная доступность: 1.7 км до Белокаменного шоссе, 3.3 км до трассы М-4 Дон, 4.5 км до МКАД, 4.8 км до Каширского шоссе;-плотный жилой массив;-развитая инфраструктура района;-высокий автомобильный и пешеходный трафик;-объект отлично просматривается, находится в легком доступе для клиентов;-гибкая планировка, позволяющая адаптировать пространство под различные нужды;-витринное остекление;-место для вывески;-зона разгрузки/погрузки;-наземная парковка.Технические параметры объекта:-отдельный вход с фасада;-электрическая мощность: 60 кВт;-высота потолков: 3.03 м.Свяжитесь с нами для получения дополнительной информации

Читать полностью
    Позвонить Написать
    800 000 Р10 110 $ или 8 710
    Агент
    +7 (938) 656-74-88
    Начать чат с агентом
    Похожие предложения
    Помещение свободного назначения в Московская область, Видное Заводская ... - Фото 1
    Помещение свободного назначения в Московская область, Видное Заводская ... - Фото 2
    934202. Предлагаем торговую площадь с якорным арендатором Дикси в бизнес-центре Капитал Плаза , площадью 464.6 кв. м, расположенное на первом этаже 5-этажного здания. Преимущества объекта:-первая линия ул. Заводская;-6 минут на автомобиле от ж/д станции...
    • 1/5 эт.
    800 000 Р
    Агент
    +7 (938) Показать номер
    Посмотреть контакты
    Помещение свободного назначения в Московская область, Видное Заводская ... - Фото 1
    Помещение свободного назначения в Московская область, Видное Заводская ... - Фото 2
    934202-s . Предлагаем торговую площадь формата street-retail с якорным арендатором Дикси в бизнес-центре Капитал Плаза , площадью 464.6 кв. м, расположенное на первом этаже 5-этажного здания. Преимущества объекта:-первая линия ул. Заводская;-6 минут...
    • 1/5 эт.
    800 000 Р
    Агент
    +7 (938) Показать номер
    Посмотреть контакты
    Помещение свободного назначения в Московская область, Королев ул. ... - Фото 1
    Помещение свободного назначения в Московская область, Королев ул. ... - Фото 2
    1060752. Предлагаем торговый центр Зодиак , площадью 400 кв. м. Преимущества объекта:-первая линия ул. Исаева;-шаговая доступность от ж/д станции Болшево (4 минуты пешком);-плотный жилой массив;-развитая инфраструктура района;-высокий автомобильный и...
    • 2/2 эт.
    800 000 Р
    Агент
    +7 (938) Показать номер
    Посмотреть контакты
    Помещение свободного назначения в Московская область, Люберцы ... - Фото 1
    Помещение свободного назначения в Московская область, Люберцы ... - Фото 2
    В аренду предлагается помещение под размещение фитнес-клуба в новом ЖК в Люберцах Основные характеристики:Общая площадь 410 кв.мСвободная планировкаДва этажа Высота потолков 5 метровГотовы сделать ремонт под арендатора Есть пассажирский лифт• Электрическая...
    • 1/3 эт.
    800 000 Р
    Агент
    +7 (986) Показать номер
    Посмотреть контакты
    Помещение свободного назначения в Московская область, Королев просп. ... - Фото 1
    Помещение свободного назначения в Московская область, Королев просп. ... - Фото 2
    ==ЛОТ 224211 == ОТ СОБСТВЕННИКА, БЕЗ КОМИССИИ. Предлагаем в аренду коммерческое помещение на проспекте Космонавтов в Королёве, общей площадью 266 м?. Это отдельно стоящее здание расположено на закрытой территории крупного торгового центра Престиж , что...
    • 1/1 эт.
    798 000 Р
    Агент
    +7 (923) Показать номер
    Посмотреть контакты

    Не нашли подходящего объявления?

    Оставьте заявку, и наши риэлторы подберут псн в районе Видного

    (0)