Россия, Подмосковье, Ленинский район, Видное, район Расторгуево, 1-я Спортивная улица
234 664 656 Р 3 146 100 $ или 2 673 800

Информация об помещении

1
Этаж

Состояние и оснащение

Количество этажей
1
Развернуть
Агент
+7 (916) 586-96-80
Начать чат с агентом

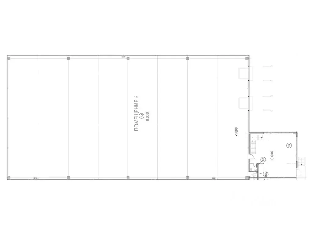
Склад (1422.21 м)

В аренду/продажу предлагается блок производственно-складского назначения в современном индустриальном парке формата Light Industrial. Один из лучших проектов реализуемых за последние годы. Ввод запланирован на ноябрь 2026 года.Расположение: Московская Обл., г Видное, дер Петрушино, ул. 1-ая, д. 30•5 мин от трассы М-2(Симферопольское ш.)•7 мин до МСД•10 мин до МКАД•25 мин до ЦКАДПлощадь блока обсуждаема, можно увеличивать, есть разные форматы.Характеристики и коммуникации:•Доковые ворота(также есть блоки с 0 воротами)•Отапливаемый•Полы - антипыль•Рабочая высота потолков - 8 м•Нагрузка на пол 5 т/кв. мУсловия аренды: •Ставка аренды: 22 тыс/кв. м/год(уточняется индивидуально) •Эксплуатационные расходы включены(уборка территории, охрана, тех. обслуживание, поддержка управляющей компании на месте)•НДС включено•Отдельно оплачивается: коммунальные платежи, электричество, интернет, телефон.•Условия продажи: 165 тыс/кв. м вкл. НДС 22 (может варьироваться в зависимости гот блока) Инфраструктура:•Круглосуточный(24/7) режим работы •Место для разгрузки/парковки техники•Продуктовый магазин на территории комплекса •Кафе на территории комплекса •Гостиница на территории комплекса•Коворкинг зона на территории комплекса •Зарядки для электрокаров•Спортивные площадки•МФЦ(планируется)На связи для просмотра и уточнения деталей Готовность к въезду – октябрь 2026г.ID: L13579

Читать полностью
    Позвонить Написать
    234 664 656 Р3 146 100 $ или 2 673 800
    Агент
    +7 (916) 586-96-80
    Начать чат с агентом
    Похожие предложения
    Склад в Московская область, Ленинский городской округ, Лопатино пгт ш. ... - Фото 1
    Склад в Московская область, Ленинский городской округ, Лопатино пгт ш. ... - Фото 2
    БЕЗ КОМИССИИ ПРЯМАЯ ПРОДАЖА от собственникаЛот: 17476. ЛОКАЦИЯ И ТРАНСПОРТПредлагаются современные помещения под ключ для производства, хранения или арендного бизнеса в новом промышленном парке в г. о. Ленинский. Общая площадь застройки составляет 80...
    • 1/1 эт.
    224 400 000 Р
    Агент
    +7 (980) Показать номер
    Посмотреть контакты
    Склад в Московская область, Ленинский городской округ, Булатниковское ... - Фото 1
    Склад в Московская область, Ленинский городской округ, Булатниковское ... - Фото 2
    На продажу предлагается склад класса A.Московская обл, г Видное, деревня Петрушино, ул 1-ая, д 30, 1 этаж (Юг, 10 км от МКАД).Общая площадь 1422.2 м.Ворота 0 : 2Полы - бетон с антипылью. Нагрузка на пол - 5 т/мВысота потолков - 8 м.Приточно-вытяжная...
    • 1/1 эт.
    234 664 650 Р
    Агент
    +7 (916) Показать номер
    Посмотреть контакты
    Склад в Московская область, Ленинский городской округ, Булатниковское ... - Фото 1
    Склад в Московская область, Ленинский городской округ, Булатниковское ... - Фото 2
    Складское помещение 1 363.6 кв. м в ICPARK Титан . Прямая продажа, без комиссии. Объект на стадии активного строительства, готовность ко въезду уточняется по запросу. Направление: Юг. Шоссе: Трасса М4 Дон, Симферопольское. Расстояние от МКАД: 5 км. ...
    • 1/1 эт.
    224 894 998 Р
    Агент
    +7 (915) Показать номер
    Посмотреть контакты
    Склад в Московская область, Ленинский городской округ, Булатниковское ... - Фото 1
    Склад в Московская область, Ленинский городской округ, Булатниковское ... - Фото 2
    В продажу предлагается блок производственно-складского назначения в современном индустриальном парке формата Light Industrial. Один из лучших проектов реализуемых за последние годы. Ввод запланирован на ноябрь 2026 года.Расположение: Московская Обл.,...
    • 1/1 эт.
    234 664 650 Р
    Агент
    +7 (985) Показать номер
    Посмотреть контакты
    МО, Долгопрудный, мкр Гнилуши, 4060 м2, Склад (ном. объекта: 8274) - Фото 1
    МО, Долгопрудный, мкр Гнилуши, 4060 м2, Склад (ном. объекта: 8274) - Фото 2
    МО, Долгопрудный, мкр Гнилуши, 4060 м2, Склад (ном. объекта: 8274) - Фото 3
    МО, Долгопрудный, мкр Гнилуши, 4060 м2, Склад (ном. объекта: 8274) - Фото 4
    МО, Долгопрудный, мкр Гнилуши, 4060 м2, Склад (ном. объекта: 8274) - Фото 5
    МО, Долгопрудный, мкр Гнилуши, 4060 м2, Склад (ном. объекта: 8274) - Фото 6
    МО, Долгопрудный, мкр Гнилуши, 4060 м2, Склад (ном. объекта: 8274) - Фото 7
    МО, Долгопрудный, мкр Гнилуши, 4060 м2, Склад (ном. объекта: 8274) - Фото 8
    общая площадь 4060м², полезная площадь 4060м²

    Пск 4060 м2 формата лайт индастриал. Возможна покупка на текущей стадии, так и на более поздней стадии строительства. Проект включает в себя пять независимых блока, потолки 9 метров, на втором этаже 5 метров, нагрузка на пол второго этажа 2 тонны. Центральные...
    • 4 060 м²
    240 000 000 Р
    Агент
    +7 (968) Показать номер
    Агентство
    Телус
    Посмотреть контакты

    Не нашли подходящего объявления?

    Оставьте заявку, и наши риэлторы подберут склад в районе Видного

    (0)