Россия, Подмосковье, Ленинский район, Видное, Колхозник гаражный кооператив, с32
607 500 000 Р 7 877 200 $ или 6 673 800

Информация об помещении

1
Этаж

Состояние и оснащение

Количество этажей
1
Развернуть
Агент
+7 (911) 147-09-38
Начать чат с агентом

Склад в Московская область, Видное Колхозник гаражный кооператив, с32 ...

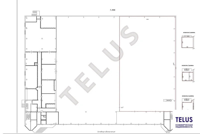
Складской комплекс Видное 1500 класса BПлощадь: 4 500 м2Стоимость за 1 м2:.Стоимость площади:.Система налогообложения: УСНГотовность: готово к въездуЭтаж: 1Планировка: открытаяНаличие с/у: , ВнутриСтатус: свободенВысота потолков, h: 8.00мВыделенная мощность: 90 кВтХарактеристики зданияАдрес: Ермолинская ул., 33, Видное, Московская область, Ленинский районКласс: BПлощадь здания: 30 000 м2Полезная площадь: 30 000 м2Этажность: 1Год постройки: 2022Безопасность: Охрана, Контрольно-пропускной пункт, ВидеонаблюдениеПарковка: Бесплатная открытая, На прилегающей территории

Читать полностью
    Позвонить Написать
    607 500 000 Р7 877 200 $ или 6 673 800
    Агент
    +7 (911) 147-09-38
    Начать чат с агентом
    Похожие предложения
    Склад в Московская область, Ленинский городской округ, с. Булатниково ... - Фото 1
    Склад в Московская область, Ленинский городской округ, с. Булатниково ... - Фото 2
    Уникальный номер помещения.Строительство современного производственно-складского комплекса класса А формата light industrialУдобное расположение: 6 км. до МКАД.Добавьте объявление в избранное, чтобы не упустить выгодное предложение Высота потолка 8 м.Ровный...
    • 1/2 эт.
    619 715 250 Р
    Агент
    +7 (980) Показать номер
    Посмотреть контакты
    Склад в Московская область, Лыткарино Детский городок ЗИЛ тер.,  (4937 ... - Фото 1
    Склад в Московская область, Лыткарино Детский городок ЗИЛ тер.,  (4937 ... - Фото 2
    Уникальный номер помещения.Строительство современного производственно-складского комплекса класса В в Лыткарино.Удобное расположение: 12 км. до МКАД.Добавьте объявление в избранное, чтобы не упустить выгодное предложение Европейские стандарты для помещенийПодходит...
    • 1/2 эт.
    602 263 980 Р
    Агент
    +7 (980) Показать номер
    Посмотреть контакты
    МО, Химки, Шереметьево 7354 м2, Склад (ном. объекта: 8266) - Фото 1
    МО, Химки, Шереметьево 7354 м2, Склад (ном. объекта: 8266) - Фото 2
    МО, Химки, Шереметьево 7354 м2, Склад (ном. объекта: 8266) - Фото 3
    МО, Химки, Шереметьево 7354 м2, Склад (ном. объекта: 8266) - Фото 4
    МО, Химки, Шереметьево 7354 м2, Склад (ном. объекта: 8266) - Фото 5
    МО, Химки, Шереметьево 7354 м2, Склад (ном. объекта: 8266) - Фото 6
    МО, Химки, Шереметьево 7354 м2, Склад (ном. объекта: 8266) - Фото 7
    МО, Химки, Шереметьево 7354 м2, Склад (ном. объекта: 8266) - Фото 8
    МО, Химки, Шереметьево 7354 м2, Склад (ном. объекта: 8266) - Фото 9
    МО, Химки, Шереметьево 7354 м2, Склад (ном. объекта: 8266) - Фото 10
    МО, Химки, Шереметьево 7354 м2, Склад (ном. объекта: 8266) - Фото 11
    МО, Химки, Шереметьево 7354 м2, Склад (ном. объекта: 8266) - Фото 12
    МО, Химки, Шереметьево 7354 м2, Склад (ном. объекта: 8266) - Фото 13
    МО, Химки, Шереметьево 7354 м2, Склад (ном. объекта: 8266) - Фото 14
    МО, Химки, Шереметьево 7354 м2, Склад (ном. объекта: 8266) - Фото 15
    МО, Химки, Шереметьево 7354 м2, Склад (ном. объекта: 8266) - Фото 16
    МО, Химки, Шереметьево 7354 м2, Склад (ном. объекта: 8266) - Фото 17
    МО, Химки, Шереметьево 7354 м2, Склад (ном. объекта: 8266) - Фото 18
    МО, Химки, Шереметьево 7354 м2, Склад (ном. объекта: 8266) - Фото 19
    МО, Химки, Шереметьево 7354 м2, Склад (ном. объекта: 8266) - Фото 20
    общая площадь 7354м², полезная площадь 7354м²

    Ппроизводственно-складской комплекс 7354 м2 на участке 69 соток . Земля пром назначения в собственности. Коммуникации: 330 квт эл-ва, газовая котельная, вода-скважина, канализация от соседей (очистные сооружения). Корпус состоит из двух частей: 3500 м2...
    • 7 354 м²
    600 000 000 Р
    Агент
    +7 (968) Показать номер
    Агентство
    Телус
    Посмотреть контакты
    МО, Дмитров г.о., пос.свх. Останкино, Дорожная ул., 2725 м2, Складской ... - Фото 1
    МО, Дмитров г.о., пос.свх. Останкино, Дорожная ул., 2725 м2, Складской ... - Фото 2
    МО, Дмитров г.о., пос.свх. Останкино, Дорожная ул., 2725 м2, Складской ... - Фото 3
    МО, Дмитров г.о., пос.свх. Останкино, Дорожная ул., 2725 м2, Складской ... - Фото 4
    МО, Дмитров г.о., пос.свх. Останкино, Дорожная ул., 2725 м2, Складской ... - Фото 5
    МО, Дмитров г.о., пос.свх. Останкино, Дорожная ул., 2725 м2, Складской ... - Фото 6
    МО, Дмитров г.о., пос.свх. Останкино, Дорожная ул., 2725 м2, Складской ... - Фото 7
    МО, Дмитров г.о., пос.свх. Останкино, Дорожная ул., 2725 м2, Складской ... - Фото 8
    МО, Дмитров г.о., пос.свх. Останкино, Дорожная ул., 2725 м2, Складской ... - Фото 9
    МО, Дмитров г.о., пос.свх. Останкино, Дорожная ул., 2725 м2, Складской ... - Фото 10
    МО, Дмитров г.о., пос.свх. Останкино, Дорожная ул., 2725 м2, Складской ... - Фото 11
    МО, Дмитров г.о., пос.свх. Останкино, Дорожная ул., 2725 м2, Складской ... - Фото 12
    МО, Дмитров г.о., пос.свх. Останкино, Дорожная ул., 2725 м2, Складской ... - Фото 13
    МО, Дмитров г.о., пос.свх. Останкино, Дорожная ул., 2725 м2, Складской ... - Фото 14
    МО, Дмитров г.о., пос.свх. Останкино, Дорожная ул., 2725 м2, Складской ... - Фото 15
    МО, Дмитров г.о., пос.свх. Останкино, Дорожная ул., 2725 м2, Складской ... - Фото 16
    МО, Дмитров г.о., пос.свх. Останкино, Дорожная ул., 2725 м2, Складской ... - Фото 17
    МО, Дмитров г.о., пос.свх. Останкино, Дорожная ул., 2725 м2, Складской ... - Фото 18
    МО, Дмитров г.о., пос.свх. Останкино, Дорожная ул., 2725 м2, Складской ... - Фото 19
    МО, Дмитров г.о., пос.свх. Останкино, Дорожная ул., 2725 м2, Складской ... - Фото 20
    общая площадь 2725м², полезная площадь 2725м²

    Складской блок общей площадью 2725 м2 на участке 0,6 га в собственности. ВРИ участка: склад, производство. Высота потолков 12 метров. Стены - сендвич-панели с утеплителем. Центральные коммуникации: водоснабжение, канализация. Отопление от газовой котельной....
    • 2 725 м²
    600 000 000 Р
    Агент
    +7 (965) Показать номер
    Агентство
    Телус
    Посмотреть контакты
    МО, Подольск, мкрн. Львовский, Металлургов ул., 10000 м2, ... - Фото 1
    МО, Подольск, мкрн. Львовский, Металлургов ул., 10000 м2, ... - Фото 2
    МО, Подольск, мкрн. Львовский, Металлургов ул., 10000 м2, ... - Фото 3
    МО, Подольск, мкрн. Львовский, Металлургов ул., 10000 м2, ... - Фото 4
    МО, Подольск, мкрн. Львовский, Металлургов ул., 10000 м2, ... - Фото 5
    МО, Подольск, мкрн. Львовский, Металлургов ул., 10000 м2, ... - Фото 6
    МО, Подольск, мкрн. Львовский, Металлургов ул., 10000 м2, ... - Фото 7
    МО, Подольск, мкрн. Львовский, Металлургов ул., 10000 м2, ... - Фото 8
    МО, Подольск, мкрн. Львовский, Металлургов ул., 10000 м2, ... - Фото 9
    МО, Подольск, мкрн. Львовский, Металлургов ул., 10000 м2, ... - Фото 10
    МО, Подольск, мкрн. Львовский, Металлургов ул., 10000 м2, ... - Фото 11
    МО, Подольск, мкрн. Львовский, Металлургов ул., 10000 м2, ... - Фото 12
    МО, Подольск, мкрн. Львовский, Металлургов ул., 10000 м2, ... - Фото 13
    МО, Подольск, мкрн. Львовский, Металлургов ул., 10000 м2, ... - Фото 14
    МО, Подольск, мкрн. Львовский, Металлургов ул., 10000 м2, ... - Фото 15
    МО, Подольск, мкрн. Львовский, Металлургов ул., 10000 м2, ... - Фото 16
    МО, Подольск, мкрн. Львовский, Металлургов ул., 10000 м2, ... - Фото 17
    МО, Подольск, мкрн. Львовский, Металлургов ул., 10000 м2, ... - Фото 18
    МО, Подольск, мкрн. Львовский, Металлургов ул., 10000 м2, ... - Фото 19
    МО, Подольск, мкрн. Львовский, Металлургов ул., 10000 м2, ... - Фото 20
    общая площадь 10000м², полезная площадь 10000м²

    Производственно-складской комплекс площадью 10000 м2 на земельном участке 1,45 га в собственности. ВРИ участка: склад, производство. Комплекс включает: производственный блок 4000 м2 с высотой потолков 8 метров с гидравлическими подъемниками, складской...
    • 10 000 м²
    600 000 000 Р
    Агент
    +7 (965) Показать номер
    Агентство
    Телус
    Посмотреть контакты

    Не нашли подходящего объявления?

    Оставьте заявку, и наши риэлторы подберут склад в районе Видного

    (0)