Узнать последнюю цену

Реализация объекта недвижимости приостановлена

Информация об помещении

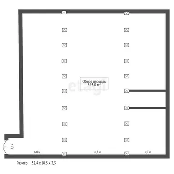
212 м2
Площадь
подвал
Этаж

Состояние и оснащение

Общая площадь складского комплекса, м2
212.0
Развернуть

Продажа помещения пл. 212 м2 под производство, автомойку, автосервис, ...

Лот №729790 Продаётся готовый арендный бизнес, помещение свободного назначения площадью 211.5 м2 в центре густонаселённого жилого района. Арендатор - автомастерская/шиномонтаж/автомойка, МАП -, ДДА на 5 лет, индексация 5%. Возможность круглосуточного режима работы, 3 больших поста с залом ожидания, открытая планировка, потолки 3.5 м, эл. мощность 50 кВт.

В цену не включено: затраты на электричество, коммунальные расходы, уборка, эксплуатационные расходы.

Чтобы получить ПОДРОБНУЮ ПРЕЗЕНТАЦИЮ С ПЛАНИРОВКОЙ И ФОТОГРАФИЯМИ, звоните или отправьте свой email в сообщении на портале. Высылаем в течение 15 минут по запросу!

Конт. лицо: Сергей Федорович, доб. 307, ЛОТ №729790

Читать полностью
    Узнать последнюю цену

    Реализация объекта недвижимости приостановлена

    Не нашли подходящего объявления?

    Оставьте заявку, и наши риэлторы подберут производственное помещение в районе Видного

    (0)