6 500 000 Р 82 430 $ или 70 350

Информация о квартире

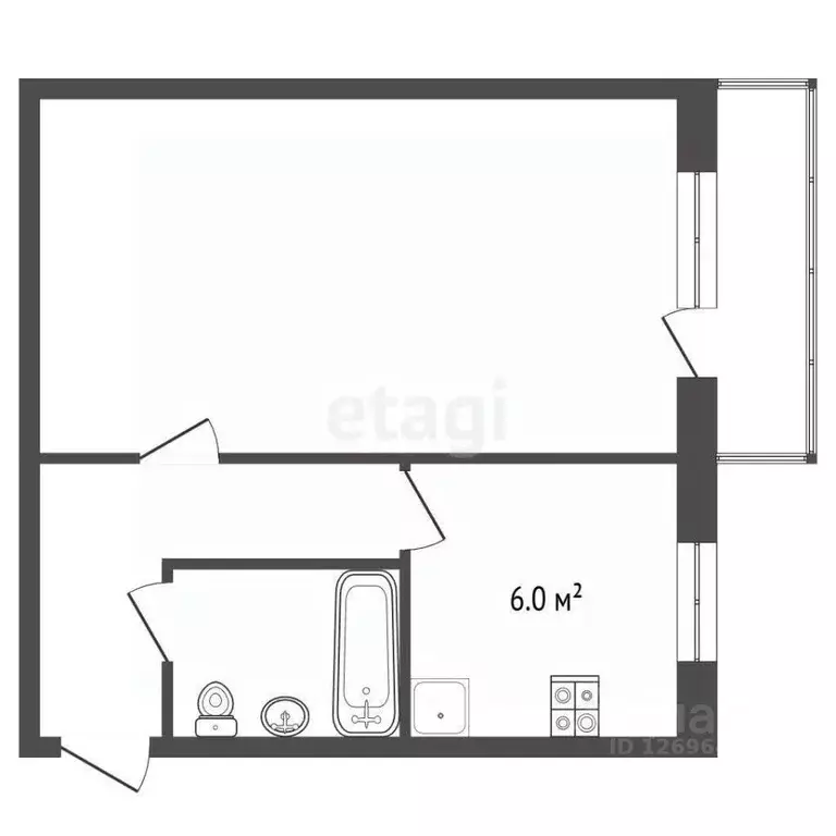
32 м2
Площадь
6 м2
Кухня
1
Комната
3
Этаж
5
Этажность
Развернуть
Агент
+7 (923) 074-36-57
Начать чат с агентом

1-к кв. Московская область, Видное Советская ул., 12 (32.7 м)

Номер в базе:. ТОРГ УМЕСТЕН ЗВОНИТЕ Продаётся уютная светлая 1-комнатная квартира в самом центре Видного. Район с развитой инфраструктурой: в шаговой доступности магазины, школа, детский сад, поликлиника, парк. Остановка общественного транспорта в 5 минутах пешком от дома. Вы можете добраться прямым автобусом до метро Царицыно, Анино и Кантемировская. От станции Расторгуево (Павелецкое направление), до которой можно дойти пешком, можно уехать на электричке до Павелецкого вокзала или в область. Отличный вариант для тех, кто хочет жить в зелёном, безопасном и спокойном городе с удобным доступом к Москве.Капитальный ремонт дома был сделан 3 года назад. В доме газоснабжение. Хорошие, дружные соседи. Просторная тихая придомовая территория.Квартира расположена на 3 этаже 5 этажного панельного дома. Застеленный балкон с прекрасным видом. Выполнен косметический ремонт - квартира полностью готова к проживанию. Санузел совмещенный. Мебель и техника остаются в квартире. Квартира идеальна как для собственного проживания, так и для сдачи в аренду. 2 взрослых собственника, прописанных в квартире нет.Мы гарантируем безопасную сделку и юридическую поддержку нашим Клиентам. Для покупателей доступны выгодные ипотечные программы от 12,99 .ТОРГ УМЕСТЕН ЗВОНИТЕ Код пользователя: 194339

Читать полностью

    Для того, чтобы купить однокомнатную квартиру по адресу: Видное, ул. Советская, 12, позвоните по телефону +7 (923) 074-36-57. Торопитесь! Объявление №30092927645 о продаже однокомнатной квартиры опубликовано Сегодня.

    Позвонить Написать
    6 500 000 Р82 430 $ или 70 350
    Агент
    +7 (923) 074-36-57
    Начать чат с агентом
    Похожие предложения
    2-к кв. Московская область, Видное просп. Ленинского Комсомола, 38 ... - Фото 1
    2-к кв. Московская область, Видное просп. Ленинского Комсомола, 38 ... - Фото 2
    2-комнатная квартира, общая площадь 44м², жилая 28м², кухня 6м²

    Id 387982. 2-комнатная квартира с кладовой в Видном на ПЛК Окна на восток, готова под ваш ремонт. 2/5 эт. Панельный дом 1972 г.п. Просторная, с кладовой.Юридическая чистота и история:Квартира изначально была получена от завода, затем приватизирована...
    • 44 м²
    • 2-ком
    • 2/5 эт.
    • панельный
    6 450 000 Р
    Агент
    +7 (985) Показать номер
    Посмотреть контакты
    1-к кв. Московская область, Видное ул. Березовая, 10 (40.4 м) - Фото 1
    1-к кв. Московская область, Видное ул. Березовая, 10 (40.4 м) - Фото 2
    1-комнатная квартира, общая площадь 40м², жилая 25м², кухня 10м²

    Предлагается светлая, просторная однокомнатная квартира, в благоустроенном районе г.Видное.Расположена на первом этаже многоквартирного дома со стороны улицы Рядом активный пешеходный трафик, одна квартира на этаже, остальные квартиры переделаны под...
    • 40 м²
    • 1-ком
    • 1/19 эт.
    • монолит
    6 600 000 Р
    Агент
    +7 (916) Показать номер
    Посмотреть контакты
    1-к кв. Московская область, Видное ул. Святослава Рихтера, 6 (30.1 м) - Фото 1
    1-к кв. Московская область, Видное ул. Святослава Рихтера, 6 (30.1 м) - Фото 2
    1-комнатная квартира, общая площадь 30м², жилая 14м², кухня 5м²

    Арт.Готовы рассмотреть ЛУЧШИЙ ВАРИАНТ квартиры в этом районе?Хотите получить ЛУЧШУЮ СТОИМОСТЬ квартиры в этом районе?Ищите квартиру с ГАРАНТИЕЙ БЕЗОПАСНОСТИ?Тогда эта КВАРТИРА ДЛЯ ВАС -------------------------------------Однокомнатная квартира, расположенная...
    • 30 м²
    • 1-ком
    • 2/9 эт.
    • монолит
    6 500 000 Р
    Агент
    +7 (985) Показать номер
    Посмотреть контакты
    Студия Московская область, Ленинский городской округ, д. Сапроново, ... - Фото 1
    Студия Московская область, Ленинский городской округ, д. Сапроново, ... - Фото 2
    студия, общая площадь 34м², жилая 18м², кухня 10м²

    Номер в базе: 4389385. ВНИМАНИЕ ДОМ СДАН КЛЮЧИ НА РУКАХ ПРОДАЖА ПО ДКП Доброго времени суток В продаже студия в ЖК У реки. Эко Видное 2.0 , корпус Нестеров, с готовой отделкой. Застройщик MR Group, корпус Нестеров расположен на берегу реки Купелинка,...
    • 34 м²
    • студия-ком
    • 3/17 эт.
    • панельный
    6 500 000 Р
    Агент
    +7 (986) Показать номер
    Посмотреть контакты
    2-к кв. Московская область, Ленинский городской округ, пос. ... - Фото 1
    2-к кв. Московская область, Ленинский городской округ, пос. ... - Фото 2
    2-комнатная квартира, общая площадь 53м², жилая 26м², кухня 10м²

    Арт.Срочная продажа Предлагаем Вашему вниманию прекрасную двухкомнатную квартиру в ЖК Ольховка . Общая площадь квартиры 53,6 кв. м. Две изолированные комнаты (14 и 12 кв. м.), просторная кухня 11 кв. м., лоджия и раздельный санузел. Квартира в отличном...
    • 53 м²
    • 2-ком
    • 9/9 эт.
    • панельный
    6 499 000 Р
    Агент
    +7 (916) Показать номер
    Посмотреть контакты

    Не нашли подходящего объявления?

    Оставьте заявку, и наши риэлторы подберут квартиру в районе Видного

    (0)