7 100 000 Р 90 350 $ или 76 500

Информация о квартире

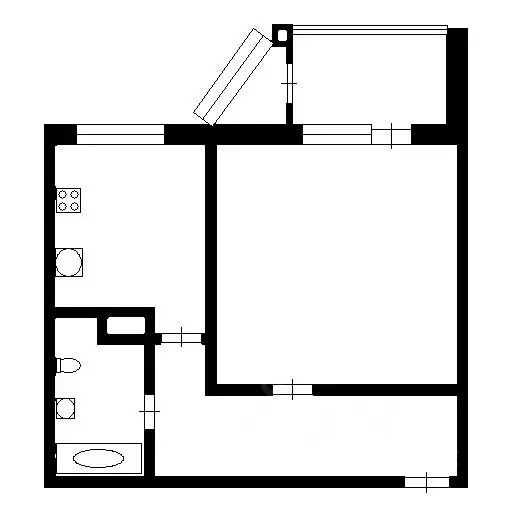
37 м2
Площадь
17 м2
Жилая
10 м2
Кухня
1
Комната
9
Этаж
19
Этажность

Дополнительная информация

Тип дома
панельный
Развернуть
Агент
+7 (931) 545-11-24
Начать чат с агентом

1-к кв. Московская область, Видное ул. Завидная, 3 (37.4 м)

Продается уютная однокомнатная квартира в современном жилом комплексе по адресу: Московская область, Ленинский городской округ, Видное, Завидная улица, 3. Общая площадь квартиры составляет 37.4 кв. м, жилая площадь — 17 кв. м, площадь кухни — 10 кв. м. Квартира расположена на 9 этаже 19-этажного панельного дома, построенного в 2014 году. Высота потолков — 2.74 метра, что добавляет ощущение простора. В квартире сделан косметический ремонт, который позволит вам сразу же заехать и жить. Есть совмещенный санузел и балкон, окна выходят во двор, что обеспечит тишину и спокойствие. Просторная кухня станет отличным местом для семейных ужинов или приема гостей.Дом оборудован как пассажирским, так и грузовым лифтами, поэтому можно легко и удобно подниматься на нужный этаж. Вокруг дома предусмотрены парковочные места. Дом в хорошем состоянии, что подтверждается регулярным обслуживанием.Район отличается развитой инфраструктурой: рядом находятся школы, детские сады, клиники и магазины, поэтому все необходимые объекты для комфортной жизни находятся в шаговой доступности. До метро Царицыно можно добраться на автомобиле всего за 18 минут, что делает ваше передвижение по городу быстрым и удобным.Квартира свободна от обременений, подходит под ипотеку. Все документы готовы к сделке, поэтому процесс покупки будет быстрым и безопасным.Приглашаем вас на просмотр Звоните и записывайтесь на удобное время — эта квартира может стать вашим новым домом

Читать полностью

    Для того, чтобы купить однокомнатную квартиру по адресу: Видное, ул. Завидная, 3, позвоните по телефону +7 (931) 545-11-24. Торопитесь! Объявление №30092617388 о продаже однокомнатной квартиры опубликовано Сегодня.

    Позвонить Написать
    7 100 000 Р90 350 $ или 76 500
    Агент
    +7 (931) 545-11-24
    Начать чат с агентом
    Похожие предложения
    1-комнатная квартира: Видное, Ермолинская улица, 3 (38.5 м) - Фото 1
    1-комнатная квартира: Видное, Ермолинская улица, 3 (38.5 м) - Фото 2
    1-комнатная квартира, общая площадь 38м², жилая 18м², кухня 8м²

    Id 387881. Предлагаем к продаже однокомнатную квартиру в ЖК Южное Видное .Отличный, новый район с развитой инфраструктурой. В самом центре нового 6-го микрорайона г. Видное.Квартира просторная, очень теплая и светлая, укомплектована всем необходимы....
    • 38 м²
    • 1-ком
    • 1/17 эт.
    7 000 000 Р
    Агент
    +7 (926) Показать номер
    Посмотреть контакты
    1-к кв. Московская область, Видное ул. Ермолинская, 3 (38.5 м) - Фото 1
    1-к кв. Московская область, Видное ул. Ермолинская, 3 (38.5 м) - Фото 2
    1-комнатная квартира, общая площадь 38м², жилая 18м², кухня 7м²

    Код объекта: 1970160.Продаётся уютная 1-комнатная квартира в Видном — ремонт под ключ Идеальный вариант для комфортной жизни или выгодной инвестиции. Квартира с евроремонтом на 1 этаже — заезжайте и живите Преимущества квартиры:Качественный евроремонтПросторная...
    • 38 м²
    • 1-ком
    • 1/17 эт.
    • панельный
    7 000 000 Р
    Агент
    +7 (923) Показать номер
    Посмотреть контакты
    1-к кв. Московская область, Видное ул. Завидная, 3 (37.8 м) - Фото 1
    1-к кв. Московская область, Видное ул. Завидная, 3 (37.8 м) - Фото 2
    1-комнатная квартира, общая площадь 37м², жилая 18м², кухня 7м²

    Продается уютная 1-комнатная квартира с ремонтом по адресу Завидная 3, на 17 этаже, 17ти этажного дома.Одним из главных преимуществ данной квартиры является состояние самого дома. Вы сможете наслаждаться чистым и ухоженным подъездом, а двор расположен...
    • 37 м²
    • 1-ком
    • 17/17 эт.
    • панельный
    7 100 000 Р
    Агент
    +7 (915) Показать номер
    Посмотреть контакты
    1-комнатная квартира: Видное, Ермолинская улица, 3 (38.5 м) - Фото 1
    1-комнатная квартира: Видное, Ермолинская улица, 3 (38.5 м) - Фото 2
    1-комнатная квартира, общая площадь 38м², жилая 18м², кухня 7м²

    Код объекта: 1970160.Продаётся уютная 1-комнатная квартира в Видном — ремонт «под ключ Идеальный вариант для комфортной жизни или выгодной инвестиции. Квартира с евроремонтом на 1 этаже — заезжайте и живите Преимущества квартиры:Качественный евроремонтПросторная...
    • 38 м²
    • 1-ком
    • 1/17 эт.
    7 000 000 Р
    Агент
    +7 (965) Показать номер
    Посмотреть контакты
    1-комнатная квартира: Видное, Строительная улица, 27 (35 м) - Фото 1
    1-комнатная квартира: Видное, Строительная улица, 27 (35 м) - Фото 2
    1-комнатная квартира, общая площадь 35м², жилая 19м², кухня 10м²

    Арт.Вашему вниманию предлагается уютная, светлая, тёплая 1 комнатная квартира на 13-м этаже 16-ти этажного дома по адресу: МО, г. Видное, ул. Строительная, д. 27. Очень удобная планировка квартиры с просторным коридором и светлой изолированной комнатой,...
    • 35 м²
    • 1-ком
    • 13/16 эт.
    7 000 000 Р
    Агент
    +7 (965) Показать номер
    Посмотреть контакты

    Не нашли подходящего объявления?

    Оставьте заявку, и наши риэлторы подберут квартиру в районе Видного

    (0)