13 500 000 Р 164 800 $ или 141 100

Информация о коттедже

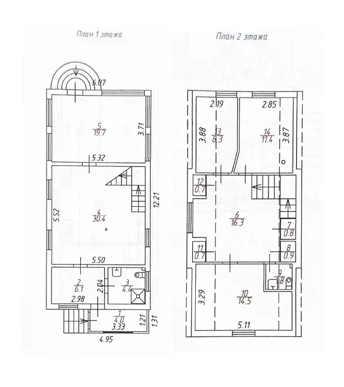
140 м2
Площадь
2
Этажность
4
Количество комнат
3.5 cоток
Участок

Состояние и оснащение

Дом
брусовый

Дополнительная информация

Расположение туалета
в доме
Дом продаётся вместе с участком
есть

Коммуникации

Газоснабжение
имеется
Водоснабжение
центральное
Канализация
септики
Электроснабжение
обеспечено действующим договором с электросбытовой компанией
Развернуть
Агент
Александр
+7 (901) 900-86-76
Начать чат с агентом

Дом, Видное, СНТ Хладокомбинат 10, д. 9

Выгодная цена.



Отличное предложение, в связи с переездом собственник продаёт дом. на участке в 3,5 соток ЛПХ, дом с готовым ремонтом и мебелью, в полноценном газифицированном посёлке (не дачи). Все дороги, чистятся администрацией.



Облицованный кирпичом утеплённый брусовой дом, сделан очень добротно. Приятный ремонт. Дом небольшой, 140 м2. в нём тепло и уютно. Есть 4 раздельные комнаты, очень приятная и комфортная кухня-гостиная 30 м2, и 2 сан. узла в доме. Все коммуникации в отличном состоянии, всё работает. Дом находится на поселковой земле, Категории земель: СНТ.



Фундамент сваи из бетона и ленточный каркас., тёплые стены - брус толщина 150 мм., утеплитель с внешней стороны (мин. вата) с двух сторон, облицован кирпичом. Красивая и надёжная крыша - ондулин кровля.

Все коммуникации в готовом рабочем состоянии:

- Вода городская (заведена в дом)

- Электроэнергия 8 кВт. (можно увеличить до 15 кВт.)

- Септик (ёмкость Евролос)

- Газ, (подключено и работает).



Во дворе сделан мангальная зона и хозблок (20м2), подведено электричество. На участок имеются садовые насаждения (вишня, слива, крыжовник и, тд.)



Развитая инфраструктура, недалеко городская застройка, в 10 мин. пешком есть школа, детский сад, магазины, торговые центры, фитнес, кафе и т.д. Отличная доступность: 12 минут до МКАД на машине, не далеко от дома автобус до метро



Все документы в порядке, и готовы к сделке. ДКП более 10 лет. Нет никаких обременений и долгов. Под ипотеку, материнский капитал, опеку, и сертификаты подходит. Помощь Агентства в одобрении ипотеки.

Читать полностью

    Для того, чтобы купить 2-этажный коттедж по адресу: Видное, СНТ Хладокомбинат 10, 9б, позвоните по телефону +7 (901) 900-86-76. Торопитесь! Объявление №506732045 о продаже двухэтажного коттеджа опубликовано Вчера.

    Позвонить Написать
    13 500 000 Р164 800 $ или 141 100
    Агент
    Александр
    +7 (901) 900-86-76
    Начать чат с агентом
    Похожие предложения
    Продается дом в г. Видное - Фото 1
    Продается дом в г. Видное - Фото 2
    общая площадь 160м², участок 4 сотки

    Код объекта: 1125368. Ключи наруках. оперативный показ.2 км от Москвы. Хорошее транспортное сообщение как на личном так и на общественном транспорте.ДОМ: общая площадь по теплому контуру 160 кв.мФундамент монолитный.Стены газобетонные блоки. Перекрытия...
    • 160 м²
    • 4 сот.
    13 500 000 Р
    Агент
    +7 (909) Показать номер
    Посмотреть контакты
    Продается дом в д. Тарычево - Фото 1
    Продается дом в д. Тарычево - Фото 2
    общая площадь 200м², участок 6 соток

    Код объекта: 1266648. Дом и земля стоят на кадастровом учете. Уютный СНТ в 2-х километрах от МКАД. Удобный выезд и заезд. Дом для круглогодичного проживания. О доме: Фундамент ленточный около двух метров, высокий цоколь, первый этаж из ГББ блоков, перекрытие...
    • 200 м²
    • 6 сот.
    14 949 000 Р
    Агент
    +7 (967) Показать номер
    Посмотреть контакты
    Продается дом в пгт Молоково - Фото 1
    Продается дом в пгт Молоково - Фото 2
    общая площадь 120м², участок 6 соток

    • 120 м²
    • 6 сот.
    15 000 000 Р
    Агент
    +7 (906) Показать номер
    Посмотреть контакты
    Дом, 196.2 м - Фото 1
    2 этажа, общая площадь 196м², участок 6 соток

    Арт.Новый жилой дом 196,2 м с участком 6 соток всего в 7 км от МКАД Московская область, г.о. Ленинский, д. Мисайлово, СНТ Мосмек О домеСовременный двухэтажный дом площадью 196,2 м, построенный в 2024 году.Архитектура сочетает надежность и стиль: стены...
    • 2 эт.
    • 196 м²
    • 6 сот.
    15 000 000 Р
    Агент
    +7 (923) Показать номер
    Посмотреть контакты
    2 этажа, общая площадь 196м², участок 6 соток

    Арт.Новый жилой дом 196,2 м с участком 6 соток всего в 7 км от МКАД Московская область, г.о. Ленинский, д. Мисайлово, СНТ «Мосмек О доме Современный двухэтажный дом площадью 196,2 м, построенный в 2024 году. Архитектура сочетает надежность и стиль:...
    • 2 эт.
    • 196 м²
    • 6 сот.
    15 000 000 Р
    Агент
    +7 (966) Показать номер
    Посмотреть контакты

    Не нашли подходящего объявления?

    Оставьте заявку, и наши риэлторы подберут купить дом в районе Видного

    (0)