9 000 000 Р 117 200 $ или 100 600

Информация об помещении

1
Этаж

Состояние и оснащение

Количество этажей
1
Развернуть
Агент
+7 (980) 191-45-50
Начать чат с агентом

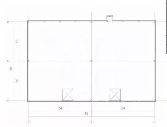
Склад в Московская область, Люберцы городской округ, Томилино пгт ул. ...

Услуги ответственного хранения.Уникальный номер помещения.Помещение находится на огороженной и охраняемой территории; Склад ответственного хранения класса А.Удобное расположение: 6 км. до МКАД.Добавьте объявление в избранное, чтобы не упустить выгодное предложение Операции:- раскредитация грузов;- оформление порожних вагонов и платформ;- отправка и прием имущества заказчика;- сортировка грузов из сборных вагонов и обратный процесс;- дистрибьюторские мероприятия маркировка, упаковка, переупаковка, сборка и распределение заказов, оформление транспортных накладных;- прием заказов в специальной зоне.Сортировка продукции осуществляется по принципу различия размера, веса и условий хранения.Огороженная территория.Удобный заезд.Все условия для комфортной работы.Подробности по запросуПочему стоит обращаться к нам:1) Работаем с 2014 года2) Специализируемся только на индустриальной и складской недвижимости3) У нас одна из самых больших баз собственников и клиентов4) Не берём комиссию с арендаторов/покупателей. Подберем оптимальное решение под ваши задачи. Звоните Склад ответственного хранения - это комплексное решение задач, связанных с сохранностью товаров и грузов.Экономическая эффективность подобных складов обусловлена тем, что заказчик оплачивает исключительно ответственное хранение товара и не тратится на аренду или содержание остальных площадей.При ответственном хранении нет необходимости платить за аренду неиспользованной площади. Оплачивается только хранение по факту. Это значит, что, когда груза нет на складе, необходимость в оплате исчезает. Стоимость ответственного хранения определяется фактически занимаемой площадью под груз (товар).Коммерческие условия: Цена за паллетоместо:;

Читать полностью
    Позвонить Написать
    9 000 000 Р117 200 $ или 100 600
    Агент
    +7 (980) 191-45-50
    Начать чат с агентом
    Похожие предложения
    Склад в Московская область, Люберцы городской округ, Томилино пгт, ... - Фото 1
    Склад в Московская область, Люберцы городской округ, Томилино пгт, ... - Фото 2
    Лот 151401.Предлагается в аренду половина складского комплекса класса A площадью 5456 м. Объект расположен в удобной транспортной локации: По адресу: МО, Люберецкий район, поселок Томилино, микрорайон Птицефабрика, ТЛК Томилино . Территория округа удобно...
    • 1/3 эт.
    9 093 333 Р
    Агент
    +7 (985) Показать номер
    Посмотреть контакты
    Склад в Московская область, Богородский городской округ, имени ... - Фото 1
    Склад в Московская область, Богородский городской округ, имени ... - Фото 2
    Услуги ответственного хранения.Уникальный номер помещения.Помещение находится на огороженной и охраняемой территории; Склад ответственного хранения класса ВУдобное расположение: 36 км. до МКАД.Добавьте объявление в избранное, чтобы не упустить выгодное...
    • 1/1 эт.
    9 000 000 Р
    Агент
    +7 (980) Показать номер
    Посмотреть контакты
    Склад в Московская область, Сергиев Посад Московское ш., 9 (6000 м) - Фото 1
    Склад в Московская область, Сергиев Посад Московское ш., 9 (6000 м) - Фото 2
    Уникальный номер помещения.Аренда помещения от собственника (без комиссии);Арендные каникулы, скидки и индивидуальные улучшения - все обсуждается;Помещение находится на огороженной и охраняемой территории;Транспортная доступность: Ярославское (М-8) ш.Удаленность...
    • 1/2 эт.
    9 000 000 Р
    Агент
    +7 (980) Показать номер
    Посмотреть контакты
    Склад в Московская область, Химки ш. Вашутинское, вл46 (8000 м) - Фото 1
    Склад в Московская область, Химки ш. Вашутинское, вл46 (8000 м) - Фото 2
    Услуги ответственного хранения.Уникальный номер помещения.Помещение находится на огороженной и охраняемой территории; Склад ответственного хранения класса А.Удобное расположение: 8 км. до МКАД.Добавьте объявление в избранное, чтобы не упустить выгодное...
    • 1/1 эт.
    8 928 000 Р
    Агент
    +7 (980) Показать номер
    Посмотреть контакты
    Склад в Московская область, Раменский муниципальный округ, Быково пгт ... - Фото 1
    Склад в Московская область, Раменский муниципальный округ, Быково пгт ... - Фото 2
    Отапливаемый склад в аренду от собственника без комиссии. Класс B. Объявление актуально. Охраняемая территория. 14.3 км от МКАД. Никаких скрытых платежей. Открыты к диалогу по условиям аренды. ID объекта 3797. Добавьте в избранное, чтобы не потерять...
    • 1/1 эт.
    8 966 700 Р
    Агент
    +7 (982) Показать номер
    Посмотреть контакты

    Не нашли подходящего объявления?

    Оставьте заявку, и наши риэлторы подберут склад в районе Томилино

    (0)