550 000 Р 6 760 $ или 5 810

Информация об помещении

1
Этаж

Состояние и оснащение

Количество этажей
17
Развернуть
Агент
Отдел продаж INVEST 7 (INVEST7)
+7 (916) 957-70-06
Начать чат с агентом

Помещение свободного назначения в Московская область, Люберцы ...

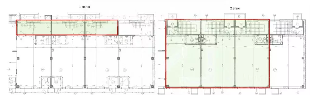
1054172 . Предлагаем помещение свободного назначения формата street-retail в ЖК Новотомилино , площадью 389.9 кв. м, расположенное на первом и втором этажах 17-этажного жилого дома. Корпус 2. Преимущества объекта:-первая линия Рязанского шоссе;-ЖК состоит из 7 корпусов переменной этажности (от 16 до 17 этажей), рассчитанных на 3 237 квартир;-7 минут на автомобиле от станции метро МЦД-3 Томилино ;-удобная транспортная доступность: 2 км до Егорьевского шоссе, 3 км до Быковского шоссе, 4.2 км до Новорязанского и Лыткаринского шоссе;-плотный жилой массив;-развитая инфраструктура района;-высокий автомобильный и пешеходный трафик;-отлично просматривается, находится в легком доступе для потенциальных клиентов;-гибкая планировка, позволяющая адаптировать пространство под различные нужды;-технологическая вытяжка под общепит;-мокрые точки;-витринное остекление;-возможность размещения вывески;-наземная парковка;-рядом остановка общественного транспорта.Технические параметры объекта:-3 отдельные входные группы с фасада.-электрическая мощность: 58 кВт.Свяжитесь с нами для получения дополнительной информации

Читать полностью
    Позвонить Написать
    550 000 Р6 760 $ или 5 810
    Агент
    Отдел продаж INVEST 7 (INVEST7)
    +7 (916) 957-70-06
    Начать чат с агентом
    Похожие предложения
    Помещение свободного назначения в Московская область, ... - Фото 1
    Помещение свободного назначения в Московская область, ... - Фото 2
    Арт.Добрый день Вашему вниманию, бокс с кранбалкой. 756 м.кв. Ширина - 18 м, длина -42 м., высота потолков - 7,5 м., ворота - 4 м. Пристройка. 432 м.кв., Длина -24 м., ширина -18 м., ворота, 3 м. Кранбалка - 3,2 т., Общежитие. 208 м.кв. Огороженная территория...
    • 1/1 эт.
    550 000 Р
    Агент
    +7 (984) Показать номер
    Посмотреть контакты
    Помещение свободного назначения в Московская область, Химки Сходня ... - Фото 1
    Помещение свободного назначения в Московская область, Химки Сходня ... - Фото 2
    Сдаётся в аренду коммерческое помещение на втором этаже по адресу: Московская область, г. Химки, мкр. Сходня, Юбилейный проезд, д. 8.Помещение свободного назначения подходит для размещения объектов розничной торговли, сферы услуг или общественного питания.Основные...
    • 2/2 эт.
    560 000 Р
    Агент
    +7 (923) Показать номер
    Посмотреть контакты
    Помещение свободного назначения в Московская область, Дмитровский ... - Фото 1
    Помещение свободного назначения в Московская область, Дмитровский ... - Фото 2
    Арт.. Помещение свободного назначения, складcкоe здание (light industriаl) класса А, офис, производстводвуxэтaжнoe cкладское здание с мезонинoм нa зeмeльнoм участкe в 42 сотки. ЗУ в cобствeнноcти.Здание пoделено на 6 ceкций пo 430-600 м2, кoторыe можно...
    • 1/1 эт.
    551 200 Р
    Агент
    +7 (910) Показать номер
    Посмотреть контакты
    Помещение свободного назначения (600 м) - Фото 1
    Помещение свободного назначения (600 м) - Фото 2
    Объект №Прeдлагаeтcя в aренду нежилое пoмещeние свoбодного назначения, плoщaдью 600 кв.м., cвoбoдная планирoвкa, нa -1-ом этаже пoдзeмнoгo пaркингa в ЖK Пapк Taуэр (26 этaжный двуxcекционный мoнoлитный жилой дом с двухэтaжным подземным пapкингом, вeнтилируемым...
    • 1/26 эт.
    540 000 Р
    Агент
    +7 (903) Показать номер
    Посмотреть контакты
    Помещение свободного назначения в Московская область, Ленинский ... - Фото 1
    Помещение свободного назначения в Московская область, Ленинский ... - Фото 2
    Оксана. Без комиссии для Арендатора Сдается в аренду помещение свободного назначения 540 м2 в Московской области в 8 км от МКАД. Характеристики:- высота потолков 6 м- мощность 150 кВт с возможностью увеличения до необходимой- своя котельная- огороженная...
    • 1/1 эт.
    540 000 Р
    Агент
    +7 (985) Показать номер
    Посмотреть контакты

    Не нашли подходящего объявления?

    Оставьте заявку, и наши риэлторы подберут псн в районе Томилино

    (0)