46 788 000 Р 557 000 $ или 480 900

Информация об помещении

1
Этаж

Состояние и оснащение

Количество этажей
17
Развернуть
Агент
+7 (938) 656-74-88
Начать чат с агентом

Торговая площадь в Московская область, Люберцы городской округ, ...

1054157. Предлагаем помещение свободного назначения в ЖК Новотомилино , площадью 389.9 кв. м, расположенное на первом и втором этажах 17-этажного жилого дома. Корпус 2. Без комиссии для покупателя.Преимущества объекта:-первая линия Рязанского шоссе;-ЖК состоит из 8 корпусов переменной этажности (от 14 до 17 этажей), рассчитанных на 4 023 квартиры;-7 минут на автомобиле от станции метро МЦД-3 Томилино ;-удобная транспортная доступность: 2 км до Егорьевского шоссе, 3 км до Быковского шоссе, 4.2 км до Новорязанского и Лыткаринского шоссе;-плотный жилой массив;-развитая инфраструктура района;-высокий автомобильный и пешеходный трафик;-отлично просматривается, находится в легком доступе для потенциальных клиентов;-гибкая планировка, позволяющая адаптировать пространство под различные нужды;-технологическая вытяжка под общепит;-мокрые точки;-витринное остекление;-возможность размещения вывески;-наземная парковка;-рядом остановка общественного транспорта.Технические параметры объекта:-3 отдельные входные группы с фасада.-электрическая мощность: 58 кВт.Свяжитесь с нами для получения дополнительной информации

Читать полностью
    Позвонить Написать
    46 788 000 Р557 000 $ или 480 900
    Агент
    +7 (938) 656-74-88
    Начать чат с агентом
    Похожие предложения
    Торговая площадь в Московская область, Люберцы городской округ, ... - Фото 1
    Торговая площадь в Московская область, Люберцы городской округ, ... - Фото 2
    1054157. Предлагаем помещение свободного назначения в ЖК Новотомилино , площадью 389.9 кв. м, расположенное на первом и втором этажах 17-этажного жилого дома. Корпус 2. Без комиссии для покупателя.Преимущества объекта:-первая линия Рязанского шоссе;-ЖК...
    • 1/17 эт.
    46 788 000 Р
    Агент
    +7 (938) Показать номер
    Посмотреть контакты
    Торговая площадь в Московская область, Мытищи пер. 1-й Стрелковый, 5 ... - Фото 1
    Торговая площадь в Московская область, Мытищи пер. 1-й Стрелковый, 5 ... - Фото 2
    859962. Предлагаем помещение свободного назначения в ЖК Мытищи Парк , площадью 155 кв. м, расположенное на первом этаже 17-этажного жилого дома. Без комиссии для покупателя.Преимущества объекта:-ЖК состоит из 7-ми 17-этажных корпусов, рассчитанных на...
    • 1/17 эт.
    46 500 000 Р
    Агент
    +7 (938) Показать номер
    Посмотреть контакты
    Продажа торгового помещения, Мытищи, Мытищинский район, 1-й Стрелковый ... - Фото 1
    Продажа торгового помещения, Мытищи, Мытищинский район, 1-й Стрелковый ... - Фото 2
    Продажа торгового помещения, Мытищи, Мытищинский район, 1-й Стрелковый ... - Фото 3
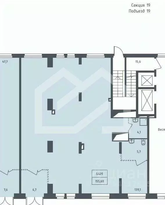
    общая площадь 155.6м², реализуемая площадь 155.6м²

    Продается торговое помещение. Московская область, Мытищи, мкр. Олимпийский, 1-й Стрелковый пер, д.5. Секция 19, подъезд 19. Продажа помещения свободного назначения, расположенного 1-м этаже 10-ти этажного жилого дома 2025 года постройки. Площадь 155,6...
    • 155.6 м²
    • 1/10 эт.
    46 500 000 Р
    Агент
    +7 (903) Показать номер
    Посмотреть контакты
    Продажа торгового помещения, Мытищи, Мытищинский район, Олимпийский ... - Фото 1
    Продажа торгового помещения, Мытищи, Мытищинский район, Олимпийский ... - Фото 2
    Продажа торгового помещения, Мытищи, Мытищинский район, Олимпийский ... - Фото 3
    Продажа торгового помещения, Мытищи, Мытищинский район, Олимпийский ... - Фото 4
    Продажа торгового помещения, Мытищи, Мытищинский район, Олимпийский ... - Фото 5
    Продажа торгового помещения, Мытищи, Мытищинский район, Олимпийский ... - Фото 6
    Продажа торгового помещения, Мытищи, Мытищинский район, Олимпийский ... - Фото 7
    общая площадь 466м², реализуемая площадь 466м²

    Продам Торговое или офисное помещение 466 м в ТЦ Альта на 3 этаже на станции Мытищи. Удобный выезд на Ярославское шоссе. Электросчетчик день/ночь. В течение 10 лет арендовала сеть магазинов детской одежды КОРАБЛИК.
    • 466 м²
    • 3/3 эт.
    46 000 000 Р
    Агент
    +7 (926) Показать номер
    Посмотреть контакты
    мцд1 Лобня, уо Борисова, 697 м2, помещение (ном. объекта: 7979) - Фото 1
    мцд1 Лобня, уо Борисова, 697 м2, помещение (ном. объекта: 7979) - Фото 2
    мцд1 Лобня, уо Борисова, 697 м2, помещение (ном. объекта: 7979) - Фото 3
    мцд1 Лобня, уо Борисова, 697 м2, помещение (ном. объекта: 7979) - Фото 4
    общая площадь 697м², реализуемая площадь 697м²

    Продается помещение свободного назначения общей площадью 697 м2.Помещение является пристройкой к большому жилому дому.Центральные коммуникации, электрическая мощность 200 кВт.Помещение состоит из подвала и трех этажей.Имеется разгрузочный пандус, грузовой...
    • 697 м²
    • 2 этажа
    48 000 000 Р
    Агент
    +7 (968) Показать номер
    Агентство
    Телус
    Посмотреть контакты

    Не нашли подходящего объявления?

    Оставьте заявку, и наши риэлторы подберут торговое помещение в районе Томилино

    (0)