Россия, Подмосковье, Люберецкий район, Томилино, Новорязанское шоссе, 25-й километр, 5к9
134 910 000 Р 1 757 700 $ или 1 494 300

Информация об помещении

1
Этаж

Состояние и оснащение

Количество этажей
1
Развернуть
Агент
+7 (985) 556-14-15
Начать чат с агентом

Склад в Московская область, Люберцы городской округ, Томилино пгт ...

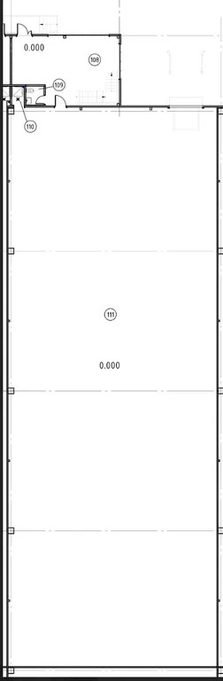
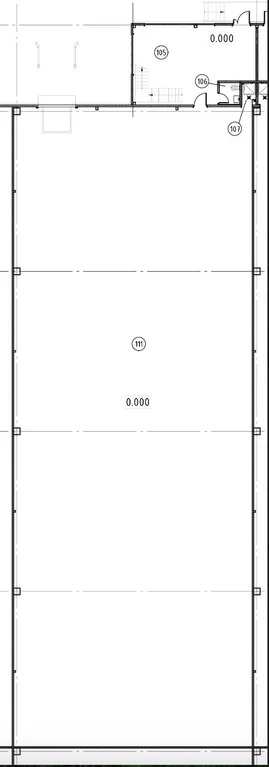
Специальное предложение: ограниченное количество блоков по выгодной цене О ПРОЕКТЕ:Производственно-складской комплекс формата - LIGHT INDUSTRIAL, единый дизайн-код блоков, проработанное внутреннее пространство, объединенные концепцией современного технопарка.- Парковка для большегрузных и легковых автомобилей- Управляющая компания- Столовая- Доступ 24/7- Охрана, КПП, видеонаблюдениеПервая очередь строительства: 50 000 м2Срок реализации: II квартал 2027 гЛОКАЦИЯ:- 8 км от МКАД по Новорязанскому шоссе (М-5), в районе рп Томилино- Ближайшие населенные пункты: Томилино, Лыткарино, Люберцы- 1 мин. пешком до остановки- 20 мин. от МЦД-3 Томилино общественным транспортом- 20 мин. от м. Котельники общественным транспортомТЕХНИЧЕСКИЕ ХАРАКТЕРИСТИКИ:- Площадь типового Блока: 1499 м2 (площадь склада 1171 м2, площадь мезонина 328 м2)- Нагрузка на пол склада: 6 т/м- Нагрузка на пол мезонина: от 0.5 кг/м (опция: увеличение)- Стены: сэндвич-панели 120 мм- Кровля: мембранная, толщина 150 мм- Рабочая высота: 10.4 м- Разгрузка на отметке: 1.200- Подъёмно-секционные ворота: 4 шт. Доклевеллеры.ИНЖЕНЕРНЫЕ СИСТЕМЫ:- Электричество: от 30 кВт. (опция: увеличение)- Отопление: газ (автономно на блок)- Канализация и водоснабжение- Индивидуальные приборы учетаСПЕЦИАЛЬНАЯ ЦЕНА 90 000 за м, включая НДС ( действует до 17.03.2026)*при условии оплаты авансового платежа в размере 80 и 20 после оформления права собственности на Покупателя. Количество блоков ограничено Индивидуальные условия обсуждаются.Подписание договора купли-продажи с собственником. Без комиссии, процентов и надбавок.Звоните, мы оперативно организуем просмотр локации в удобную для вас дату и ответим на все интересующие вопросы. Подробная презентация направляется по запросу.

Читать полностью
    Позвонить Написать
    134 910 000 Р1 757 700 $ или 1 494 300
    Агент
    +7 (985) 556-14-15
    Начать чат с агентом
    Похожие предложения
    Продажа склада, Люберцы, Люберецкий район, Токаревская ул. - Фото 1
    Продажа склада, Люберцы, Люберецкий район, Токаревская ул. - Фото 2
    Продажа склада, Люберцы, Люберецкий район, Токаревская ул. - Фото 3
    Продажа склада, Люберцы, Люберецкий район, Токаревская ул. - Фото 4
    Продажа склада, Люберцы, Люберецкий район, Токаревская ул. - Фото 5
    Продажа склада, Люберцы, Люберецкий район, Токаревская ул. - Фото 6
    Продажа склада, Люберцы, Люберецкий район, Токаревская ул. - Фото 7
    Продажа склада, Люберцы, Люберецкий район, Токаревская ул. - Фото 8
    Продажа склада, Люберцы, Люберецкий район, Токаревская ул. - Фото 9
    Продажа склада, Люберцы, Люберецкий район, Токаревская ул. - Фото 10
    Продажа склада, Люберцы, Люберецкий район, Токаревская ул. - Фото 11
    Продажа склада, Люберцы, Люберецкий район, Токаревская ул. - Фото 12
    Продажа склада, Люберцы, Люберецкий район, Токаревская ул. - Фото 13
    Продажа склада, Люберцы, Люберецкий район, Токаревская ул. - Фото 14
    Продажа склада, Люберцы, Люберецкий район, Токаревская ул. - Фото 15
    Продажа склада, Люберцы, Люберецкий район, Токаревская ул. - Фото 16
    Продажа склада, Люберцы, Люберецкий район, Токаревская ул. - Фото 17
    Продажа склада, Люберцы, Люберецкий район, Токаревская ул. - Фото 18
    общая площадь 1468м², полезная площадь 1468м²

    Арт. Продается производственно-складское помещение 1468 кв.м. Высота потолков 10 м. Пол с антипылевым покрытием и двойным армированием выдерживает нагрузку не менее 6 тонн на 1 м. Строительные материалы зданий образуют конструкцию "термос" - фасадная...
    • 1 468 м²
    • 1-й эт.
    132 120 000 Р
    PRO
    +7 (495) Показать номер
    Агентство
    ИП Захарова
    Посмотреть контакты
    мцд 1 Лобня, ул Чкалова, 1300 м2, Склад (ном. объекта: 8256) - Фото 1
    мцд 1 Лобня, ул Чкалова, 1300 м2, Склад (ном. объекта: 8256) - Фото 2
    мцд 1 Лобня, ул Чкалова, 1300 м2, Склад (ном. объекта: 8256) - Фото 3
    мцд 1 Лобня, ул Чкалова, 1300 м2, Склад (ном. объекта: 8256) - Фото 4
    мцд 1 Лобня, ул Чкалова, 1300 м2, Склад (ном. объекта: 8256) - Фото 5
    мцд 1 Лобня, ул Чкалова, 1300 м2, Склад (ном. объекта: 8256) - Фото 6
    мцд 1 Лобня, ул Чкалова, 1300 м2, Склад (ном. объекта: 8256) - Фото 7
    мцд 1 Лобня, ул Чкалова, 1300 м2, Склад (ном. объекта: 8256) - Фото 8
    мцд 1 Лобня, ул Чкалова, 1300 м2, Склад (ном. объекта: 8256) - Фото 9
    мцд 1 Лобня, ул Чкалова, 1300 м2, Склад (ном. объекта: 8256) - Фото 10
    мцд 1 Лобня, ул Чкалова, 1300 м2, Склад (ном. объекта: 8256) - Фото 11
    мцд 1 Лобня, ул Чкалова, 1300 м2, Склад (ном. объекта: 8256) - Фото 12
    мцд 1 Лобня, ул Чкалова, 1300 м2, Склад (ном. объекта: 8256) - Фото 13
    мцд 1 Лобня, ул Чкалова, 1300 м2, Склад (ном. объекта: 8256) - Фото 14
    мцд 1 Лобня, ул Чкалова, 1300 м2, Склад (ном. объекта: 8256) - Фото 15
    мцд 1 Лобня, ул Чкалова, 1300 м2, Склад (ном. объекта: 8256) - Фото 16
    мцд 1 Лобня, ул Чкалова, 1300 м2, Склад (ном. объекта: 8256) - Фото 17
    мцд 1 Лобня, ул Чкалова, 1300 м2, Склад (ном. объекта: 8256) - Фото 18
    мцд 1 Лобня, ул Чкалова, 1300 м2, Склад (ном. объекта: 8256) - Фото 19
    общая площадь 1300м², полезная площадь 1300м²

    Продается склад 1300 масположенный на участке 22 сотки. ВРи участка : склад, производство. 1 этаж, 150 квт, газ. Своя парковка, рядом автобусные остановки, 15 минут до станции мцд1 Лобня. Полы антипыль, 3 ворот в ноль, 6.5 метро потолки, сендвич-панель....
    • 1 300 м²
    120 000 000 Р
    Агент
    +7 (968) Показать номер
    Агентство
    Телус
    Посмотреть контакты
    МО, Богородский г.о., Промышленный парк, 1440 м2, Лайт Индастриал под ... - Фото 1
    МО, Богородский г.о., Промышленный парк, 1440 м2, Лайт Индастриал под ... - Фото 2
    МО, Богородский г.о., Промышленный парк, 1440 м2, Лайт Индастриал под ... - Фото 3
    МО, Богородский г.о., Промышленный парк, 1440 м2, Лайт Индастриал под ... - Фото 4
    МО, Богородский г.о., Промышленный парк, 1440 м2, Лайт Индастриал под ... - Фото 5
    МО, Богородский г.о., Промышленный парк, 1440 м2, Лайт Индастриал под ... - Фото 6
    МО, Богородский г.о., Промышленный парк, 1440 м2, Лайт Индастриал под ... - Фото 7
    МО, Богородский г.о., Промышленный парк, 1440 м2, Лайт Индастриал под ... - Фото 8
    МО, Богородский г.о., Промышленный парк, 1440 м2, Лайт Индастриал под ... - Фото 9
    МО, Богородский г.о., Промышленный парк, 1440 м2, Лайт Индастриал под ... - Фото 10
    МО, Богородский г.о., Промышленный парк, 1440 м2, Лайт Индастриал под ... - Фото 11
    МО, Богородский г.о., Промышленный парк, 1440 м2, Лайт Индастриал под ... - Фото 12
    МО, Богородский г.о., Промышленный парк, 1440 м2, Лайт Индастриал под ... - Фото 13
    МО, Богородский г.о., Промышленный парк, 1440 м2, Лайт Индастриал под ... - Фото 14
    МО, Богородский г.о., Промышленный парк, 1440 м2, Лайт Индастриал под ... - Фото 15
    МО, Богородский г.о., Промышленный парк, 1440 м2, Лайт Индастриал под ... - Фото 16
    МО, Богородский г.о., Промышленный парк, 1440 м2, Лайт Индастриал под ... - Фото 17
    МО, Богородский г.о., Промышленный парк, 1440 м2, Лайт Индастриал под ... - Фото 18
    МО, Богородский г.о., Промышленный парк, 1440 м2, Лайт Индастриал под ... - Фото 19
    общая площадь 1440м², полезная площадь 1440м²

    Здание формата Лайт Индастриал под склад или производство. Площадь здания 1440 м2. Материал стен - сэндвич-панели. Трое въездных ворот. Теплый контур - система отопления. Высота 8 метров. Земельный участок 4600 м2 в собственности. Автономность и возможность...
    • 1 440 м²
    129 600 000 Р
    Агент
    +7 (905) Показать номер
    Агентство
    Телус
    Посмотреть контакты
    МО, г Чехов, д Гавриково, 1470 м2, Склад-light industrial (ном. ... - Фото 1
    МО, г Чехов, д Гавриково, 1470 м2, Склад-light industrial (ном. ... - Фото 2
    МО, г Чехов, д Гавриково, 1470 м2, Склад-light industrial (ном. ... - Фото 3
    МО, г Чехов, д Гавриково, 1470 м2, Склад-light industrial (ном. ... - Фото 4
    МО, г Чехов, д Гавриково, 1470 м2, Склад-light industrial (ном. ... - Фото 5
    МО, г Чехов, д Гавриково, 1470 м2, Склад-light industrial (ном. ... - Фото 6
    МО, г Чехов, д Гавриково, 1470 м2, Склад-light industrial (ном. ... - Фото 7
    МО, г Чехов, д Гавриково, 1470 м2, Склад-light industrial (ном. ... - Фото 8
    МО, г Чехов, д Гавриково, 1470 м2, Склад-light industrial (ном. ... - Фото 9
    МО, г Чехов, д Гавриково, 1470 м2, Склад-light industrial (ном. ... - Фото 10
    МО, г Чехов, д Гавриково, 1470 м2, Склад-light industrial (ном. ... - Фото 11
    МО, г Чехов, д Гавриково, 1470 м2, Склад-light industrial (ном. ... - Фото 12
    общая площадь 1470м², полезная площадь 1470м²

    Продается склад формата лайт-индастриал на первой стадии строительства, окончание строительства 3 квартал 2025 года. Площадь здания 1470 м2, 70 квт электрической мощности, нагрузка на пол до 5 тонн на м2, потолки 8 метров, все коммуникации в наличии,...
    • 1 470 м²
    123 480 000 Р
    Агент
    +7 (968) Показать номер
    Агентство
    Телус
    Посмотреть контакты
    МО, Раменский, д Торопово, 1490 м2, Склад light industrial (ном. ... - Фото 1
    МО, Раменский, д Торопово, 1490 м2, Склад light industrial (ном. ... - Фото 2
    МО, Раменский, д Торопово, 1490 м2, Склад light industrial (ном. ... - Фото 3
    МО, Раменский, д Торопово, 1490 м2, Склад light industrial (ном. ... - Фото 4
    общая площадь 1490м², полезная площадь 1490м²

    Продается корпус 1490 м2 формата лайт индастриал в индустриальном парке Альфа. Земля под зданием в собственности. Высота потолка 8 метров, нагрузка на пол до 5 тонн на м2, open space планировка. На территории парка множество объектов площадью от 180 м2...
    • 1 490 м²
    132 610 000 Р
    Агент
    +7 (968) Показать номер
    Агентство
    Телус
    Посмотреть контакты

    Не нашли подходящего объявления?

    Оставьте заявку, и наши риэлторы подберут склад в районе Томилино

    (0)