350 000 000 Р 4 496 800 $ или 3 865 800

Информация об помещении

1
Этаж

Состояние и оснащение

Количество этажей
1
Развернуть
Агент
+7 (938) 656-74-88
Начать чат с агентом

Помещение свободного назначения в Московская область, Люберцы ...

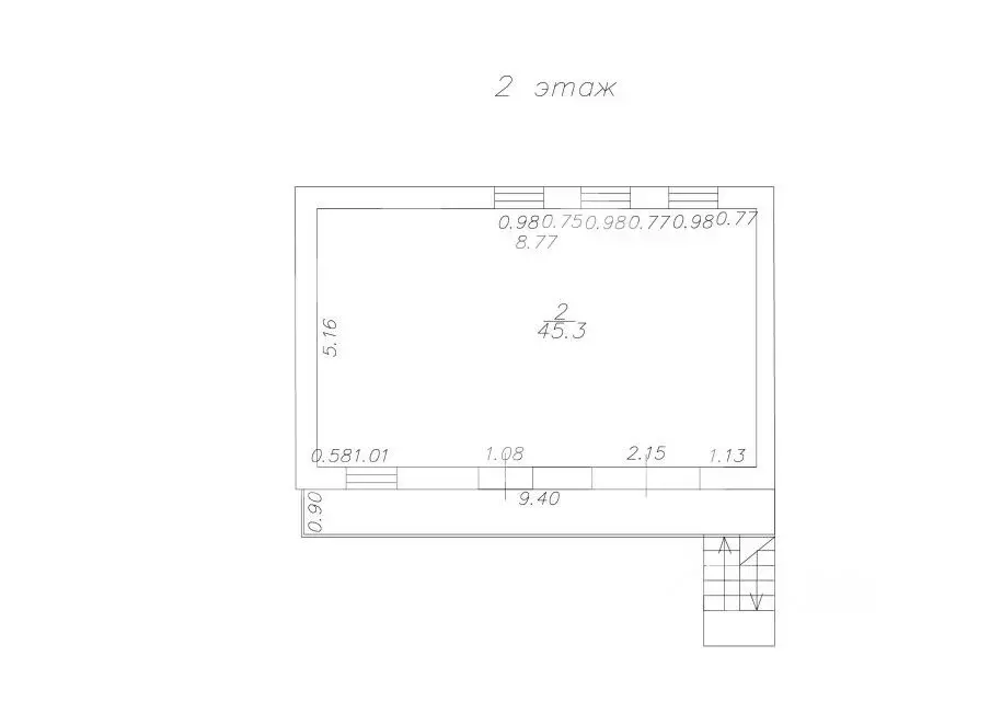
1065654 . Предлагается склад категории В+ общей площадью 2806 кв. м. в Томилино. Преимущества: Центр крупной промышленной зоны. В 500 метрах от склада, достраивается транспортная развязка, Южно -Лыткаринской автодороги, которая будет сдана в 2025г. с выездом на М-12 и МКАД за 1 минуту. Рядом Рязанское, Новорязанское и Егорьевское шоссе. Егорьевская таможня. До МКАД 5 км, до Третьего ТК 18 км, до ЦКАД 26 км.Близость к МКАД. Материал стен: облицовочный кирпич, блоки, склад обшит декоративными панелями.Открытая планировка + офисный блок. Склад оборудован системой СКУД и видеонаблюдением.Широкополосный доступ в интернет.В кабинетах установлены сплит-системы, устроена серверная с охлаждением.Склад оборудован порошковой системой огнетушения.Сделан капитальный ремонт офиса и капитальный ремонт пола склада. Центральное отопление, водоснабжение, канализация, пожарная сигнализация.Пол склада покрыт новым полимерным покрытием согласно ГОСТ.Подъезд еврофур ко всем воротам, место для разворота. Круглогодичный подъезд, асфальтированная дорога, охрана территории, круглогодичная уборка территории. Собственный контейнер для мусора + договор на вывоз ТБО.Технические характеристики: ЗУ: 4 383 м2, в собственности. 4 ворот в ноль . 2 ворот на одну сторону, 2-е на другую.Входная группа: металлические антивандальные двери.Высота потолков: 8 метров, установлено новое ячеечное хранилище.Электрическая мощность: 170 кВт, с возможностью увеличения до 950 кВт.Два пандуса, один из которых рассчитан на выгрузку/загрузку/перегрузку одновременно двух фур.

Читать полностью
    Позвонить Написать
    350 000 000 Р4 496 800 $ или 3 865 800
    Агент
    +7 (938) 656-74-88
    Начать чат с агентом
    Похожие предложения
    Здание (Торговый Центр) - Фото 1
    Здание (Торговый Центр) - Фото 2
    Здание (Торговый Центр) - Фото 3
    Здание (Торговый Центр) - Фото 4
    Здание (Торговый Центр) - Фото 5
    Здание (Торговый Центр) - Фото 6
    Здание (Торговый Центр) - Фото 7
    Здание (Торговый Центр) - Фото 8
    Здание (Торговый Центр) - Фото 9
    Здание (Торговый Центр) - Фото 10
    Здание (Торговый Центр) - Фото 11
    Здание (Торговый Центр) - Фото 12
    Здание (Торговый Центр) - Фото 13
    Здание (Торговый Центр) - Фото 14
    Здание (Торговый Центр) - Фото 15
    Здание (Торговый Центр) - Фото 16
    Здание (Торговый Центр) - Фото 17
    Здание (Торговый Центр) - Фото 18
    Здание (Торговый Центр) - Фото 19
    Здание (Торговый Центр) - Фото 20
    полезная площадь 3700м²

    Готовый арендный бизнес (Эксклюзивно MANTIS GROUP) Предлагаем качественный арендный бизнес в Зеленограде — новый торговый центр «KIOSK», общей площадью 3700 м, с якорными арендаторами и стабильным доходом. Новое здание по европейскому проекту со всеми...
    • 3 700 м²
    • 1/1 эт.
    349 000 000 Р
    Агент
    +7 (929) Показать номер
    Посмотреть контакты
    ТОРГОВЫЙ ЦЕНТР - Фото 1
    ТОРГОВЫЙ ЦЕНТР - Фото 2
    ТОРГОВЫЙ ЦЕНТР - Фото 3
    ТОРГОВЫЙ ЦЕНТР - Фото 4
    ТОРГОВЫЙ ЦЕНТР - Фото 5
    ТОРГОВЫЙ ЦЕНТР - Фото 6
    ТОРГОВЫЙ ЦЕНТР - Фото 7
    ТОРГОВЫЙ ЦЕНТР - Фото 8
    ТОРГОВЫЙ ЦЕНТР - Фото 9
    ТОРГОВЫЙ ЦЕНТР - Фото 10
    ТОРГОВЫЙ ЦЕНТР - Фото 11
    ТОРГОВЫЙ ЦЕНТР - Фото 12
    ТОРГОВЫЙ ЦЕНТР - Фото 13
    ТОРГОВЫЙ ЦЕНТР - Фото 14
    ТОРГОВЫЙ ЦЕНТР - Фото 15
    ТОРГОВЫЙ ЦЕНТР - Фото 16
    ТОРГОВЫЙ ЦЕНТР - Фото 17
    ТОРГОВЫЙ ЦЕНТР - Фото 18
    ТОРГОВЫЙ ЦЕНТР - Фото 19
    ТОРГОВЫЙ ЦЕНТР - Фото 20
    полезная площадь 3700м²

    Готовый арендный бизнес (Эксклюзивно MANTIS GROUP) Предлагаем качественный арендный бизнес в Зеленограде — новый торговый центр «KIOSK», общей площадью 3700 м, с якорными арендаторами и стабильным доходом. Новое здание по европейскому проекту со всеми...
    • 3 700 м²
    • 1/1 эт.
    349 000 000 Р
    Агент
    +7 (929) Показать номер
    Посмотреть контакты
    Помещение свободного назначения в Московская область, Реутов ... - Фото 1
    Помещение свободного назначения в Московская область, Реутов ... - Фото 2
    763474-wf . Предлагается складской комплекс общей площадью 3 872 кв. м. в гор. Реутов.Преимущества:Развитая транспортная инфраструктура, шоссе Энтузиастов и МКАД в 4 км.10 минут на автомобиле от ст. Никольское и Новокосино .Сложившееся торгово-промышленное...
    • 1/3 эт.
    360 000 000 Р
    Агент
    +7 (938) Показать номер
    Посмотреть контакты
    Продажа ПСН, Химки, Ленинградское ш. - Фото 1
    Продажа ПСН, Химки, Ленинградское ш. - Фото 2
    Продажа ПСН, Химки, Ленинградское ш. - Фото 3
    Продажа ПСН, Химки, Ленинградское ш. - Фото 4
    Продажа ПСН, Химки, Ленинградское ш. - Фото 5
    Продажа ПСН, Химки, Ленинградское ш. - Фото 6
    Продажа ПСН, Химки, Ленинградское ш. - Фото 7
    Продажа ПСН, Химки, Ленинградское ш. - Фото 8
    Продажа ПСН, Химки, Ленинградское ш. - Фото 9
    Продажа ПСН, Химки, Ленинградское ш. - Фото 10
    общая площадь 2817м², полезная площадь 2817м²

    От собственника. Арендный бизнес. ПСН общей площадью 2817 м2, находится в Торговом центре Лига, который расположен на пересечении Ленинградского шоссе и Юбилейного проспекта, в 10 минутах на транспорте от метро Речной вокзал. Помещение – на 2-м этаже...
    • 2 817 м²
    • 2-й эт.
    350 000 000 Р
    Агент
    +7 (903) Показать номер
    Посмотреть контакты
    Помещение свободного назначения в Московская область, Богородский ... - Фото 1
    Помещение свободного назначения в Московская область, Богородский ... - Фото 2
    919591 . Складское помещение в производственно-складском комплексе формата light industrial в черте города Ногинска. Отличная транспортная доступность - 45 км от МКАД по федеральной трассе М7, 4 км от ЦКАД, 8 км от федеральной трассы М12. 1 этаж. Ворота:...
    • 1/1 эт.
    360 000 000 Р
    Агент
    +7 (938) Показать номер
    Посмотреть контакты

    Не нашли подходящего объявления?

    Оставьте заявку, и наши риэлторы подберут псн в районе Томилино

    (0)