90 000 000 Р 1 142 900 $ или 988 700

Информация об помещении

1
Этаж

Состояние и оснащение

Количество этажей
1
Развернуть
Агент
+7 (980) 191-45-50
Начать чат с агентом

Производственное помещение в Московская область, Люберцы городской ...

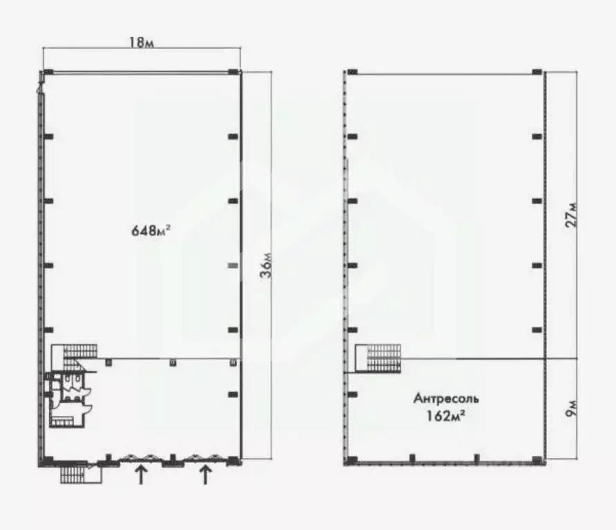
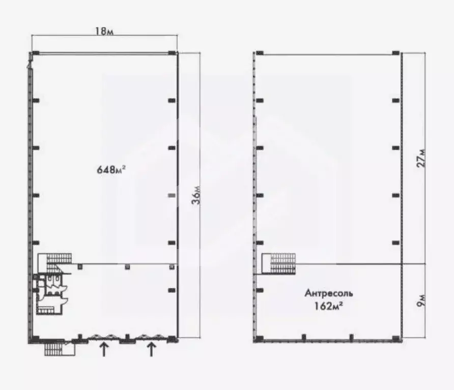
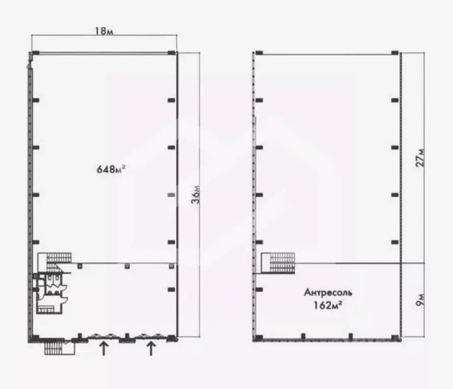
Уникальный номер помещения.Строительство современного производственно-складского комплекса класса В формата Light industrial в Томилино.Удобное расположение: 8 км. до МКАД.Добавьте объявление в избранное, чтобы не упустить выгодное предложение Рабочая высота 10 мШаг колонн 18 х 12 мЗона разгрузки на уровне 1,1 м от уровня полаНагрузка на пол 6 т/м2. Антипылевое покрытие.ОтоплениеВсе необходимые коммуникацииПриточно-вытяжную вентиляцияМезонин можно использовать под хранение, сортировку товаров, демонстрационный зал шоурум и офисТерритория комплекса охраняетсяУстановлены средства контроля доступа и видеонаблюдениеДействует контрольно-пропускной пунктДороги из асфальтобетона.Огороженная территория.Удобный заезд.Все условия для комфортной работы.Подробности по запросуПочему стоит обращаться к нам:1) Работаем с 2014 года2) Специализируемся только на индустриальной и складской недвижимости3) У нас одна из самых больших баз собственников и клиентов4) Не берём комиссию с арендаторов/покупателей. Подберем оптимальное решение под ваши задачи. Звоните прямо сейчас

Читать полностью
    Позвонить Написать
    90 000 000 Р1 142 900 $ или 988 700
    Агент
    +7 (980) 191-45-50
    Начать чат с агентом
    Похожие предложения
    Производственное помещение в Московская область, Домодедово ... - Фото 1
    Производственное помещение в Московская область, Домодедово ... - Фото 2
    1137261. Предлагается склад общей площадью 810 кв. м в Домодедово. 1 этаж + антресоль ОСЗ. Преимущества: Парк расположен в черте города. Возможность эффективно выстроить логистику и поиск трудовых ресурсов для ведения бизнеса.Два независимых КПП.Прямой...
    • 1/2 эт.
    89 100 000 Р
    Агент
    +7 (938) Показать номер
    Посмотреть контакты
    Производственное помещение в Московская область, Богородский городской ... - Фото 1
    Производственное помещение в Московская область, Богородский городской ... - Фото 2
    919555. Складское помещение класса В в производственно-складском комплексе формата Лайт индастриал в г. Ногинск. 10 минут на автомобиле от ж/д станции Захарово . 1.3 км до шоссе Энтузиастов, 3 км до Горьковского шоссе. Высокий автомобильный и пешеходный...
    • 1/1 эт.
    90 000 000 Р
    Агент
    +7 (938) Показать номер
    Посмотреть контакты
    Производственное помещение в Московская область, Домодедово ... - Фото 1
    Производственное помещение в Московская область, Домодедово ... - Фото 2
    1137261. Предлагается склад общей площадью 810 кв. м в Домодедово. 1 этаж + антресоль ОСЗ. Преимущества: Парк расположен в черте города. Возможность эффективно выстроить логистику и поиск трудовых ресурсов для ведения бизнеса.Два независимых КПП.Прямой...
    • 1/2 эт.
    89 100 000 Р
    Агент
    +7 (938) Показать номер
    Посмотреть контакты
    Производственное помещение в Московская область, Домодедово ... - Фото 1
    Производственное помещение в Московская область, Домодедово ... - Фото 2
    1137261. Предлагается склад общей площадью 810 кв. м в Домодедово. 1 этаж + антресоль ОСЗ. Преимущества: Парк расположен в черте города. Возможность эффективно выстроить логистику и поиск трудовых ресурсов для ведения бизнеса.Два независимых КПП.Прямой...
    • 1/2 эт.
    89 100 000 Р
    Агент
    +7 (938) Показать номер
    Посмотреть контакты
    Производственное помещение в Московская область, Богородский городской ... - Фото 1
    Производственное помещение в Московская область, Богородский городской ... - Фото 2
    919555. Складское помещение класса В в производственно-складском комплексе формата Лайт индастриал в г. Ногинск. 10 минут на автомобиле от ж/д станции Захарово . 1.3 км до шоссе Энтузиастов, 3 км до Горьковского шоссе. Высокий автомобильный и пешеходный...
    • 1/1 эт.
    90 000 000 Р
    Агент
    +7 (938) Показать номер
    Посмотреть контакты

    Не нашли подходящего объявления?

    Оставьте заявку, и наши риэлторы подберут производственное помещение в районе Томилино

    (0)