Солнечногорский район
Выбрать Отмена
1 607 726 737 Р 20 704 700 $ или 17 472 700

Информация об помещении

1
Этаж

Состояние и оснащение

Количество этажей
1
Развернуть
Агент
+7 (915) 266-41-29
Начать чат с агентом

Склад в Московская область, Солнечногорск городской округ, ...

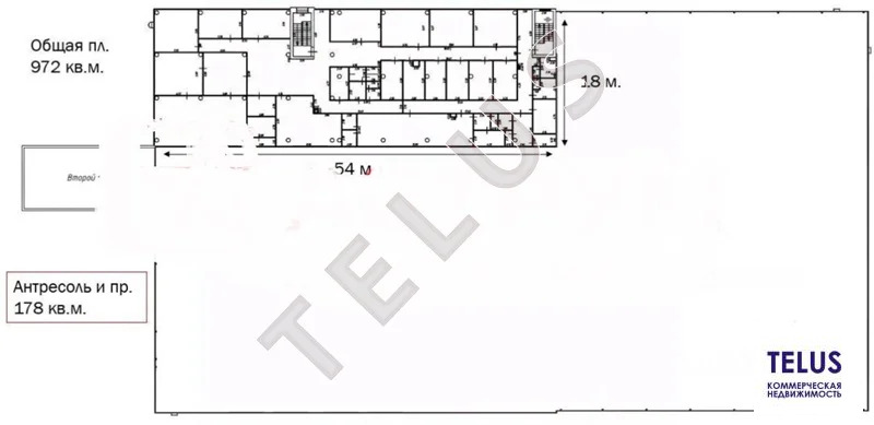
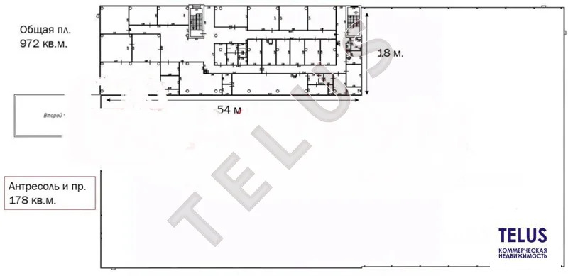
Складское помещение 10 473.8 кв. м в ICPARK Есипово . Прямая продажа, без комиссии. Объект на стадии активного строительства, готовность ко въезду уточняется по запросу. Направление: Северо-Запад. Шоссе: Ленинградское. Округ: Московская область. Расстояние от МКАД: 32 км. Характеристики:- Класс: A; - Ворота: Доки; - Тип склада: Light Industrial; - Высота потолков: 8 м; - Нагрузка на пол: 4 т/ кв.м; - Система пожаротушения: Внешние гидранты и внутренние пожарные краны; - Тип пола: С антипылевым покрытием; - Уровень пола: 1.2 м. Стоимость:. Финансовые условия: - Оплачивается отдельно: НДС; - Налог: Включая НДС. Оформление сделки напрямую от собственника, без комиссии.Готовы оперативно организовать просмотр в удобное время, предоставить PDF-презентацию и план. Точное местоположение объекта можно найти по данным координатам: 56.081709,37.104696 ID = c_1774806

Читать полностью
    Позвонить Написать
    1 607 726 737 Р20 704 700 $ или 17 472 700
    Агент
    +7 (915) 266-41-29
    Начать чат с агентом
    Похожие предложения
    Склад в Московская область, Солнечногорск городской округ, Ржавки пгт, ... - Фото 1
    Склад в Московская область, Солнечногорск городской округ, Ржавки пгт, ... - Фото 2
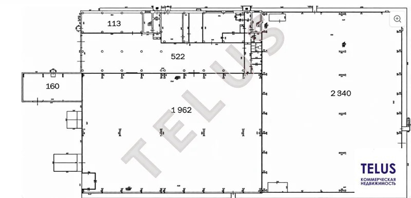
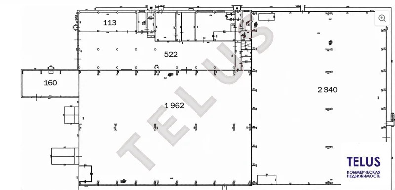
    Уникальный номер помещения.Строительство современного производственно-складского комплекса класса А формата light industrial Удобное расположение: 19 км. до МКАД.Добавьте объявление в избранное, чтобы не упустить выгодное предложение Модульная конструкция...
    • 1/1 эт.
    1 680 000 000 Р
    Агент
    +7 (980) Показать номер
    Посмотреть контакты
    МО, Долгопрудный, Транспортный проезд, 7794 м2, ... - Фото 1
    МО, Долгопрудный, Транспортный проезд, 7794 м2, ... - Фото 2
    МО, Долгопрудный, Транспортный проезд, 7794 м2, ... - Фото 3
    МО, Долгопрудный, Транспортный проезд, 7794 м2, ... - Фото 4
    МО, Долгопрудный, Транспортный проезд, 7794 м2, ... - Фото 5
    МО, Долгопрудный, Транспортный проезд, 7794 м2, ... - Фото 6
    МО, Долгопрудный, Транспортный проезд, 7794 м2, ... - Фото 7
    МО, Долгопрудный, Транспортный проезд, 7794 м2, ... - Фото 8
    МО, Долгопрудный, Транспортный проезд, 7794 м2, ... - Фото 9
    МО, Долгопрудный, Транспортный проезд, 7794 м2, ... - Фото 10
    МО, Долгопрудный, Транспортный проезд, 7794 м2, ... - Фото 11
    МО, Долгопрудный, Транспортный проезд, 7794 м2, ... - Фото 12
    МО, Долгопрудный, Транспортный проезд, 7794 м2, ... - Фото 13
    МО, Долгопрудный, Транспортный проезд, 7794 м2, ... - Фото 14
    МО, Долгопрудный, Транспортный проезд, 7794 м2, ... - Фото 15
    МО, Долгопрудный, Транспортный проезд, 7794 м2, ... - Фото 16
    МО, Долгопрудный, Транспортный проезд, 7794 м2, ... - Фото 17
    МО, Долгопрудный, Транспортный проезд, 7794 м2, ... - Фото 18
    МО, Долгопрудный, Транспортный проезд, 7794 м2, ... - Фото 19
    МО, Долгопрудный, Транспортный проезд, 7794 м2, ... - Фото 20
    общая площадь 7794м², полезная площадь 7794м²

    Производственно-складской комплекс (действующий камне перерабатывающий завод) площадью 7794 м2 на участке 3 га в собственности. Инженерные коммуникации центральные. Электрическая мощность 1,5 МВт (1500 кВт), две ТП, газ по границе. Асфальтированная дорога....
    • 7 794 м²
    1 500 000 000 Р
    Агент
    +7 (968) Показать номер
    Агентство
    Телус
    Посмотреть контакты
    МО, Раменское, ул Трудовая, 9837.7 м2, Склад (ном. объекта: 8259) - Фото 1
    МО, Раменское, ул Трудовая, 9837.7 м2, Склад (ном. объекта: 8259) - Фото 2
    МО, Раменское, ул Трудовая, 9837.7 м2, Склад (ном. объекта: 8259) - Фото 3
    МО, Раменское, ул Трудовая, 9837.7 м2, Склад (ном. объекта: 8259) - Фото 4
    МО, Раменское, ул Трудовая, 9837.7 м2, Склад (ном. объекта: 8259) - Фото 5
    МО, Раменское, ул Трудовая, 9837.7 м2, Склад (ном. объекта: 8259) - Фото 6
    МО, Раменское, ул Трудовая, 9837.7 м2, Склад (ном. объекта: 8259) - Фото 7
    МО, Раменское, ул Трудовая, 9837.7 м2, Склад (ном. объекта: 8259) - Фото 8
    общая площадь 9837.7м², полезная площадь 9837.7м²

    Продается производственно-складской комплекс площадью 9837 масположенный на участке пром назначения 1.82 га в собственности. Электрическая мощность 1200 квт(две тп), центральная вода и канализация, отопление-газ (1000квт) + резервный дизельный котел(600квт)....
    • 9 837.7 м²
    1 680 279 161 Р
    Агент
    +7 (968) Показать номер
    Агентство
    Телус
    Посмотреть контакты
    МО, Красногорк го, Пятницкое шоссе, 9005 м2, Склад Light Industrial ... - Фото 1
    МО, Красногорк го, Пятницкое шоссе, 9005 м2, Склад Light Industrial ... - Фото 2
    МО, Красногорк го, Пятницкое шоссе, 9005 м2, Склад Light Industrial ... - Фото 3
    МО, Красногорк го, Пятницкое шоссе, 9005 м2, Склад Light Industrial ... - Фото 4
    МО, Красногорк го, Пятницкое шоссе, 9005 м2, Склад Light Industrial ... - Фото 5
    МО, Красногорк го, Пятницкое шоссе, 9005 м2, Склад Light Industrial ... - Фото 6
    МО, Красногорк го, Пятницкое шоссе, 9005 м2, Склад Light Industrial ... - Фото 7
    МО, Красногорк го, Пятницкое шоссе, 9005 м2, Склад Light Industrial ... - Фото 8
    МО, Красногорк го, Пятницкое шоссе, 9005 м2, Склад Light Industrial ... - Фото 9
    МО, Красногорк го, Пятницкое шоссе, 9005 м2, Склад Light Industrial ... - Фото 10
    МО, Красногорк го, Пятницкое шоссе, 9005 м2, Склад Light Industrial ... - Фото 11
    МО, Красногорк го, Пятницкое шоссе, 9005 м2, Склад Light Industrial ... - Фото 12
    МО, Красногорк го, Пятницкое шоссе, 9005 м2, Склад Light Industrial ... - Фото 13
    МО, Красногорк го, Пятницкое шоссе, 9005 м2, Склад Light Industrial ... - Фото 14
    МО, Красногорк го, Пятницкое шоссе, 9005 м2, Склад Light Industrial ... - Фото 15
    МО, Красногорк го, Пятницкое шоссе, 9005 м2, Склад Light Industrial ... - Фото 16
    МО, Красногорк го, Пятницкое шоссе, 9005 м2, Склад Light Industrial ... - Фото 17
    МО, Красногорк го, Пятницкое шоссе, 9005 м2, Склад Light Industrial ... - Фото 18
    МО, Красногорк го, Пятницкое шоссе, 9005 м2, Склад Light Industrial ... - Фото 19
    МО, Красногорк го, Пятницкое шоссе, 9005 м2, Склад Light Industrial ... - Фото 20
    общая площадь 9005.4м², полезная площадь 9005.4м²

    Складской комплекс класса «А» общая площадью 9005 м2. Складская площадь 6883 м2, офисная часть 2122 м2. Комплекс расположен на земельном участке 1,5 га. ВРИ участка: для размещения офисно-складского центра. Год постройки 2024. Объект представляет...
    • 9 005.4 м²
    1 550 000 000 Р
    Агент
    +7 (965) Показать номер
    Агентство
    Телус
    Посмотреть контакты
    МО, Реутов, Фабричная, 23429 м2, Производственно-складской комплекс ... - Фото 1
    МО, Реутов, Фабричная, 23429 м2, Производственно-складской комплекс ... - Фото 2
    МО, Реутов, Фабричная, 23429 м2, Производственно-складской комплекс ... - Фото 3
    МО, Реутов, Фабричная, 23429 м2, Производственно-складской комплекс ... - Фото 4
    МО, Реутов, Фабричная, 23429 м2, Производственно-складской комплекс ... - Фото 5
    МО, Реутов, Фабричная, 23429 м2, Производственно-складской комплекс ... - Фото 6
    МО, Реутов, Фабричная, 23429 м2, Производственно-складской комплекс ... - Фото 7
    МО, Реутов, Фабричная, 23429 м2, Производственно-складской комплекс ... - Фото 8
    общая площадь 23429м², полезная площадь 23429м²

    Складской комплекс площадью 23429 м2. Производственно-складской комплекс состоит из зданий: 4882 м2 и офисная часть 2138 м2. Высота потолков от 6 до 9 метров. Система пожарной сигнализации. Инженерные центральные коммуникации. Электрическая мощность 630...
    • 23 429 м²
    1 500 000 000 Р
    Агент
    +7 (905) Показать номер
    Агентство
    Телус
    Посмотреть контакты

    Не нашли подходящего объявления?

    Оставьте заявку, и наши риэлторы подберут склад в районе Солнечногорского района

    (0)