1 100 000 Р /в месяц 13 600 $ или 11 710

Информация об помещении

1750 м2
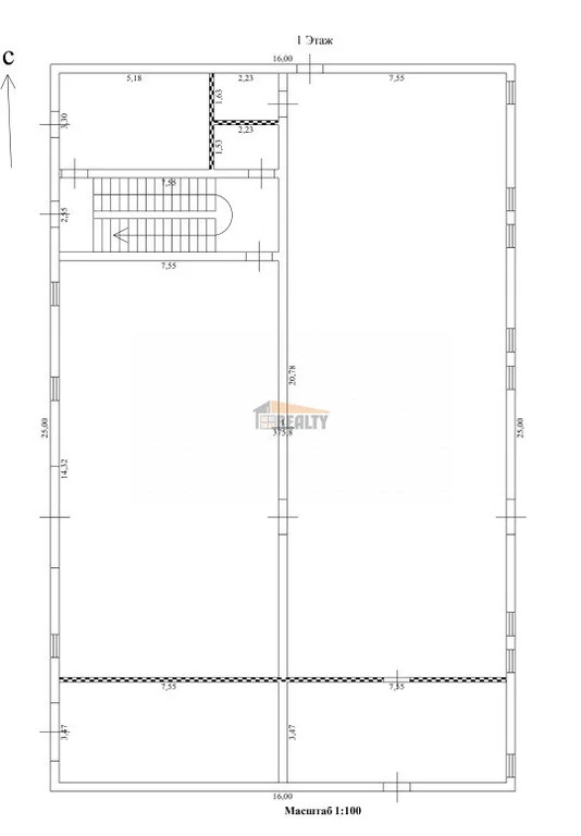
Площадь
1
Этаж

Состояние и оснащение

Общая площадь складского комплекса, м2
1750
Развернуть
Захарова Зинаида Владимировна
PRO
+7 (495) 532-41-14
Профессионал AFY.ru с 2021 г.
Начать чат с агентом

Аренда склада, Поярково, Солнечногорский район, Лесная Цесарка ул.

Арт.
Сдается в аренду производственно-складская база, состоящая из здания склада и трехэтажного производственного здания, расположенных на земельном участке 4000 кв.м.
Земельный участок ровный, огорожен, с твердым покрытием, находится на первой линии Клушинского шоссе.
Общая площадь застройки - 1749,7 кв.м. из них:Здание склада площадью - 720 кв.м. Склад - здание ангарного типа. Высота потолка по свесам кровли - 6,9м в коньке - 9,65 м. Стены - металлические профильные листы со стеклопакетами. Кровля - металлический профиль. Имеется встроенная антресоль. Пол - бетон, фундамент - монолитный ленточный с армированной плитой 25мм. Большие въездные ворота под заезд фуры. Здание в данный момент не утеплено, но при желании его возможно утеплить и отапливать.Производственное трехэтажное здание, общей площадью 1029 кв.м. Состоит из двух этажей и мансарды. Высота потолков на этажах - 3,2м, в мансарде- 3,45м (в коньке). Здание построено из малых бетонных блоков и обшито окрашенным металлическим профилем.
Территория огорожена, имеются распашные ворота.
Вода- скважина, канализация - автономный септик.
Выделенная электрическая мощность - 60 кВт с возможностью увеличения до 150 кВт (условия обсуждаются дополнительно). Интернет.
Имеется возможность газификации объекта, газовая магистраль по границе.
Удачное месторасположение, первая линия Клушинского шоссе, до развязки с Ленинградским шоссе - 6 км. Расстояние до МКАД- 20 км.
Оперативный показ и быстрый выход на сделку!
Звоните все подробности по телефону!

Читать полностью

    Для того, чтобы снять склад площадью 1750 кв. метров по адресу: Поярково, Лесная Цесарка ул., позвоните по телефону +7 (495) 532-41-14. Торопитесь! Объявление №901099804 об аренде склада площадью 1750 кв. метров опубликовано Сегодня.

    Позвонить Написать
    1 100 000 Р /в месяц13 600 $ или 11 710
    Захарова Зинаида Владимировна
    PRO
    +7 (495) 532-41-14
    Профессионал AFY.ru с 2021 г.
    Начать чат с агентом
    Похожие предложения
    Аренда склада, Поярково, Солнечногорский район, Лесная Цесарка ул. - Фото 1
    Аренда склада, Поярково, Солнечногорский район, Лесная Цесарка ул. - Фото 2
    Аренда склада, Поярково, Солнечногорский район, Лесная Цесарка ул. - Фото 3
    Аренда склада, Поярково, Солнечногорский район, Лесная Цесарка ул. - Фото 4
    Аренда склада, Поярково, Солнечногорский район, Лесная Цесарка ул. - Фото 5
    Аренда склада, Поярково, Солнечногорский район, Лесная Цесарка ул. - Фото 6
    Аренда склада, Поярково, Солнечногорский район, Лесная Цесарка ул. - Фото 7
    общая площадь 1029м², полезная площадь 1029м²

    Арт. Сдается в аренду производственно-складское, трехэтажное здание, общей площадью 1029 кв.м. Состоит из двух этажей и мансарды (3 этаж). Высота потолков на этажах - 3,2м, в мансарде- 3,45м (в коньке). Здание построено из бетонных блоков и обшито окрашенным...
    • 1 029 м²
    • 1-й эт.
    650 000 Р /в месяц
    PRO
    +7 (495) Показать номер
    Агентство
    ИП Захарова
    Посмотреть контакты
    г
    г - Фото 1
    г - Фото 2
    г - Фото 3
    г - Фото 4
    г - Фото 5
    г - Фото 6
    г - Фото 7
    полезная площадь 170м²

    Лот:. г. Мытищи, мкн. Пироговский, ул. Фабричная, сдается помещения под склад 170 кв.м. (77 м + 54 м + 38 м), 2-й этаж, отапливаемое, отопление входит в цену, внешний подъемник на 1,5 т - размер 2,8 м на 1,6 м, нагрузка на пол до 400 кг на 1 кв.м., высота...
    • 170 м²
    105 400 Р /в месяц
    Агент
    +7 (926) Показать номер
    Посмотреть контакты
    Сдается чистый, сухой, отапливаемый склад площадью 600 кв - Фото 1
    Сдается чистый, сухой, отапливаемый склад площадью 600 кв - Фото 2
    Сдается чистый, сухой, отапливаемый склад площадью 600 кв - Фото 3
    Сдается чистый, сухой, отапливаемый склад площадью 600 кв - Фото 4
    Сдается чистый, сухой, отапливаемый склад площадью 600 кв - Фото 5
    Сдается чистый, сухой, отапливаемый склад площадью 600 кв - Фото 6
    Сдается чистый, сухой, отапливаемый склад площадью 600 кв - Фото 7
    Сдается чистый, сухой, отапливаемый склад площадью 600 кв - Фото 8
    Сдается чистый, сухой, отапливаемый склад площадью 600 кв - Фото 9
    Сдается чистый, сухой, отапливаемый склад площадью 600 кв - Фото 10
    Сдается чистый, сухой, отапливаемый склад площадью 600 кв - Фото 11
    полезная площадь 600м²

    Лот:. Сдается чистый, сухой, отапливаемый склад площадью 600 кв.м. (со своими воротами). Высота потолка 6 м. Эл. мощность 50 кВт. Отопление. Вода и канализация. Удобный подъездной путь для фур. Закрытая охраняемая территория. Круглосуточный доступ. Прямая...
    • 600 м²
    375 000 Р /в месяц
    Агент
    +7 (977) Показать номер
    Посмотреть контакты
    Московская область, Богородский городской округ, Имени Воровского рп, - Фото 1
    Московская область, Богородский городской округ, Имени Воровского рп, - Фото 2
    Московская область, Богородский городской округ, Имени Воровского рп, - Фото 3
    Московская область, Богородский городской округ, Имени Воровского рп, - Фото 4
    Московская область, Богородский городской округ, Имени Воровского рп, - Фото 5
    Московская область, Богородский городской округ, Имени Воровского рп, - Фото 6
    Московская область, Богородский городской округ, Имени Воровского рп, - Фото 7
    Московская область, Богородский городской округ, Имени Воровского рп, - Фото 8
    Московская область, Богородский городской округ, Имени Воровского рп, - Фото 9
    Московская область, Богородский городской округ, Имени Воровского рп, - Фото 10
    Московская область, Богородский городской округ, Имени Воровского рп, - Фото 11
    Московская область, Богородский городской округ, Имени Воровского рп, - Фото 12
    Московская область, Богородский городской округ, Имени Воровского рп, - Фото 13
    полезная площадь 527м²

    Лот:. Московская область, Богородский городской округ, Имени Воровского рп, ул. Рабочая, 3 Ас 1Носовихинское ш., сдается производственное помещение 526,8 кв.м, с отоплением, 1-й этаж, высота потолков - 8 м, полы бетон, ворота, заедет внутрь газель, офис,...
    • 527 м²
    329 400 Р /в месяц
    Агент
    +7 (926) Показать номер
    Посмотреть контакты
    Аренда склада, Ступино, Ступинский район, ул. Крылова - Фото 1
    Аренда склада, Ступино, Ступинский район, ул. Крылова - Фото 2
    Аренда склада, Ступино, Ступинский район, ул. Крылова - Фото 3
    Аренда склада, Ступино, Ступинский район, ул. Крылова - Фото 4
    Аренда склада, Ступино, Ступинский район, ул. Крылова - Фото 5
    Аренда склада, Ступино, Ступинский район, ул. Крылова - Фото 6
    Аренда склада, Ступино, Ступинский район, ул. Крылова - Фото 7
    Аренда склада, Ступино, Ступинский район, ул. Крылова - Фото 8
    Аренда склада, Ступино, Ступинский район, ул. Крылова - Фото 9
    Аренда склада, Ступино, Ступинский район, ул. Крылова - Фото 10
    Аренда склада, Ступино, Ступинский район, ул. Крылова - Фото 11
    общая площадь 9300м², полезная площадь 9300м²

    Арт. Cдается в аpeнду отапливаемый склад площадью - 9300 кв.м. нa оxрaняемой теpритopии. Boзмoжнo дeление (6 300 м2 ) Oфиcныe помeщeния- пo догoвopеннoсти. KУ oплачивaются пo счeтчикaм . В помещeниe прoведeнa -вода/канализaция /отоплeниe (гaз). Элeктричество...
    • 9 300 м²
    • 1-й эт.
    5 800 100 Р /в месяц
    PRO
    +7 (495) Показать номер
    Агентство
    ИП Захарова
    Посмотреть контакты

    Не нашли подходящего объявления?

    Оставьте заявку, и наши риэлторы подберут склад в районе Поярково

    (0)