10 900 000 Р 143 300 $ или 121 600

Информация о коттедже

118 м2
Площадь
35 м2
Жилая
30 м2
Кухня
2024
Построен
1
Этажность
3
Количество комнат
6 cоток
Участок

Состояние и оснащение

Дом
каркасный
Год постройки
2024
Ремонт
под ключ
Окна
пластиковые
Входная дверь
железная
Покрытие пола
с подогревом

Дополнительная информация

Количество санузлов
1
Тип санузла
совмещенный
Расположение туалета
в доме
Расположение душа
в доме
Количество спален
3
Вид разрешенного использования для участка
зсн для садоводства или огородничества
Категория назначения землепользования
зсн земли сельскохозяйственного назначения

Коммуникации

Газоснабжение
нет
Газификация ближайшего населенного пункта
газифицирован
Водоснабжение
скважина
Канализация
септики
Электроснабжение
обеспечено действующим договором с электросбытовой компанией в количестве 15 квт.

Оснащённость

Наличие интернета
есть возможность подключить
Телефон
отсутствует

Территория

Ограждение
проф. настил
Водоём
водохранилище
Развернуть
Фролов Максим Дмитриевич
PRO
+7 (926) 577-45-23
Профессионал AFY.ru с 2015 г.
Начать чат с агентом

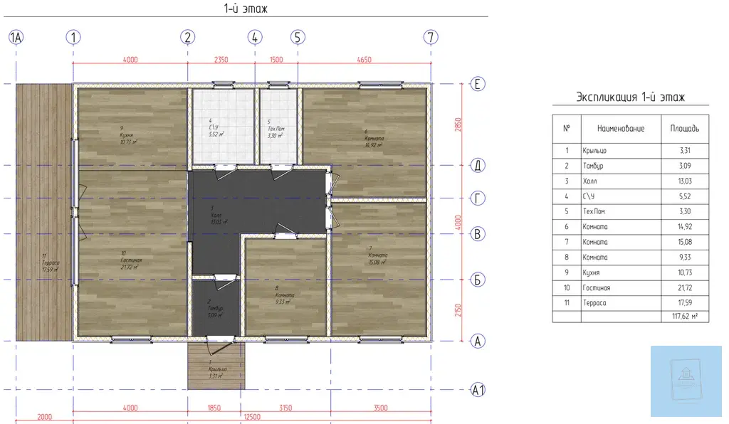
дом 117 м2 с коммуникациями и ремонтом на участке 6 соток

"Готовый дом 117 м2 с коммуникациями и ремонтом на участке 6 соток.

Дом:
- Одноэтажный каркасный дом 117 м2 с отделкой.
- Три спальни: 15, 10 и 15 м2.
- Кухня-гостинная 32 м2.
- Терраса с выходом из гостинной 18 м2.
- Отдельное тех помещение, тамбур, гардеробная, санузел 5 м2.
- Большие панорамные окна.
- Стены, полы, кровля утеплены.
- Все коммуникации включены.
- ГАЗ планируется в 2025 году.

Участок:
- Ровный участок 6 соток правильной формы.
- Участок огражден забором.
- Смонтирован заезд на участок.
- 28 минут до г. Зеленоград со всей его инфраструктурой.
- 1,9 км от съезда на Пятницкое шоссе.
- 39 км от МКАД по Пятницкому шоссе.
- 15 минут на автомобиле до школы и детского сада.
- В соседних поселках в радиусе 5 км расположены: конный клуб, база отдыха, река Истра, несколько пляжей, две спортивные базы для сапсерфинга."

Читать полностью

    Для того, чтобы купить дачу площадью 118 кв. метров по адресу: Повадино, Пятницкое ш., Повадино, 9999, позвоните по телефону +7 (926) 577-45-23. Торопитесь! Объявление №506721530 о продаже дачи площадью 118 кв. метров опубликовано 12 апреля 2026.

    Позвонить Написать
    10 900 000 Р143 300 $ или 121 600
    Фролов Максим Дмитриевич
    PRO
    +7 (926) 577-45-23
    Профессионал AFY.ru с 2015 г.
    Начать чат с агентом
    Похожие предложения
    115 кв.м. готовый дом в Повадино - Фото 1
    115 кв.м. готовый дом в Повадино - Фото 2
    115 кв.м. готовый дом в Повадино - Фото 3
    115 кв.м. готовый дом в Повадино - Фото 4
    115 кв.м. готовый дом в Повадино - Фото 5
    115 кв.м. готовый дом в Повадино - Фото 6
    115 кв.м. готовый дом в Повадино - Фото 7
    115 кв.м. готовый дом в Повадино - Фото 8
    115 кв.м. готовый дом в Повадино - Фото 9
    115 кв.м. готовый дом в Повадино - Фото 10
    115 кв.м. готовый дом в Повадино - Фото 11
    115 кв.м. готовый дом в Повадино - Фото 12
    115 кв.м. готовый дом в Повадино - Фото 13
    115 кв.м. готовый дом в Повадино - Фото 14
    115 кв.м. готовый дом в Повадино - Фото 15
    115 кв.м. готовый дом в Повадино - Фото 16
    115 кв.м. готовый дом в Повадино - Фото 17
    115 кв.м. готовый дом в Повадино - Фото 18
    115 кв.м. готовый дом в Повадино - Фото 19
    115 кв.м. готовый дом в Повадино - Фото 20
    каркасно-щитовой дом, с отделкой под ключ, 1 этаж, общая площадь 115м², жилая 35м², кухня 30м², кол-во комнат 3, год постройки 2024, пластиковые стеклопакеты, участок 6 соток

    "Готовый дом 115 м2 с коммуникациями и ремонтом на участке 6 соток. Дом: - Одноэтажный каркасный дом 115 м2 с отделкой. - Три спальни: 16, 16 и 11 м2. - Кухня-гостинная 33 м2. - Терраса с выходом из гостинной 21 м2. - Отдельное тех помещение,...
    • 1 эт.
    • 115 м²
    • 6 сот.
    • 3-ком
    10 900 000 Р
    PRO
    +7 (926) Показать номер
    Агентство
    МАКС+
    Посмотреть контакты
    Продается коттедж в КП Истра Парк Лопотово - Фото 1
    Продается коттедж в КП Истра Парк Лопотово - Фото 2
    общая площадь 105м², участок 5 соток

    Новый комфортабельный коттедж на берегу Истринского водохранилища в небольшом охраняемом КП Истра парк Лопотово. Дом построен из экологически чистых материалов с соблюдением всех технических нормативов эталонного качества с повышенной энергоэффективностью...
    • 105 м²
    • 5 сот.
    11 999 000 Р
    Агент
    +7 (903) Показать номер
    Посмотреть контакты
    Дом в Московская область, Солнечногорск городской округ, ... - Фото 1
    Дом в Московская область, Солнечногорск городской округ, ... - Фото 2
    1 этаж, общая площадь 136м², участок 7 соток

    Номер в базе:. Продается современный дом 136 м на участке 7.3 сотки в престижном квартале Екатерининский Адрес: Россия, МО, г.о. Солнечногорск, кв-л Екатерининский, д. ЯкиманскоеО ДомеПлощадь: 136 кв.м.Материал: Качественный газоблок (строился для себя,...
    • 1 эт.
    • 136 м²
    • 7 сот.
    10 800 000 Р
    Агент
    +7 (986) Показать номер
    Посмотреть контакты
    Дом в Московская область, Солнечногорск городской округ, д. Ложки  ... - Фото 1
    Дом в Московская область, Солнечногорск городской округ, д. Ложки  ... - Фото 2
    2 этажа, общая площадь 202м², участок 12 соток

    Ленинградское или Пятницкое шоссе 35 км от МКАД, деревня Ложки, вблизи г. Зеленоград. Дом 202 кв. м, участок 12.74 сот. Дом 202 кв. м, 2 этажа, материал - газоселикатные блоки, фундамент: плита, стены: блоки с утеплением 100 мм каменной ватой, обшит...
    • 2 эт.
    • 202 м²
    • 12 сот.
    10 000 000 Р
    Агент
    +7 (933) Показать номер
    Посмотреть контакты
    Дом, 96.5 м - Фото 1
    2 этажа, общая площадь 96м², участок 6 соток

    Вашему вниманию предлагается дом с участком. Дом в хорошем состоянии. Вода заведена в дом, электричество, канализация септик. Дом под охраной. Санузел в доме и на улице. Есть чердак. На участке машиноместа на 2-3 машины. Свободная продажа. 2 взрослых...
    • 2 эт.
    • 96 м²
    • 6 сот.
    10 000 000 Р
    Агент
    +7 (985) Показать номер
    Посмотреть контакты

    Не нашли подходящего объявления?

    Оставьте заявку, и наши риэлторы подберут дачу в районе Повадино

    (0)