13 500 000 Р 166 700 $ или 142 700

Информация о коттедже

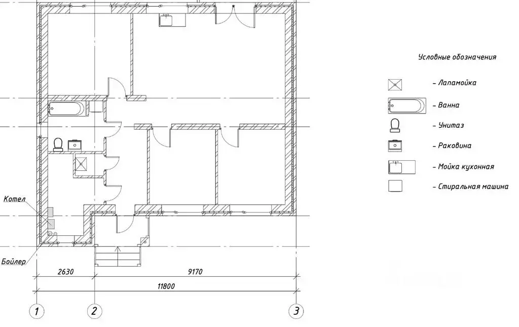
121 м2
Площадь
30 м2
Кухня
2025
Построен
1
Этажность
4
Количество комнат
6 cоток
Участок

Состояние и оснащение

Дом
из газобетонного блока
Год постройки
2025
Ремонт
чистовая отделка
Окна
пластиковые
Входная дверь
железная
Покрытие пола
с подогревом
Мебель
нет

Дополнительная информация

Количество санузлов
2
Тип санузла
совмещенный
Расположение туалета
в доме
Расположение душа
в доме
Количество спален
3
Дом продаётся вместе с участком
есть
Категория назначения землепользования
знп земли населенных пунктов
Участок является частью
коттеджного поселка
Ближайший населённый пункт
солнечногрск
Ближайшая железнодорожная станция
подсолнечная

Коммуникации

Газоснабжение
имеется
Газификация ближайшего населенного пункта
газифицирован
Водоснабжение
скважина
Канализация
есть
Электроснабжение
обеспечено действующим договором с электросбытовой компанией в количестве 15 квт.

Оснащённость

Плита
электрическая
Телевизор
есть

Территория

Ограждение
проф. настил
Форма участка
правильная
Рельеф местности
ровный
Водоём
река
Развернуть

Продажа дома 121.0м Московская область, Солнечногорск городской округ, ...

Старт продаж - на первые 5 готовых домов супер условия!

Одно этажный дом 121кв. м на участке 6 соток в коттеджном поселке Судниково Лайф

Планировка: 3 спальни, кухня гостиная 35кв.м, 2 санузла, котельная,

Высота потолков 3 метра.

Дом продается с чистовой отделкой!

Участок будет огорожен забором - штакетник!

коммуникации: электричество, вода - скважина, канализация - станция биологический очистки, газ

Посёлок Судниково Лайф, расположен в экологичной деревне Судниково (Солнечногорский район), всего 41 км от Москвы.
• Современные технологии строительства: свайно-ростверковый фундамент, утеплённая монолитная плита, стены из газобетона с кирпичной облицовкой.
• Полный набор коммуникаций: электричество, газ, вода (скважина), септик — станция биологической очистки.

Отдых и активная жизнь у воды
• Река Истра с пляжами менее 3 км.
• Большой выбор пляжей, бесплатных и платные пляжи при отелях — с кафе, прокатом лодок, шезлонгами и зонтиками.
• Озеро Сенеж в Солнечногорске — популярный курорт с городским пляжем, пирсом, детской зоной и водными развлечениями.

Для семьи и детей
• 5-10минут на авто — детский сад и несколько школ.
• В Солнечногорске — спортивный комплекс Олимп: бассейны, фитнес, единоборства, секции для детей.

Транспортная доступность
• Удобный выезд на М-11 и альтернативные шоссе (Ленинградское, Пятницкое, Волоколамское, Новорижское).
• Станция Подсолнечная (Солнечногорск) — всего 10 км: на комфортабельной электричке до Ленинградского вокзала ~45 минут.
• Автобусная остановка — всего в 100 м от посёлка.

Читать полностью

    Для того, чтобы купить 1-этажный коттедж по адресу: Похлебайки, Ленинградское ш., позвоните по телефону +7 (925) 085-01-85. Торопитесь! Объявление №506733604 о продаже одноэтажного коттеджа опубликовано 2 дня назад.

    Позвонить Написать
    Похожие предложения
    Дом в Московская область, Солнечногорск городской округ, д. Похлебайки ... - Фото 1
    Дом в Московская область, Солнечногорск городской округ, д. Похлебайки ... - Фото 2
    1 этаж, общая площадь 121м², участок 6 соток

    Старт продаж - на первые 5 готовых домов супер условия Одно этажный дом 121кв.м на участке 6 соток в коттеджном поселке Судниково ЛайфПланировка: 3 спальни, кухня гостиная 35кв.м, 2 санузла, котельная, Высота потолков 3 метра.Дом продается с чистовой...
    • 1 эт.
    • 121 м²
    • 6 сот.
    13 500 000 Р
    Агент
    +7 (911) Показать номер
    Посмотреть контакты
    Дом в Московская область, городской округ Солнечногорск, деревня ... - Фото 1
    Дом в Московская область, городской округ Солнечногорск, деревня ... - Фото 2
    1 этаж, общая площадь 121м², участок 6 соток

    Старт продаж - на первые 5 готовых домов супер условия Одно этажный дом 121кв. м на участке 6 соток в коттеджном поселке Судниково ЛайфПланировка: 3 спальни, кухня гостиная 35кв.м, 2 санузла, котельная, Высота потолков 3 метра.Дом продается с чистовой...
    • 1 эт.
    • 121 м²
    • 6 сот.
    13 500 000 Р
    Агент
    +7 (926) Показать номер
    Посмотреть контакты
    Дом, 121 м - Фото 1
    1 этаж, общая площадь 121м², участок 6 соток

    Открытие продаж - на первые 5 готовых домов супер условия Одно этажный дом 121кв.м на участке 6 соток в коттеджном поселке Судниково ЛайфПланировка: 3 спальни, кухня гостиная 35кв.м, 2 санузла, котельная, Высота потолков 3 метра.Дом продается с чистовой...
    • 1 эт.
    • 121 м²
    • 6 сот.
    13 500 000 Р
    Агент
    +7 (911) Показать номер
    Посмотреть контакты
    Продается дом в д. Гончары - Фото 1
    Продается дом в д. Гончары - Фото 2
    общая площадь 205м², участок 12 соток

    Арт. 550482 Уютный трехэтажный газифицированный жилой дом (205, 2 кв.м) в 15 минутах от Зеленограда в в Гончарах. Свободная продажа.Прописка, возможна ипотека. Мебель и техника остается покупателю. На территории участка расположена баня с открытой террасой,...
    • 205 м²
    • 12 сот.
    14 500 000 Р
    Агент
    +7 (499) Показать номер
    Посмотреть контакты
    Продается коттедж в КП Эко-Вилладж - Фото 1
    Продается коттедж в КП Эко-Вилладж - Фото 2
    общая площадь 119м², участок 11 соток

    Арт. 547053 Живописный круглогочный дом с выходом к пейзажному озеру В курортной локации Подмосковья, в 25 мин от Зеленограда в КП Эко-Вилладж продается полностью готовый к проживанию теплый комфортный деревянный двухэтажный жилой дом площадью 119кв.м...
    • 119 м²
    • 11 сот.
    14 000 000 Р
    Агент
    +7 (499) Показать номер
    Посмотреть контакты

    Не нашли подходящего объявления?

    Оставьте заявку, и наши риэлторы подберут купить дом в районе Похлебайки

    (0)