55 000 000 Р 706 600 $ или 605 200

Информация об помещении

1
Этаж

Состояние и оснащение

Количество этажей
12
Развернуть
Агент
+7 (938) 656-74-88
Начать чат с агентом

Помещение свободного назначения в Московская область, Солнечногорск ...

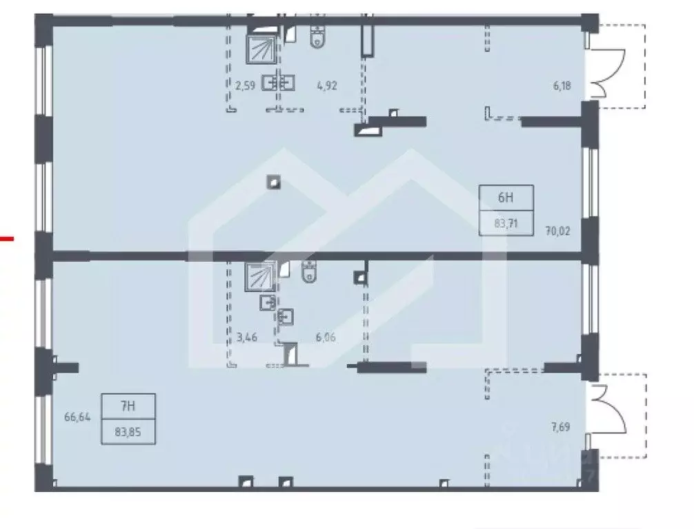
1099688. Предлагаем помещение свободного назначения с сетевым арендатором Дикси в ЖК Солнечная Аллея , площадью 533.8 кв. м, расположенное на первом этаже 12-этажного жилого дома. Без комиссии для покупателя.Преимущества объекта:-первая линия ул. Куйбышева;-ЖК состоит из 2-х 12-этажных корпусов, рассчитанных на 300 квартир;-удобная транспортная доступность: 800 м до Льяловского шоссе, 4.5 км до Ленинградского шоссе;-плотный жилой массив;-мало коммерческих помещений, что гарантирует высокий спрос;-высокий автомобильный и пешеходный трафик;-отлично просматривается, находится в легком доступе для потенциальных клиентов;-гибкая планировка, позволяющая адаптировать пространство под различные нужды;-подведены все городские коммуникации;-возможность размещения вывески;-наземная парковка;-рядом остановка общественного транспорта.Технические параметры объекта:-4 отдельные входные группы.-электрическая мощность: 80 кВт.Информация об арендаторе: -арендатор: Дикси, ДДА.-доход:/мес.Свяжитесь с нами для получения дополнительной информации

Читать полностью
    Позвонить Написать
    55 000 000 Р706 600 $ или 605 200
    Агент
    +7 (938) 656-74-88
    Начать чат с агентом
    Похожие предложения
    Помещение свободного назначения в Московская область, Солнечногорск ... - Фото 1
    Помещение свободного назначения в Московская область, Солнечногорск ... - Фото 2
    1099688. Предлагаем помещение свободного назначения с сетевым арендатором Дикси в ЖК Солнечная Аллея , площадью 533.8 кв. м, расположенное на первом этаже 12-этажного жилого дома. Без комиссии для покупателя.Преимущества объекта:-первая линия ул. Куйбышева;-ЖК...
    • 1/12 эт.
    55 000 000 Р
    Агент
    +7 (938) Показать номер
    Посмотреть контакты
    Помещение свободного назначения в Московская область, Солнечногорск ... - Фото 1
    Помещение свободного назначения в Московская область, Солнечногорск ... - Фото 2
    1099688. Предлагаем помещение свободного назначения с сетевым арендатором Дикси в ЖК Солнечная Аллея , площадью 533.8 кв. м, расположенное на первом этаже 12-этажного жилого дома. Без комиссии для покупателя.Преимущества объекта:-первая линия ул. Куйбышева;-ЖК...
    • 1/12 эт.
    55 000 000 Р
    Агент
    +7 (938) Показать номер
    Посмотреть контакты
    Помещение свободного назначения в Московская область, Химки ... - Фото 1
    Помещение свободного назначения в Московская область, Химки ... - Фото 2
    1108582. Предлагаем помещение свободного назначения с сетевым арендатором Улыбка Радуги , площадью 167 кв. м., расположенное на первом этаже жилого дома в ЖК Квартал Ивакино . Без комиссии для покупателя.Преимущества объекта:-первая линия, помещение...
    • 1/17 эт.
    55 000 000 Р
    Агент
    +7 (938) Показать номер
    Посмотреть контакты
    Помещение свободного назначения в Московская область, Звенигород ... - Фото 1
    Помещение свободного назначения в Московская область, Звенигород ... - Фото 2
    1062235. Предлагаем помещение свободного назначения с сетевым арендатором супермаркет Магнит , площадью 325.3 кв. м, расположенное на первом этаже 9-этажного жилого дома. Без комиссии для покупателя.Преимущества объекта:-первая линия;-6 минут на автомобиле...
    • 1/9 эт.
    55 900 000 Р
    Агент
    +7 (938) Показать номер
    Посмотреть контакты
    Помещение свободного назначения в Московская область, Истра ... - Фото 1
    Помещение свободного назначения в Московская область, Истра ... - Фото 2
    Продается двухэтажное капитальное кирпичное здание площадью 1300 квадратных метров, а также подвальное помещение (бомбоубежище) площадью 2000 квадратных метров на отметке -6 метров.Общая площадь объекта составляет 3340 квадратных метров на участке площадью...
    • 2/2 эт.
    55 000 000 Р
    Агент
    +7 (984) Показать номер
    Посмотреть контакты

    Не нашли подходящего объявления?

    Оставьте заявку, и наши риэлторы подберут псн в районе Менделеево

    (0)