Реализация объекта недвижимости приостановлена

Информация об помещении

1
Этаж

Состояние и оснащение

Количество этажей
26
Развернуть

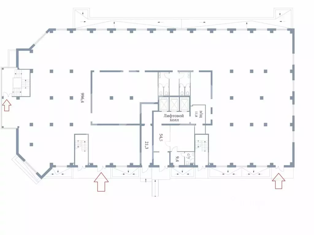
Торговая площадь в Московская область, Солнечногорск городской округ, ...

636940 . Предлагаем к приобретению торговое помещение формата Street Retail, площадью 996 кв. м., расположенное на первом этаже жилого дома в ЖК Первый Зеленоградский . Без комиссии для покупателя.Преимущества объекта: -комплекс состоит из 16 корпусов переменной этажности (от 17 до 25 этажей);-транспортная доступность от станции МЦД-3 Зеленоград-Крюково (15 минут на транспорте);-выезд на Пятницкое шоссе в 500 м;-отлично просматривается, находится в легком доступе для потенциальных клиентов;-развитая инфраструктура в окружении;-гибкая планировка, позволяющая адаптировать пространство под различные нужды;-витринное остекление;-место для вывески;-зона разгрузки/погрузки;-рядом парковка и остановка общественного транспорта.Технические параметры объекта:-отдельный вход с улицы;-электрическая мощность: 80 кВт;-высота потолков: 3 м.Свяжитесь с нами для получения дополнительной информации

Читать полностью

    Реализация объекта недвижимости приостановлена

    Не нашли подходящего объявления?

    Оставьте заявку, и наши риэлторы подберут торговое помещение в районе Голубого

    (0)