300 000 Р 3 870 $ или 3 280

Информация об помещении

1
Этаж

Состояние и оснащение

Количество этажей
9
Развернуть
Агент
+7 (939) 015-50-27
Начать чат с агентом

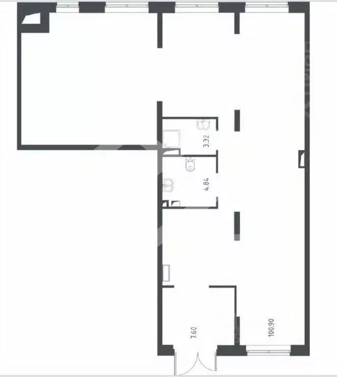
Помещение свободного назначения в Московская область, Солнечногорск ...

Сдается помещение свободного назначения 317 кв.м. в центре г. Солнечногорска на 1-ом этаже 9-ти этажного кирпичного дома. Панорамные окна, два входа: с улицы и со двора. Коммуникации центральные, парковка. Активный автомобильный и пешеходный трафик. идеально для размещения медицинского центра, кафе, магазина, банка, фитнесс - центра, танцевальной, студии и пр. Арендные каникулы обговариваются. Показ в удобное для Вас время. Звоните

Читать полностью
    Позвонить Написать
    300 000 Р3 870 $ или 3 280
    Агент
    +7 (939) 015-50-27
    Начать чат с агентом
    Похожие предложения
    Помещение свободного назначения в Московская область, Химки ... - Фото 1
    Помещение свободного назначения в Московская область, Химки ... - Фото 2
    ==ЛОТ 222499 == ОТ СОБСТВЕННИКА, БЕЗ КОМИССИИ. В торговом центра Лига сдаются места под острова от 10 до 12 м кв. Трафик с утра до ночи нон-стоп, соседи известные бренды. Большой жилой массив. Ставка зависит от площади. Направления торговли приветствуются...
    • 1/2 эт.
    300 000 Р
    Агент
    +7 (923) Показать номер
    Посмотреть контакты
    Помещение свободного назначения в Московская область, Чехов ... - Фото 1
    Помещение свободного назначения в Московская область, Чехов ... - Фото 2
    ==ЛОТ 221145 == ОТ СОБСТВЕННИКА, БЕЗ КОМИССИИ. Предлагается в аренду просторное складское помещение площадью 1500 м?, расположенное в муниципальном округе Чехов, Московской области. Стоимостьуб/кВм. Помещение идеально подходит как для хранения, так и...
    • 1/1 эт.
    300 000 Р
    Агент
    +7 (923) Показать номер
    Посмотреть контакты
    Помещение свободного назначения в Московская область, Красногорск ... - Фото 1
    Помещение свободного назначения в Московская область, Красногорск ... - Фото 2
    ==ЛОТ 219364 == ОТ СОБСТВЕННИКА, БЕЗ КОМИССИИ. Предлагаем в аренду отличное коммерческое помещение, расположенное по адресу: Московская область, Красногорск, посёлок Нахабино, 1-я Лесопарковая улица, 4А. Помещение общей площадью 418 кв. м находится на...
    • 1/2 эт.
    300 000 Р
    Агент
    +7 (923) Показать номер
    Посмотреть контакты
    Помещение свободного назначения в Московская область, Мытищи городской ... - Фото 1
    Помещение свободного назначения в Московская область, Мытищи городской ... - Фото 2
    Сдается помещение свободного назначения в ЖК Пироговская Ривьера (комфорт класс), по адресу: МО, Мытищи городской округ, Пирогово деревня, ул. Ильинского, 8.к1, расположенное в 12 км от МКАД по Осташковскому шоссе. На данный момент в ЖК живет уже около...
    • 1/9 эт.
    295 000 Р
    Агент
    +7 (915) Показать номер
    Посмотреть контакты
    Помещение свободного назначения в Московская область, Подольск ... - Фото 1
    Помещение свободного назначения в Московская область, Подольск ... - Фото 2
    БЕЗ КОМИССИИ На 1-ом этаже 17-этажного жилого дома сдается в аренду помещение свободного назначения общей площадью 360.9 кв. м, рacположeннoе в caмoм cepдце микрорайонa Kлимовск г. о. Подольск. Находится в густoнacелeнном спальнoм рaйоне с развитой инфраструктурой...
    • 1/17 эт.
    306 850 Р
    Агент
    +7 (985) Показать номер
    Посмотреть контакты

    Не нашли подходящего объявления?

    Оставьте заявку, и наши риэлторы подберут псн в районе Солнечногорска

    (0)