31 500 000 Р 404 700 $ или 347 900

Информация об участке

6 Га
Площадь участка
Развернуть
Гришаева Антонина
PRO
+7 (905) 535-37-17
+7 (495) 994-01-13
Профессионал AFY.ru с 2011 г.
Начать чат с агентом

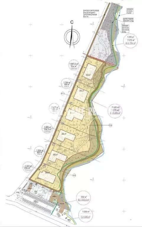
Продажа 6 га в г. Солнечногорск Московской области

Номер объекта: КНП-429-1

Продается земельный участок 6 га на окраине г. Солнечногорск Московской области, для проектирования и строительства комплекса – «Семейный отель».
Вид права – аренда, срок до 2070 г.
Категория - земли сельскохозяйственного назначения
Вид разрешенного использования - для сельскохозяйственного производства
Территориальная зона по ПЗЗ Генерального плана го Солнечногорск – «СХ-3», согласно ГПЗУ возможные виды разрешенного использования (ВРИ) земельного участка:
- код ВРИ 1.3 «Овощеводство» (Осуществление хозяйственной деятельности на сельскохозяйственных угодьях, связанной с производством картофеля, листовых, плодовых, луковичных и бахчевых сельскохозяйственных культур, в том числе с использованием теплиц)
– код ВРИ 1.13 «Рыбоводство» (Осуществление хозяйственной деятельности, связанной с разведением и (или) содержанием, выращиванием объектов рыбоводства (аквакультуры); размещение зданий, сооружений, оборудования, необходимых для осуществления рыбоводства (аквакультуры)
- код ВРИ 1.17 «Питомники» (Выращивание и реализация подроста деревьев и кустарников, используемых в сельском хозяйстве, а также иных сельскохозяйственных культур для получения рассады и семян; размещение сооружений, необходимых для указанных видов сельскохозяйственного производства.
Инженерные сети: ТУ на электричество - 50 кВт. От границы участка на расстоянии 40 м магистральная трасса газопровода среднего давления. Водоснабжение и водоотведение – локальные.
Транспортная доступность: до развязки на скоростную автодорогу (М-11) – 6 км, до Ленинградского шоссе – 9 км, до Пятницкого шоссе – 8 км.

Читать полностью

    Для того, чтобы купить земельный участок площадью 6 соток по адресу: Солнечногорск, позвоните по телефону +7 (905) 535-37-17, +7 (495) 994-01-13. Торопитесь! Объявление №203382819 о продаже земельного участка площадью 6 соток опубликовано 11 января 2026.

    Позвонить Написать
    31 500 000 Р404 700 $ или 347 900
    Гришаева Антонина
    PRO
    +7 (905) 535-37-17
    +7 (495) 994-01-13
    Профессионал AFY.ru с 2011 г.
    Начать чат с агентом
    Похожие предложения
    Продается участок в дп Кратово - Фото 1
    Продается участок в дп Кратово - Фото 2
    участок 30 соток

    Арт.Эксклюзивное предложение: 30 соток в сердце легендарного ДСК Красный Бор (Раменский район, пос. Кратово) Стоимость.Воздух, который лечит. Десятки корабельных сосен, высаженные десятилетия назад, создают микроклимат, сравнимый с курортами Прибалтики....
    • 30 сот.
    32 900 000 Р
    Агент
    +7 (499) Показать номер
    Посмотреть контакты
    Участок ижс в поселке на Ноорижском шоссе 10 км от мкад - Фото 1
    Участок ижс в поселке на Ноорижском шоссе 10 км от мкад - Фото 2
    Участок ижс в поселке на Ноорижском шоссе 10 км от мкад - Фото 3
    Участок ижс в поселке на Ноорижском шоссе 10 км от мкад - Фото 4
    Участок ижс в поселке на Ноорижском шоссе 10 км от мкад - Фото 5
    Участок ижс в поселке на Ноорижском шоссе 10 км от мкад - Фото 6
    Участок ижс в поселке на Ноорижском шоссе 10 км от мкад - Фото 7
    Участок ижс в поселке на Ноорижском шоссе 10 км от мкад - Фото 8
    Участок ижс в поселке на Ноорижском шоссе 10 км от мкад - Фото 9
    Участок ижс в поселке на Ноорижском шоссе 10 км от мкад - Фото 10
    Участок ижс в поселке на Ноорижском шоссе 10 км от мкад - Фото 11
    Участок ижс в поселке на Ноорижском шоссе 10 км от мкад - Фото 12
    Участок ижс в поселке на Ноорижском шоссе 10 км от мкад - Фото 13
    Участок ижс в поселке на Ноорижском шоссе 10 км от мкад - Фото 14
    Участок ижс в поселке на Ноорижском шоссе 10 км от мкад - Фото 15
    Онлайн-показ! участок ровный 12.6 соток, кол-во собственников 1, принадлежит частному лицу, есть возможность прописаться

    лот 04000709. Участок площадью 12,62 сот (возможна продажа соседних и объедение) ЗНП (для ижс). В коттеджной охраняемой застройке. В тихом уютном месте. Рядом протекает река Липка. Отличная развитая инфраструктура в ближайшем окружении. Коммуникации...
    • 12.6 сот.
    • свет
    • вода
    • газ
    31 550 000 Р
    Онлайн показ Доступен онлайн-показ
    PRO
    +7 (903) Показать номер
    Посмотреть контакты
    Участок в посёлок городского типа Кратово, улица Комиссарова, 36 (30 ... - Фото 1
    Участок в посёлок городского типа Кратово, улица Комиссарова, 36 (30 ... - Фото 2
    участок 30 соток

    Арт.Эксклюзивное предложение: 30 соток в сердце легендарного ДСК «Красный Бор (Раменский район, пос. Кратово) Стоимость.Воздух, который лечит. Десятки корабельных сосен, высаженные десятилетия назад, создают микроклимат, сравнимый с курортами Прибалтики....
    • 30 сот.
    32 900 000 Р
    Агент
    +7 (965) Показать номер
    Посмотреть контакты
    Участок в Московская область, Люберцы СНТ Зеленая Зона тер., ул. ... - Фото 1
    Участок в Московская область, Люберцы СНТ Зеленая Зона тер., ул. ... - Фото 2
    участок 16 соток

    Номер в базе: 9137314. Продается участок земли под застройку в г. Люберцы Идеальное место для строительства небольшой гостиницы или особняка. Участок находится в собственности и расположен в Люберцах, фактически являясь частью Москвы с развитой инфраструктурой....
    • 16 сот.
    32 000 000 Р
    Агент
    +7 (981) Показать номер
    Посмотреть контакты
    Участок в Московская область, Апрелевка Наро-Фоминский городской ... - Фото 1
    Участок в Московская область, Апрелевка Наро-Фоминский городской ... - Фото 2
    участок 23 сотки

    Участок правильной формы в окружении вековых елей в стародачном поселке.Огорожен.Ж/д станция Дачная в пешей доступности.Развитая инфраструктура: школы, детский сад, продуктовые магазины, рынок, аптека, поликлиника, фитнес-клубы, каток, кафе, кинотеатр.Грибы...
    • 23 сот.
    31 000 000 Р
    Агент
    +7 (916) Показать номер
    Посмотреть контакты

    Не нашли подходящего объявления?

    Оставьте заявку, и наши риэлторы подберут земельный участок в районе Солнечногорска

    (0)