110 000 000 Р 1 296 600 $ или 1 135 000

Информация об помещении

1
Этаж

Состояние и оснащение

Количество этажей
5
Развернуть
Агент
+7 (938) 656-74-88
Начать чат с агентом

Помещение свободного назначения в Московская область, Солнечногорск ...

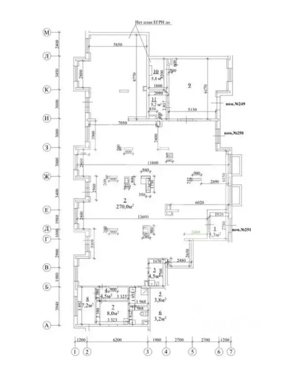
1128289. Предлагаем помещение свободного назначения с якорным арендатором супермаркет Магнит , площадью 430 кв. м., расположенное на первом этаже 5-этажного жилого дома в центре г. Солнечногорск. Без комиссии для покупателя.Преимущества объекта:-первая линия Красной ул.;-10 минут пешком от станции ж/д Подсолнечная;-густонаселённый жилой массив;-сложившееся торговое окружение;-проходное и проездное место с подтверждённой проходимостью и стабильным трафиком;-объект отлично просматривается, находится в лёгком доступе для клиентов;-надежный сетевой арендатор;-открытая планировка;-витринное остекление;-место для вывески;-центральные коммуникации;-зона разгрузки/погрузки;-уличный паркинг;-напротив остановки общественного транспорта.Технические параметры объекта:-2 входные группы;-электрическая мощность: 60 кВт;-высота потолков: 3.2 м.Информация об арендаторе: -арендатор: супермаркет Магнит ;-доход:/мес.Свяжитесь с нами для получения дополнительной информации

Читать полностью
    Позвонить Написать
    110 000 000 Р1 296 600 $ или 1 135 000
    Агент
    +7 (938) 656-74-88
    Начать чат с агентом
    Похожие предложения
    Помещение свободного назначения в Московская область, Люберцы ... - Фото 1
    Помещение свободного назначения в Московская область, Люберцы ... - Фото 2
    905402. Предлагаем помещение свободного назначения с якорным арендатором Дикси, площадью 450 кв. м., расположенное на первом этаже жилого дома в ЖК Красково-Олимпийский , г. Люберцы. Без комиссии для покупателя.Преимущества объекта:-комплекс состоит...
    • 1/18 эт.
    110 000 000 Р
    Агент
    +7 (938) Показать номер
    Посмотреть контакты
    Помещение свободного назначения в Московская область, Красногорск ул. ... - Фото 1
    Помещение свободного назначения в Московская область, Красногорск ул. ... - Фото 2
    904968. Предлагаем помещение свободного назначения с арендатором Самокат в ЖК Молодёжный-3 , площадью 225.5 кв. м, расположенное на первом этаже 25-этажного жилого дома. Без комиссии для покупателя.Преимущества объекта:-первая линия ул. Молодёжная;-шаговая...
    • 1/25 эт.
    101 250 000 Р
    Агент
    +7 (938) Показать номер
    Посмотреть контакты
    Помещение свободного назначения в Московская область, Раменский ... - Фото 1
    Помещение свободного назначения в Московская область, Раменский ... - Фото 2
    994064. Предлагаем отдельно стоящее здание с арендатором Пятёрочка , площадью 607.2 кв. м. Без комиссии для покупателя.Преимущества объекта:-первая линия ул. Школьная;-6 минут на автомобиле от станции МЦД-3 Отдых ;-удобная транспортная доступность:...
    • 1/1 эт.
    100 000 000 Р
    Агент
    +7 (938) Показать номер
    Посмотреть контакты
    Помещение свободного назначения в Московская область, Одинцовский ... - Фото 1
    Помещение свободного назначения в Московская область, Одинцовский ... - Фото 2
    681375. Предлагаем помещение свободного назначения с федеральным сетевым якорным арендатором — супермаркетом Пятёрочка , площадью 353,4 кв. м., расположенное на первом этаже жилого дома в ЖК Равновесие . Без комиссии для покупателя. Преимущества объекта:-первая...
    • 1/5 эт.
    107 000 000 Р
    Агент
    +7 (938) Показать номер
    Посмотреть контакты
    Помещение свободного назначения в Московская область, Королев ... - Фото 1
    Помещение свободного назначения в Московская область, Королев ... - Фото 2
    1079108. Предлагается современный проект формата Лайт индастриал в г. Королёве.Преимущества:Расположен в центральной части города Королёва, рядом с жилыми кварталами и ТЦ Globus.Заезд с Калининградской улицы.Развитая инфраструктура, рядом остановки общественного...
    • 1/2 эт.
    110 050 000 Р
    Агент
    +7 (938) Показать номер
    Посмотреть контакты

    Не нашли подходящего объявления?

    Оставьте заявку, и наши риэлторы подберут псн в районе Солнечногорска

    (0)