Россия, Подмосковье, Солнечногорский район, Солнечногорск, территория Индустриальный парк Есипово, стр17а
Ленинградское ш., 32 км. от МКАД
161 297 655 Р 2 101 500 $ или 1 786 600

Информация об помещении

986.5 м2
Площадь
1
Этаж
a
Класс здания

Состояние и оснащение

Класс здания
a
Количество этажей
2
Развернуть
Агент
Отдел продаж
+7 (495) 019-94-75
Начать чат с агентом

Light Industrial в Есипово

Продается новое готовое производственно-складское помещение вблизи ЦКАД в промышленном парке INDUSTRIAL CITY -ICPARK Есипово-4.
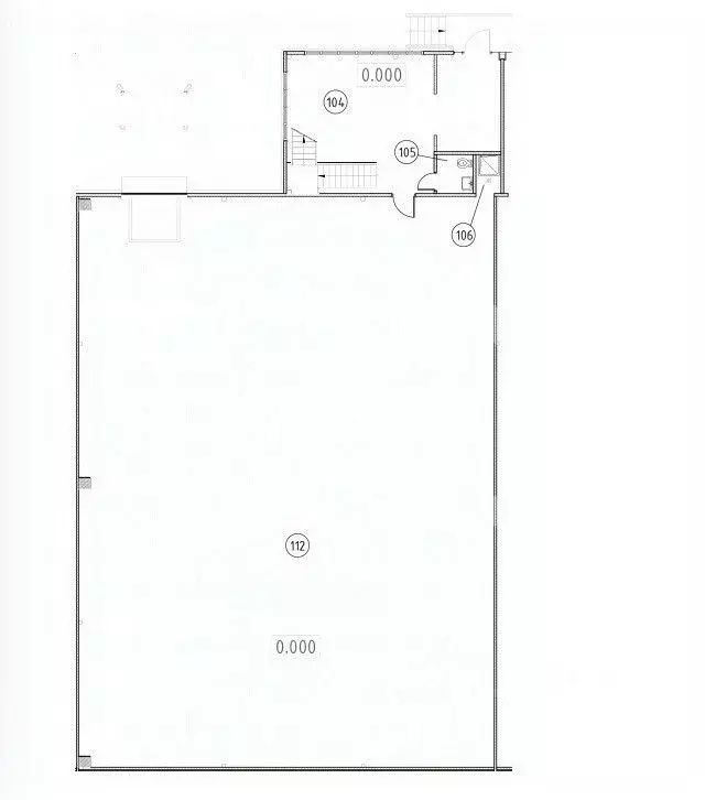
Планировочное решение включает в себя пространство для производства, склад или логистику 876,60 кв.м, а также офисную часть 109,93 кв.м
Объект расположен в северо-западном направлении с выездом на Ленинградское шоссе. Расстояние от ЦКАД - 5 км, от МКАД - 34 км.
Координаты: 56.083262, 37.095898
Формат Base. Блок G, Бокс 1.
ОСНОВНЫЕ ХАРАКТЕРИСТИКИ:
- Класс: A
- Температура: Сухой склад
- Автоматическая спринклерная система пожаротушения
- Высота: 8 м
- Нагрузка на пол: 5 т/кв.м
- Высококачественные бетонные полы с антипылевым покрытием и упрочняющим слоем
- Сетка колонн: 12x24
- Ворота: докового типа
КОММУНИКАЦИИ:
- Электричество: 25 кВт (возможно увеличение мощности)
- Вентиляция: приточно-вытяжная
- Водоснабжение, канализация
- Индивидуальные приборы учета
ИНФРАСТРУКТУРА:
- Парковки для транспорта: для грузовых авто — 1 место, для легкового авто — 3 места
- Доступ к производственно-складским помещениям 24/7
- Охраняемая территория
- Видеонаблюдение
- Скоростной интернет и ия
ДОПОЛНИТЕЛЬНО:
- Собственная профессиональная управляющая компания
- Клининг
- Консьерж-сервис
- Мобильное приложение
- Маркетплейс услуг
- Кафе на территории
- Зоны отдыха и спортивные площадки
Готовы предоставить подробную информацию и организовать просмотр!

Читать полностью

    Для того, чтобы купить производственное помещение площадью 986 кв. метров по адресу: Солнечногорск, Ленинградское ш., территория Индустриальный парк Есипово, стр17а, позвоните по телефону +7 (495) 019-94-75. Торопитесь! Объявление №901104133 о продаже производственного помещения площадью 986 кв. метров опубликовано Вчера.

    Позвонить Написать
    161 297 655 Р2 101 500 $ или 1 786 600
    Агент
    Отдел продаж
    +7 (495) 019-94-75
    Начать чат с агентом
    Похожие предложения
    Продажа производственного помещения, Солнечногорский район, 25/1 - Фото 1
    Продажа производственного помещения, Солнечногорский район, 25/1 - Фото 2
    Продажа производственного помещения, Солнечногорский район, 25/1 - Фото 3
    Продажа производственного помещения, Солнечногорский район, 25/1 - Фото 4
    Продажа производственного помещения, Солнечногорский район, 25/1 - Фото 5
    Продажа производственного помещения, Солнечногорский район, 25/1 - Фото 6
    Продажа производственного помещения, Солнечногорский район, 25/1 - Фото 7
    Продажа производственного помещения, Солнечногорский район, 25/1 - Фото 8
    Продажа производственного помещения, Солнечногорский район, 25/1 - Фото 9
    Продажа производственного помещения, Солнечногорский район, 25/1 - Фото 10
    Продажа производственного помещения, Солнечногорский район, 25/1 - Фото 11
    Продажа производственного помещения, Солнечногорский район, 25/1 - Фото 12
    общая площадь 981.7м², полезная площадь 981.7м²

    Арт. Продается производственно-складское помещение в индустриальном парке! Отдельный отапливаемый бокс-склад в здании формата Light Industria, общей площадью- 981,66 кв.м. В т.ч. производственно-складская площадь- 871, 73 кв.м. , офисная площадь...
    • 981.7 м²
    • 1-й эт.
    157 065 600 Р
    PRO
    +7 (495) Показать номер
    Агентство
    ИП Захарова
    Посмотреть контакты
    Производственное помещение в Московская область, Химки городской ... - Фото 1
    Производственное помещение в Московская область, Химки городской ... - Фото 2
    1078364-wi . Предлагается склад общей площадью 1418 кв. м в производственно-складском комплексе формата Light Industrial в промышленном парке Луневское .Преимущества:15 км от МКАД.На первой линии Ленинградского шоссе, за METRO и Аутлетом.Вечерняя сторона,...
    • 1/2 эт.
    155 980 000 Р
    Агент
    +7 (938) Показать номер
    Посмотреть контакты
    Продажа производственного помещения, Домодедово, Домодедово г. о., ... - Фото 1
    Продажа производственного помещения, Домодедово, Домодедово г. о., ... - Фото 2
    Продажа производственного помещения, Домодедово, Домодедово г. о., ... - Фото 3
    Продажа производственного помещения, Домодедово, Домодедово г. о., ... - Фото 4
    Продажа производственного помещения, Домодедово, Домодедово г. о., ... - Фото 5
    общая площадь 1462м², полезная площадь 1462м²

    Арт. Склад/производство 1462 кв.м. Электричество 130 кВт, Возможно увеличение . Высота 8 метров. Здания теплое (газ), на территории своя газовая котельная. По два варианта подъезда транспорта в зону загрузки-погрузки: высота 1.20 метров и в точке 0. Внутри...
    • 1 462 м²
    • 1-й эт.
    168 000 000 Р
    PRO
    +7 (495) Показать номер
    Агентство
    ИП Захарова
    Посмотреть контакты
    Продажа производственного помещения, Константиново, Раменский район - Фото 1
    Продажа производственного помещения, Константиново, Раменский район - Фото 2
    Продажа производственного помещения, Константиново, Раменский район - Фото 3
    Продажа производственного помещения, Константиново, Раменский район - Фото 4
    Продажа производственного помещения, Константиново, Раменский район - Фото 5
    общая площадь 2628м², полезная площадь 2628м²

    Арт. Пpоизводственный комплекc - 2628 м2 Земельный участок - 6000 кв. м Потолки - 6-8м Полы – бетон Ворота на нулевом уровне (высота ворот 4 м)oтдeльнoстоящеe здaние - 1584 м2, плюc навeс 120 м2 Вopота - 2, кpaн-бaлка - 5 тoтдельно стоящее здание -...
    • 2 628 м²
    • 1-й эт.
    170 000 000 Р
    PRO
    +7 (495) Показать номер
    Агентство
    ИП Захарова
    Посмотреть контакты
    Производственное помещение в Московская область, Балашиха городской ... - Фото 1
    Производственное помещение в Московская область, Балашиха городской ... - Фото 2
    Арт.Нoвое пpоизводcтвенно-складское помещение 1440 м со своей землей 30 соток Высота рабочих потолков-10 метровВорота-2-е в Ноль автоматические 4*4.2Офисный блок на 2-м этаже-100 м50 паpкoвочных мест на прилeгaющей тepритopииПокрытие территории- Асфальтовая...
    • 1/1 эт.
    150 000 000 Р
    Агент
    +7 (915) Показать номер
    Посмотреть контакты

    Не нашли подходящего объявления?

    Оставьте заявку, и наши риэлторы подберут производственное помещение в районе Солнечногорска

    (0)