6 690 000 Р 80 480 $ или 70 670

Информация о коттедже

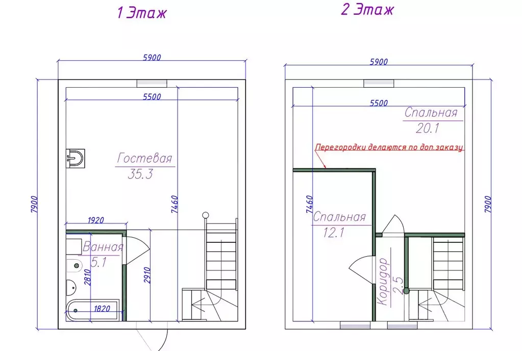
86 м2
Площадь
2
Этажность
4 cоток
Участок

Дополнительная информация

Дом продаётся вместе с участком
есть
Развернуть
Агент
+7 (916) 881-84-26
Начать чат с агентом

Дом, 86 м

Купите свой загородный дом от застройщика по выгодным условиям Комфортабельное доступное жильё для Вас и Вашей семьи Варианты приобретения дома:1. Договор купли-продажи;2. Ипотека (любые формы государственных поддержек: семейная ипотека, IT-ипотека, материнский капитал); 3. Аренда с правом выкупа от собственника без участия банка от 1 года до 30 лет (под годовые проценты, ставка до 14 ). Ежемесячный платёж при сроке аренды 30 лет -Полный пакет документов и сопровождение сделки на всех этапах.Живите в своём доме прямо сейчас - одобряем всем желающим Без справок и поручителей Кредитная история не имеет значения.Вы приобретаете готовый дом с водоснабжением, электричеством и отоплением для круглогодичного проживания из экологичных материалов и построенный по современным технологиям (зимой тепло, летом прохладно).Описание объекта:1. Размер дома - 6х8;2. Электричество - 15 кВт.;3. Электрическое отопление (электроконвекторы);4. Вода скважина;5. Канализация 2 кольца;6. Назначение земли - ИЖС (с возможностью прописки);7. Дом построен из керамзитных блоков, с использованием армированного пояса;8. Фасад утеплён пенопластом 50 мм.;9. Контурное утепление стен и пола первого этажа пенопластовым утеплителем толщиной 50мм.;10. Внешняя отделка сайдинг;11. Крыша из ондулина с гидроизоляцией (утеплена минеральной ватой 150мм.);12. Внутренняя отделка имитация бруса;13. Канализация (санузел) в доме: унитаз, раковина и ванна;14. Электрическая разводка: автомат, розетки и выключатели;15. Забор сетка рабица;16. Ворота для проезда автомобиля с парковочным местом;17. Водонагреватель.Инфраструктура:1. Остановка общественного транспорта - 800 м.;2. Продукты - 2 км.;3. Поликлиника -3 км.;4. Школа - 4 км.;5. Детский сад - 4 км.;5. Пункты выдачи товаров 1,5 км.;6. Чистка дорог (уборка снега и наледи).Будем рады помочь осуществить Вашу мечту о загородной жизни Звоните и приезжайте к нам в офис. Подберём под Ваши цели и задачи наилучшие варианты решений

Читать полностью

    Для того, чтобы купить 2-этажный коттедж по адресу: Клеверная улица, позвоните по телефону +7 (916) 881-84-26. Торопитесь! Объявление №50016830653 о продаже двухэтажного коттеджа опубликовано 05 марта 2026.

    Позвонить Написать
    6 690 000 Р80 480 $ или 70 670
    Агент
    +7 (916) 881-84-26
    Начать чат с агентом
    Похожие предложения в Щелковском районе
    Дом в Московская область, Щелково городской округ, д. Протасово ул. ... - Фото 1
    Дом в Московская область, Щелково городской округ, д. Протасово ул. ... - Фото 2
    1 этаж, общая площадь 161м², участок 750 соток

    Арт.. Объект 47715 Дома от застройщика Подходит под семейную ипотеку 5.9-6 ИТ ипотеку, военный сертификат, материнский капитал. ,Дом расположен в окружении леса-чистый воздух хорошая экология соседи живут круглогодично, рядом лес озеро. магазины. спортзалы,...
    • 1 эт.
    • 161 м²
    • 750 сот.
    6 800 000 Р
    Агент
    +7 (931) Показать номер
    Посмотреть контакты
    Дом в Московская область, Щелково городской округ, Сатурн садовое ... - Фото 1
    Дом в Московская область, Щелково городской округ, Сатурн садовое ... - Фото 2
    2 этажа, общая площадь 96м², участок 11 соток

    Код объекта: 839568.Продается капитальный кирпичный дом на участке 11 соток Расположен по адресу: Московская область, Щёлковский район, деревня Здехово, СНТ Сатурн . в окружении хвойного леса. На территории построен Двухэтажный дом, общей площадью 96...
    • 2 эт.
    • 96 м²
    • 11 сот.
    6 700 000 Р
    Агент
    +7 (989) Показать номер
    Посмотреть контакты
    Дом в Московская область, Щелково городской округ, Цветочная тер. ул. ... - Фото 1
    Дом в Московская область, Щелково городской округ, Цветочная тер. ул. ... - Фото 2
    2 этажа, общая площадь 86м², участок 4 сотки

    Купите свой загородный дом от застройщика по выгодным условиям Комфортабельное доступное жильё для Вас и Вашей семьи Варианты приобретения дома:1. Договор купли-продажи;2. Ипотека (любые формы государственных поддержек: семейная ипотека, IT-ипотека,...
    • 2 эт.
    • 86 м²
    • 4 сот.
    6 690 000 Р
    Агент
    +7 (916) Показать номер
    Посмотреть контакты
    Дом в Московская область, Щелково городской округ, Цветочная тер. ул. ... - Фото 1
    Дом в Московская область, Щелково городской округ, Цветочная тер. ул. ... - Фото 2
    2 этажа, общая площадь 85м², участок 4 сотки

    Купите свой загородный дом от застройщика по выгодным условиям Комфортабельное доступное жильё для Вас и Вашей семьи Варианты приобретения дома:1. Договор купли-продажи;2. Ипотека (любые формы государственных поддержек: семейная ипотека, IT-ипотека,...
    • 2 эт.
    • 85 м²
    • 4 сот.
    6 690 000 Р
    Агент
    +7 (916) Показать номер
    Посмотреть контакты
    Дом в Московская область, Щелково городской округ, д. Головино, ... - Фото 1
    Дом в Московская область, Щелково городской округ, д. Головино, ... - Фото 2
    1 этаж, общая площадь 52м², участок 10 соток

    Продается готовый дом с баней и садом в охраняемом поселке (55 км от МКАД).Предлагаем готовое решение для загородной жизни. Одноэтажный гостевой дом 2025 года постройки (52 кв.м.) расположен в экологически чистом районе (СНТ Волынское-2, г.о. Щёлково,...
    • 1 эт.
    • 52 м²
    • 10 сот.
    6 600 000 Р
    Агент
    +7 (919) Показать номер
    Посмотреть контакты

    Не нашли подходящего объявления?

    Оставьте заявку, и наши риэлторы подберут купить дом в районе Щелковского района

    (0)