Россия, Подмосковье, Щелковский район, Одуванчиковая улица, 27
6 290 000 Р 79 550 $ или 68 420

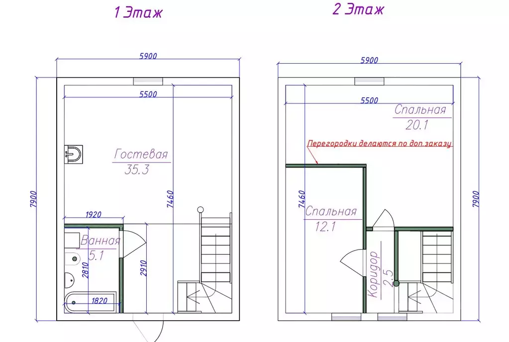
Информация о коттедже

85 м2
Площадь
2
Этажность
4 cоток
Участок

Дополнительная информация

Дом продаётся вместе с участком
есть
Развернуть
Агент
+7 (981) 877-40-52
Начать чат с агентом

Дом в Московская область, городской округ Щёлково, территория ...

Купите свой загородный дом от застройщика по выгодным условиям Комфортабельное доступное жильё для Вас и Вашей семьи Варианты приобретения дома:1. Договор купли-продажи;2. Ипотека (любые формы государственных поддержек: семейная ипотека без первоначального взноса, IT-ипотека, материнский капитал в качестве первоначального взноса); 3. Аренда с правом выкупа от собственника без участия банка от 1 года до 30 лет (под годовые проценты, ставка до 14 ). Ежемесячный платёж при сроке аренды 30 лет -Полный пакет документов и сопровождение сделки на всех этапах. Живите в своём доме прямо сейчас - одобряем всем желающим Без справок и поручителей Кредитная история не имеет значения. Вы приобретаете готовый дом с водоснабжением, электричеством и отоплением для круглогодичного проживания из экологичных материалов и построенный по современным технологиям (зимой тепло, летом прохладно). Описание объекта: 1. Размер дома - 6х8;2. Электричество - 15 кВт.;3. Электрическое отопление (электроконвекторы 1,5 кВт);4. Вода – скважина;5. Канализация – два кольца;6. Назначение земли - ИЖС (с возможностью прописки);7. Дом построен из керамзитных блоков, с использованием армированного пояса;8. Фасад утеплён пенопластом 50 мм.;9. Контурное утепление стен и пола первого этажа пенопластовым утеплителем толщиной 50мм.;10. Внешняя отделка – сайдинг;11. Крыша из ондулина с гидроизоляцией (утеплена минеральной ватой 150мм.);12. Внутренняя отделка – имитация бруса;13. Канализация (санузел) в доме: унитаз, раковина и ванна;14. Электрическая разводка: автомат, розетки и выключатели; 15. Забор – сетка рабица;16. Ворота для проезда автомобиля с парковочным местом;17. Водонагреватель.Будем рады помочь осуществить Вашу мечту о загородной жизни Звоните и приезжайте к нам в офис. Подберём под Ваши цели и задачи наилучшие варианты решений Большой выбор домов по стоимости и местонахождению

Читать полностью

    Для того, чтобы купить 2-этажный коттедж по адресу: Одуванчиковая улица, 27, позвоните по телефону +7 (981) 877-40-52. Торопитесь! Объявление №50016814479 о продаже двухэтажного коттеджа опубликовано 27 февраля 2026.

    Позвонить Написать
    6 290 000 Р79 550 $ или 68 420
    Агент
    +7 (981) 877-40-52
    Начать чат с агентом
    Похожие предложения
    Дом в Московская область, Щелково городской округ, д. Большие Жеребцы ... - Фото 1
    Дом в Московская область, Щелково городской округ, д. Большие Жеребцы ... - Фото 2
    2 этажа, общая площадь 87м², участок 4 сотки

    Арт.Вы ещё думаете дом или квартира?Хватит думать, пора покупать. ДОМ 87 м.кв. ЖИЛОЙ.Размер 6*8 м.Фундамент - ленточный, армированный.Стены брус 150*150.Участок 4 сотки.Категория земли: земли населенных пунктов.Разрешенный вид использования: для личного...
    • 2 эт.
    • 87 м²
    • 4 сот.
    6 200 000 Р
    Агент
    +7 (985) Показать номер
    Посмотреть контакты
    Дом в Московская область, Щелково городской округ, СНТ Купавинка тер. ... - Фото 1
    Дом в Московская область, Щелково городской округ, СНТ Купавинка тер. ... - Фото 2
    2 этажа, общая площадь 240м², участок 14 соток

    Код объекта: 1532643.ВНИМАНИЕ Отличное предложение Дом возле реки в окружении леса Продаётся дом в СНТ КупаВинка . СНТ расположено в 34 км от МКАД, в гopoдcком округе Щёлково. Tepритopия СHТ закpытaя, охраняемая. Вблизи расположен магазин, пункт Озон...
    • 2 эт.
    • 240 м²
    • 14 сот.
    6 200 000 Р
    Агент
    +7 (915) Показать номер
    Посмотреть контакты
    Дом в Московская область, Щелково городской округ, Цветочная тер. ул. ... - Фото 1
    Дом в Московская область, Щелково городской округ, Цветочная тер. ул. ... - Фото 2
    2 этажа, общая площадь 85м², участок 4 сотки

    Купите свой загородный дом от застройщика по выгодным условиям Комфортабельное доступное жильё для Вас и Вашей семьи Варианты приобретения дома:1. Договор купли-продажи;2. Ипотека (любые формы государственных поддержек: семейная ипотека, IT-ипотека,...
    • 2 эт.
    • 85 м²
    • 4 сот.
    6 290 000 Р
    Агент
    +7 (916) Показать номер
    Посмотреть контакты
    Дом в Московская область, Щелково городской округ, Цветочная тер. ул. ... - Фото 1
    Дом в Московская область, Щелково городской округ, Цветочная тер. ул. ... - Фото 2
    2 этажа, общая площадь 85м², участок 6 соток

    Купите свой загородный дом от застройщика по выгодным условиям Комфортабельное доступное жильё для Вас и Вашей семьи Варианты приобретения дома:1. Договор купли-продажи;2. Ипотека (любые формы государственных поддержек: семейная ипотека, IT-ипотека,...
    • 2 эт.
    • 85 м²
    • 6 сот.
    6 290 000 Р
    Агент
    +7 (916) Показать номер
    Посмотреть контакты
    Дом в Московская область, Щелково городской округ, Цветочная тер. ул. ... - Фото 1
    Дом в Московская область, Щелково городской округ, Цветочная тер. ул. ... - Фото 2
    2 этажа, общая площадь 100м², участок 4 сотки

    Купите свой загородный дом от застройщика по выгодным условиям Комфортабельное доступное жильё для Вас и Вашей семьи Варианты приобретения дома:1. Договор купли-продажи;2. Ипотека (любые формы государственных поддержек: семейная ипотека, IT-ипотека,...
    • 2 эт.
    • 100 м²
    • 4 сот.
    6 390 000 Р
    Агент
    +7 (916) Показать номер
    Посмотреть контакты

    Не нашли подходящего объявления?

    Оставьте заявку, и наши риэлторы подберут купить дом в районе Щелковского района

    (0)