9 000 000 Р 115 500 $ или 98 490

Информация о квартире

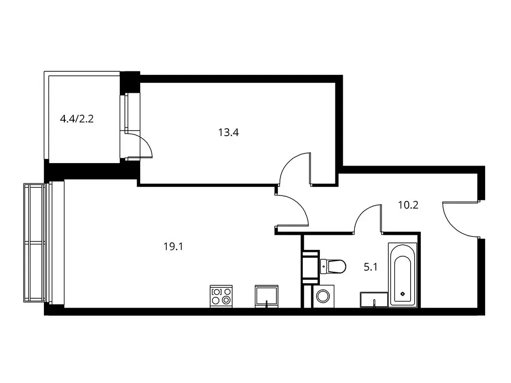
33 м2
Площадь
23 м2
Жилая
7 м2
Кухня
2
Комнаты
1
Этаж
1
Этажность
Развернуть
Агент
+7 (984) 555-82-91
Начать чат с агентом

2-комнатная квартира: Свердловский, улица Дзержинского, 19 (33.9 м)

Арт.ПРОДАЮ СЕКЦИЮ ЖИЛОГО ДОМА С ОТДЕЛЬНЫМ ВХОДОМ, СВОИМ ДВОРОМ И ФАКТИЧЕСКОЙ ПЛОЩАДЬЮ ОКОЛО 70 М Московская область, р.п. Свердловский, ул. Дзержинского, 19 Отдельный вход • Частная территория • Центральная вода • Жилое состояние • Большое пространство ОБЪЕКТ Продаётся полноценная часть жилого дома с отдельным входом и собственным огороженным двором. Формат — как мини-дом, идеально подходящий для круглогодичного проживания. Официальная площадь по документам: 33,9 м Фактическая площадь: около 70 м (включает утеплённую веранду, большую кухню, санузел, прихожую и хозяйственные помещения — все используются как полноценные жилые зоны) ПЛАНИРОВКА (ПО ФАКТУ) просторная жилая комната отдельная спальня большая кухня утеплённая веранда/прихожая санузел с душевой кабиной кладовые/хозяйственные помещения Каждая зона тёплая и пригодна для жизни. ПРЕИМУЩЕСТВА

Читать полностью

    Для того, чтобы купить двухкомнатную квартиру по адресу: Свердловский, ул. Дзержинского, 19, позвоните по телефону +7 (984) 555-82-91. Торопитесь! Объявление №30092187847 о продаже двухкомнатной квартиры опубликовано 03 декабря 2025.

    Позвонить Написать
    9 000 000 Р115 500 $ или 98 490
    Агент
    +7 (984) 555-82-91
    Начать чат с агентом
    Похожие предложения
    2-к кв. Московская область, Лосино-Петровский городской округ, ... - Фото 1
    2-к кв. Московская область, Лосино-Петровский городской округ, ... - Фото 2
    2-комнатная квартира, общая площадь 33м², жилая 21м², кухня 7м²

    Арт.ПРОДАЮ СЕКЦИЮ ЖИЛОГО ДОМА С ОТДЕЛЬНЫМ ВХОДОМ, СВОИМ ДВОРОМ И ФАКТИЧЕСКОЙ ПЛОЩАДЬЮ ОКОЛО 70 М Московская область, р.п. Свердловский, ул. Дзержинского, 19Отдельный вход • Частная территория • Центральная вода • Жилое состояние • Большое пространствоОБЪЕКТПродаётся...
    • 33 м²
    • 2-ком
    • 1/1 эт.
    9 000 000 Р
    Агент
    +7 (980) Показать номер
    Посмотреть контакты
    Продажа квартиры, Оболдино, Щелковский район, Радужная улица - Фото 1
    Продажа квартиры, Оболдино, Щелковский район, Радужная улица - Фото 2
    Продажа квартиры, Оболдино, Щелковский район, Радужная улица - Фото 3
    Продажа квартиры, Оболдино, Щелковский район, Радужная улица - Фото 4
    Продажа квартиры, Оболдино, Щелковский район, Радужная улица - Фото 5
    Продажа квартиры, Оболдино, Щелковский район, Радужная улица - Фото 6
    Продажа квартиры, Оболдино, Щелковский район, Радужная улица - Фото 7
    Продажа квартиры, Оболдино, Щелковский район, Радужная улица - Фото 8
    Продажа квартиры, Оболдино, Щелковский район, Радужная улица - Фото 9
    Продажа квартиры, Оболдино, Щелковский район, Радужная улица - Фото 10
    Продажа квартиры, Оболдино, Щелковский район, Радужная улица - Фото 11
    Продажа квартиры, Оболдино, Щелковский район, Радужная улица - Фото 12
    Продажа квартиры, Оболдино, Щелковский район, Радужная улица - Фото 13
    Продажа квартиры, Оболдино, Щелковский район, Радужная улица - Фото 14
    Продажа квартиры, Оболдино, Щелковский район, Радужная улица - Фото 15
    Продажа квартиры, Оболдино, Щелковский район, Радужная улица - Фото 16
    Продажа квартиры, Оболдино, Щелковский район, Радужная улица - Фото 17
    Продажа квартиры, Оболдино, Щелковский район, Радужная улица - Фото 18
    Продажа квартиры, Оболдино, Щелковский район, Радужная улица - Фото 19
    Продажа квартиры, Оболдино, Щелковский район, Радужная улица - Фото 20
    3-комнатная квартира, с евроремонтом, общая площадь 87м², жилая 64м², кухня 10м²

    Код объекта: 1083629.Продается 2-уровневая 3-комнатная квартира по адресу: Щелковский район, деревня Оболдино, улица Радужная, дом 5, расположенная на 3 и 4 этажах 4-этажного кирпичного дома. Общая площадь квартиры 90 метров (1-ый уровень 41 метр, 2-ой...
    • 87 м²
    • 3-ком
    • 3/4 эт.
    • монолитно-кирпичный
    9 000 000 Р
    Агент
    +7 (925) Показать номер
    Агентство
    ТСН Владис
    Посмотреть контакты
    2-комнатная квартира: Щёлково, улица Строителей, 14А (50 м) - Фото 1
    2-комнатная квартира: Щёлково, улица Строителей, 14А (50 м) - Фото 2
    2-комнатная квартира, общая площадь 50м², жилая 13м², кухня 19м²

    Комплекс располагается в центре г. Щёлково на ул. Центральная.Социальная инфраструктура: в пешей доступности находятся детские сады и школы.Коммерческая инфраструктура: рядом с жилым комплексом расположены продуктовые супермаркеты, салоны красоты и кафе.Спортивная...
    • 50 м²
    • 2-ком
    • 8/17 эт.
    9 070 250 Р
    Агент
    +7 (989) Показать номер
    Посмотреть контакты
    2-к кв. Московская область, Лосино-Петровский городской округ, ... - Фото 1
    2-к кв. Московская область, Лосино-Петровский городской округ, ... - Фото 2
    2-комнатная квартира, общая площадь 69м²

    Продается отличная двухкомнатная квартира в г. Щелково пос. Биокомбината.Квартира в хорошем состоянии, с ремонтом.Отличительной особенностью данной квартиры является большая панорамная лоджия 20кв. М с отличным видом.В квартире сделан хороший ремонт,...
    • 69 м²
    • 2-ком
    • 17/17 эт.
    8 900 000 Р
    Агент
    +7 (986) Показать номер
    Посмотреть контакты
    Продажа квартиры, Пушкино, Воскресенский район, 13 - Фото 1
    Продажа квартиры, Пушкино, Воскресенский район, 13 - Фото 2
    Продажа квартиры, Пушкино, Воскресенский район, 13 - Фото 3
    Продажа квартиры, Пушкино, Воскресенский район, 13 - Фото 4
    Продажа квартиры, Пушкино, Воскресенский район, 13 - Фото 5
    Продажа квартиры, Пушкино, Воскресенский район, 13 - Фото 6
    Продажа квартиры, Пушкино, Воскресенский район, 13 - Фото 7
    Продажа квартиры, Пушкино, Воскресенский район, 13 - Фото 8
    Продажа квартиры, Пушкино, Воскресенский район, 13 - Фото 9
    Продажа квартиры, Пушкино, Воскресенский район, 13 - Фото 10
    Продажа квартиры, Пушкино, Воскресенский район, 13 - Фото 11
    Продажа квартиры, Пушкино, Воскресенский район, 13 - Фото 12
    Продажа квартиры, Пушкино, Воскресенский район, 13 - Фото 13
    Продажа квартиры, Пушкино, Воскресенский район, 13 - Фото 14
    Продажа квартиры, Пушкино, Воскресенский район, 13 - Фото 15
    Продажа квартиры, Пушкино, Воскресенский район, 13 - Фото 16
    Продажа квартиры, Пушкино, Воскресенский район, 13 - Фото 17
    Продажа квартиры, Пушкино, Воскресенский район, 13 - Фото 18
    Продажа квартиры, Пушкино, Воскресенский район, 13 - Фото 19
    Продажа квартиры, Пушкино, Воскресенский район, 13 - Фото 20
    3-комнатная квартира, общая площадь 57.8м², жилая 34м², кухня 7м²

    Код объекта: 1942256.АКЦИЯ: «Дарим неделю в Турции»!Купи недвижимость - отдохни в Турции! При покупке любой недвижимости с ТСН вы получаете ваучер на экскурсионный тур в Турцию на двоих в ПОДАРОК!Ваша новая трёхкомнатная квартира в Пушкинском районе Московской...
    • 57.8 м²
    • 3-ком
    • 5/9 эт.
    • кирпичный
    8 950 000 Р
    Агент
    +7 (925) Показать номер
    Агентство
    ТСН Владис
    Посмотреть контакты

    Не нашли подходящего объявления?

    Оставьте заявку, и наши риэлторы подберут квартиру в районе Свердловского

    (0)