600 000 Р 7 800 $ или 6 670

Информация об помещении

1
Этаж

Состояние и оснащение

Количество этажей
1
Развернуть
Агент
+7 (938) 656-74-88
Начать чат с агентом

Помещение свободного назначения в Московская область, ...

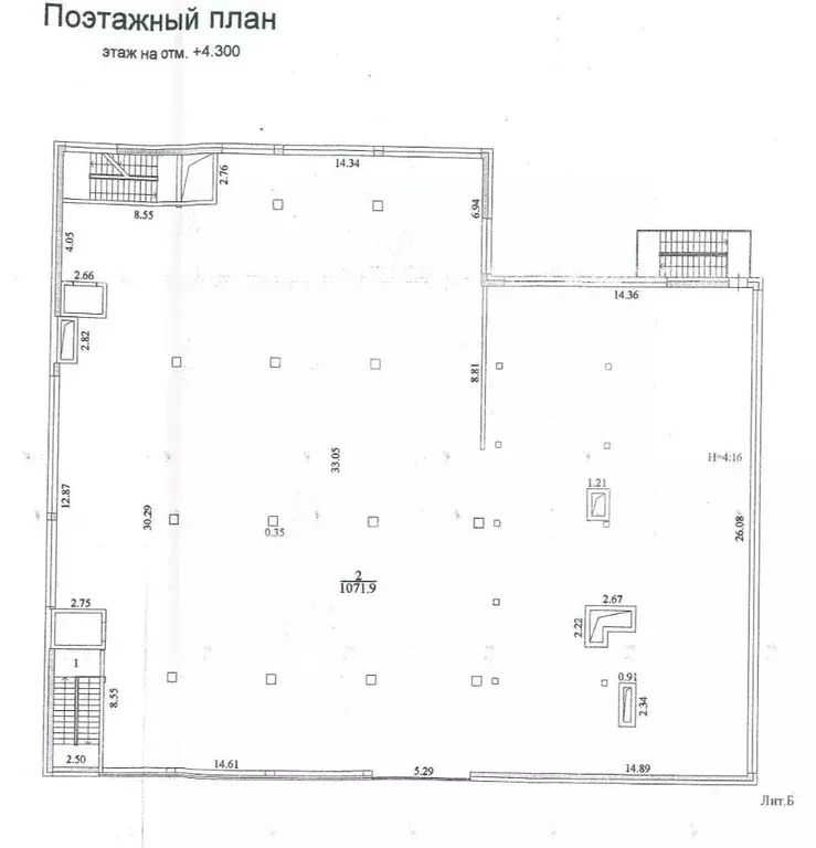
979928. Склад в Лосино-Петровском ГО, деревня Осеево. В транспортной доступности удобный выезд на Монинское, Горьковское и Щёлковское шоссе. 400 метров до строительного гипермаркета ММК-Строй . 30 КМ до МКАД. Одноэтажное здание, открытая планировка, типовой ремонт. Прочный бетонный пол, высокие потолки. Предусмотрены все необходимые коммуникации. Вентиляция - естесственная. Помещение находится на огороженной и охраняемой территории с удобным заездом и парковкой для грузовых и легковых автомобилей. 3 минуты пешком до пешеходного перехода и остановок общественного транспорта. Технические характеристики:Площадь: 800 мКоличество мокрых точек: 2Высота потолков: 5 м

Читать полностью
    Позвонить Написать
    600 000 Р7 800 $ или 6 670
    Агент
    +7 (938) 656-74-88
    Начать чат с агентом
    Похожие предложения
    Помещение свободного назначения в Московская область, Мытищи городской ... - Фото 1
    Помещение свободного назначения в Московская область, Мытищи городской ... - Фото 2
    ==ЛОТ 223113 == ОТ СОБСТВЕННИКА, БЕЗ КОМИССИИ. СДАЮ МНОГОФУНКЦИОНАЛЬНОЕ ПОМЕЩЕНИЕ СВОБОДНОГО НАЗНАЧЕНИЯ 900 м. Своя парковка, два этажа, рядом с Москвой.Подойдет под склад, производство, офис.Почему это выгодно:-Своя закрытая территория. Парковка для...
    • 1/1 эт.
    600 000 Р
    Агент
    +7 (923) Показать номер
    Посмотреть контакты
    Помещение свободного назначения в Московская область, Рузский ... - Фото 1
    Помещение свободного назначения в Московская область, Рузский ... - Фото 2
    1137433. Предлагается склад общей площадью 1468 кв. м. в дер. Дорохово.Преимущества: Центр крупной промышленной зоны.Развитая транспортная доступность: Выезд на Минское и Можайское шоссе. Отличный подъезд для длинномерного автотранспорта.Можно использовать...
    • 1/1 эт.
    590 000 Р
    Агент
    +7 (938) Показать номер
    Посмотреть контакты
    Помещение свободного назначения в Московская область, Балашиха просп. ... - Фото 1
    Помещение свободного назначения в Московская область, Балашиха просп. ... - Фото 2
    1091931. Предлагаем помещение свободного назначения, площадью 350 кв. м., расположенное на втором этаже отдельно стоящего здания в ЖК Жемчужина Виктории , г. Балашиха. Преимущества объекта:-комплекс состоит из шести 17-этажных корпусов;-10 минут на автомобиле...
    • 2/2 эт.
    600 000 Р
    Агент
    +7 (938) Показать номер
    Посмотреть контакты
    Помещение свободного назначения в Московская область, Дзержинский ... - Фото 1
    Помещение свободного назначения в Московская область, Дзержинский ... - Фото 2
    1052163. Предлагаем теплый склад общей площадью 360 кв. м в Дзержинском.Преимущества объекта:4 км по Новоегорьевскому шоссе до МКАД.Удобный выезд на Новорязанское шоссе.13 минут езды до станций метро Котельники , Жулебино , Шипиловская .Типовой ремонт.Все...
    • 1/1 эт.
    604 800 Р
    Агент
    +7 (938) Показать номер
    Посмотреть контакты
    Помещение свободного назначения в Московская область, Наро-Фоминск ул. ... - Фото 1
    Помещение свободного назначения в Московская область, Наро-Фоминск ул. ... - Фото 2
    Код объекта: 2015460.ПРЕДЛАГАЕТСЯ В АРЕНДУ ОТДЕЛЬНО СТОЯЩЕЕ ЗДАНИЕ общей площадью 606 м2.Без комиссии для арендаторов. ОСНОВНЫЕ ХАРАКТЕРИСТИКИ И ПРЕИМУЩЕСТВА ПОМЕЩЕНИЯ:- Расположено на первой линии;- Отличная визуализация и рекламные возможности по вывеске;-...
    • 1/1 эт.
    600 000 Р
    Агент
    +7 (916) Показать номер
    Посмотреть контакты

    Не нашли подходящего объявления?

    Оставьте заявку, и наши риэлторы подберут псн в районе Осеево

    (0)