119 000 000 Р 1 468 200 $ или 1 284 300

Информация об помещении

1
Этаж

Состояние и оснащение

Количество этажей
1
Развернуть
Агент
+7 (938) 656-74-88
Начать чат с агентом

Помещение свободного назначения в Московская область, Щелково ...

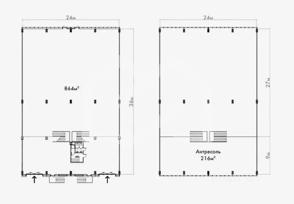
882056. Новое складское помещение класса В на первой линии Фряновского шоссе. Удобный подъезд для большегрузного автотранспорта, 29 км от МКАД. Развитая инфраструктура. 1 этаж. Ворота - 2 шт. на уровне 0 . Открытая планировка + офисный блок. Полы - антипыль. Полностью оборудован всем необходимым для эксплуатации. Водоснабжение - скважина, канализация - септик. 2 мокрые точки. Воздушное отопление от газовых котлов, газгольдер. Приточная вентиляция. Земельный участок в собственности. Категория - земли промышленности, ВРИ - склады. В шаговой доступности остановка общественного транспорта.Технические характеристики:Общая площадь - 1257,1 кв.м., в т.ч. офисный блок на мезонине - 100 кв.м.Высота потолка - 8 метров до ферм, 10 в коньке.Сетка колонн - 9*3 метра.Электрическая мощность - 50 кВт., с возможностью увеличения.Земельный участок - 22 сотки.Ввод в эксплуатацию - 1 кв. 2025 г.

Читать полностью
    Позвонить Написать
    119 000 000 Р1 468 200 $ или 1 284 300
    Агент
    +7 (938) 656-74-88
    Начать чат с агентом
    Похожие предложения
    Помещение свободного назначения в Московская область, Щелково ... - Фото 1
    Помещение свободного назначения в Московская область, Щелково ... - Фото 2
    882056. Новое складское помещение класса В на первой линии Фряновского шоссе. Удобный подъезд для большегрузного автотранспорта, 29 км от МКАД. Развитая инфраструктура. 1 этаж. Ворота - 2 шт. на уровне 0 . Открытая планировка + офисный блок. Полы -...
    • 1/1 эт.
    119 000 000 Р
    Агент
    +7 (938) Показать номер
    Посмотреть контакты
    Помещение свободного назначения в Московская область, Щелково ... - Фото 1
    Помещение свободного назначения в Московская область, Щелково ... - Фото 2
    973053. Новое складское помещение класса В на первой линии Фряновского шоссе. Удобный подъезд для большегрузного автотранспорта, 29 км от МКАД. Развитая инфраструктура. 1 этаж. Ворота - 2 шт. на уровне 0 . Открытая планировка + офисный блок. Полы -...
    • 1/1 эт.
    124 000 000 Р
    Агент
    +7 (938) Показать номер
    Посмотреть контакты
    Помещение свободного назначения в Московская область, Щелково ... - Фото 1
    Помещение свободного назначения в Московская область, Щелково ... - Фото 2
    973053. Новое складское помещение класса В на первой линии Фряновского шоссе. Удобный подъезд для большегрузного автотранспорта, 29 км от МКАД. Развитая инфраструктура. 1 этаж. Ворота - 2 шт. на уровне 0 . Открытая планировка + офисный блок. Полы -...
    • 1/1 эт.
    124 000 000 Р
    Агент
    +7 (938) Показать номер
    Посмотреть контакты
    Помещение свободного назначения в Московская область, Домодедово ... - Фото 1
    Помещение свободного назначения в Московская область, Домодедово ... - Фото 2
    1134573. Предлагается склад общей площадью 1 080 кв. м в Домодедово. 1 этаж + антресоль ОСЗ. Преимущества: Парк расположен в черте города. Возможность эффективно выстроить логистику и поиск трудовых ресурсов для ведения бизнеса.Два независимых КПП.Прямой...
    • 1/2 эт.
    118 800 000 Р
    Агент
    +7 (938) Показать номер
    Посмотреть контакты
    Помещение свободного назначения в Московская область, Серпухов ... - Фото 1
    Помещение свободного назначения в Московская область, Серпухов ... - Фото 2
    АУКЦИОН. Объект реализуется через электронный аукцион споПродажа с открытых торгов в рамках исполнительного производства имущественного комплекса в составе: 1) 1-этажное нежилое здание, общей площадью 632 кв.м. , расположенное по адресу: Московская область,...
    • 1/1 эт.
    111 041 280 Р
    Агент
    +7 (916) Показать номер
    Посмотреть контакты

    Не нашли подходящего объявления?

    Оставьте заявку, и наши риэлторы подберут псн в районе Назимихи

    (0)