8 048 000 Р 99 700 $ или 85 150

Информация об помещении

1
Этаж

Состояние и оснащение

Количество этажей
3
Развернуть
Агент
+7 (986) 274-27-15
Начать чат с агентом

Склад в Московская область, Щелково Заречная ул., 153к5 (6036 м)

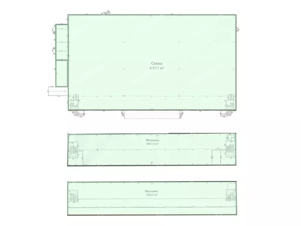
Лот 304371 Предложение от Собственника Сдаётся в аренду отапливаемый склад площадью 6036 м2 в складском комплексе класса А. Помещения склада 1 этажа - 4917 м2, 2 этаж АБК - 881 м2, 3 этаж - 238 м2 (мезонин).Высота потолков 12.5 м2, полы с антипылевым покрытием, система дымоудаления, система пожаротушения и оповещения, шаг колонн 18 на 24 м, дебаркадер, подъёмно-поворотные ворота с докшелтерами и доклевеллерами 6 шт и одни ворота на нулевом уровне, 100 кВт, круглосуточная охрана, паркинг. Высота до низа несущих конструкций - 12.5 м, подъёмно-поворотные ворота размером 3 на 3 м, оборудованные механическим и электрическим электроприводом, с доклевеллерами и докшелтерами. Дебаркадер, встроенный в корпус на высоте пола 1.2 м от прилегающей площади. Фасады из металлических сэндвич-панелей, толщиной 150 мм с утеплителем из минераловатных плит. Колонны сборные железобетонные, сечением 600 на 400 мм. Полы монолитные железобетонные с обеспылевающим упрочняющим покрытием и полезной нагрузкой 8 тонн на кв.м. Кровля мембранная, утепленная минераловатными плитами толщиной 200 мм с внутренним уклоном и внутренним организованным водостоком. Естественная вытяжная вентиляция через зенитные фонари. Система дымоудаления. Система водяного пожаротушения. Система уведомления о пожаре. Теплые полы. Помещение для зарядки аккумуляторов складской техники. В цену включено: НДС 20 . В цену не включено: затраты на электричество, коммунальные расходы. Обеспечительный платеж 2 месяцa.Чтобы получить ПОДРОБНУЮ ПРЕЗЕНТАЦИЮ С ПЛАНИРОВКОЙ И ФОТОГРАФИЯМИ, звоните или отправьте свой email и номер телефона в сообщении на портале. Высылаем в течение 15 минут по запросу Конт. лицо: Алексей Юрьевич, доб. 248, ЛОТ 304371

Читать полностью
    Позвонить Написать
    8 048 000 Р99 700 $ или 85 150
    Агент
    +7 (986) 274-27-15
    Начать чат с агентом
    Похожие предложения
    Склад в Московская область, Щелково Заречная ул., 153к5 (6037 м) - Фото 1
    Склад в Московская область, Щелково Заречная ул., 153к5 (6037 м) - Фото 2
    Складской комплекс Технопарк Щелково класса AПлощадь: 6 036,8 м2Арендная ставка: 16 000,. за м2 в год включая НДССтоимость площади в месяц:,. включая НДССистема налогообложения: НДСГотовность: готово к въездуЭтаж: 1Планировка: открытаяНаличие с/у: ,...
    • 1/1 эт.
    8 049 065 Р
    Агент
    +7 (911) Показать номер
    Посмотреть контакты
    Склад в Московская область, Щелково Заречная ул., 153к5 (6037 м) - Фото 1
    Склад в Московская область, Щелково Заречная ул., 153к5 (6037 м) - Фото 2
    Складское помещение 6 036.8 кв. м в Технопарк Щелково . Объект скоро освободится. Успейте забронировать на выгодных условиях. Готовность ко въезду уточняется по запросу. Направление: Восток. Шоссе: Фряновское, Щелковское. Расстояние от МКАД: 18 км. ...
    • 1/2 эт.
    8 047 055 Р
    Агент
    +7 (915) Показать номер
    Посмотреть контакты
    Склад в Московская область, Щелково Заречная ул., 153к5 (6037 м) - Фото 1
    Склад в Московская область, Щелково Заречная ул., 153к5 (6037 м) - Фото 2
    Уникальный номер помещения.Аренда помещения от собственника (без комиссии);Арендные каникулы, скидки и индивидуальные улучшения - все обсуждается;Помещение находится на огороженной и охраняемой территории;Транспортная доступность: Щёлковское (А-103) ш.Удаленность...
    • 1/3 эт.
    8 049 067 Р
    Агент
    +7 (980) Показать номер
    Посмотреть контакты
    Склад в Московская область, Щелково Заречная ул., 153к3 (6037 м) - Фото 1
    Склад в Московская область, Щелково Заречная ул., 153к3 (6037 м) - Фото 2
    Отапливаемый склад в аренду от собственника без комиссии. Класс A. Объявление актуально. Охраняемая территория. 20 км от МКАД. Никаких скрытых платежей. Открыты к диалогу по условиям аренды. ID объекта 925. Добавьте в избранное, чтобы не потерять Общая...
    • 1/1 эт.
    8 049 067 Р
    Агент
    +7 (915) Показать номер
    Посмотреть контакты
    Склад в Московская область, Щелково Заречная ул., 153к6 (6036 м) - Фото 1
    Склад в Московская область, Щелково Заречная ул., 153к6 (6036 м) - Фото 2
    Номер ЛОТА: 2447. Предлагается к аренде складской комплекс класса А+, общей площадью 6036.8м2. Состоит из: 1 этaж cклaд 4917м2 2 этaж мeзонин 881.4м23 этaж мeзонин 238.4м2Доковые ворота - 6 шт.Ворота нулевой уровень - 1 шт.Ворота на пандусе - 2 шт.Высота...
    • 1/1 эт.
    8 048 000 Р
    Агент
    +7 (923) Показать номер
    Посмотреть контакты

    Не нашли подходящего объявления?

    Оставьте заявку, и наши риэлторы подберут склад в районе Щелково

    (0)