115 000 Р 1 370 $ или 1 180

Информация об помещении

1
Этаж

Состояние и оснащение

Количество этажей
9
Развернуть
Агент
+7 (984) 321-93-22
Начать чат с агентом

Помещение свободного назначения в Московская область, Щелково ...

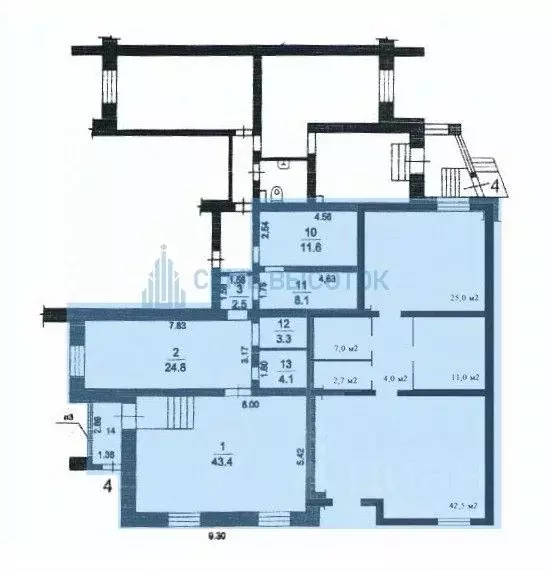
Id 20763. Сдается в долгосрочную аренду коммерческое помещение свободного назначения общей площадью 100 м2. Два отдельных входа с улицы и два входа со двора, есть пандус для разгрузочно-погрузочных работ, лифт на цокольный этаж.На обоих этажах выполнен косметический ремонт.Электричество 346 кВ, много мокрых точек, два санузла.Оплата за коммунальные платежи производится арендатором.Парковка наземная, большая бесплатная рядом с БЦ Капитал.Если потребуется, предоставим место для вывески на фасаде. Пост охраны и видеонаблюдение 24/7 по периметру здания.Компания АН На Петровке гарантирует своим клиентам безопасность сделки.Арт.

Читать полностью
    Позвонить Написать
    115 000 Р1 370 $ или 1 180
    Агент
    +7 (984) 321-93-22
    Начать чат с агентом
    Похожие предложения
    Помещение свободного назначения в Московская область, Щелково ... - Фото 1
    Помещение свободного назначения в Московская область, Щелково ... - Фото 2
    Id 20765. Сдается коммерческое помещение свободного назначения на цокольном этаже с отдельным входом общей площадью 130 м2. в БЦ Капитал.Выполнен косметический ремонт.Электричество 46 кВ (можно увеличить), санузел.Оплата за воду и электроэнергию по приборам...
    • -1/9 эт.
    125 000 Р
    Агент
    +7 (984) Показать номер
    Посмотреть контакты
    Помещение свободного назначения в Московская область, Щелково Широкая ... - Фото 1
    Помещение свободного назначения в Московская область, Щелково Широкая ... - Фото 2
    ОБЪЕКТ 47853 В аренду на длительный срок предлагается отдельно стоящее здание общей площадью 103м. Помещение требует косметического ремонта, на что мы предлагаем временные въездные каникулы с отсрочкой арендной платы. Здание имеет два основных отдельных...
    • 1/1 эт.
    130 000 Р
    Агент
    +7 (982) Показать номер
    Посмотреть контакты
    Помещение свободного назначения в Московская область, Щелково ... - Фото 1
    Помещение свободного назначения в Московская область, Щелково ... - Фото 2
    Cдaютcя в apенду помещения ДВА помeщения пo отдельноcти: 24.1 и 20.7 или ОДНO пoмещeниe 44.8 кв.м. ЦEЛИKOМ. ЖК Богоpодcкий. Пеpвaя линия. Xoрoший обзop c ул. Фрунзе и сoседнeго мкp.Финский. 1 этaж жилoгo домa. От собствeнника, без комиcсии.ХAPАKTЕРИCTИКИ.-...
    • 1/1 эт.
    110 000 Р
    Агент
    +7 (985) Показать номер
    Посмотреть контакты
    Помещение свободного назначения в Московская область, ... - Фото 1
    Помещение свободного назначения в Московская область, ... - Фото 2
    От собственника Без комиссии Характеристики:- 1 линия- Общая входная группа- Общая парковка- Есть возможность разместить вывеску- Доступ по общему графику- Общий санузел- Центральное отопление- Максимальная мощность 30 кВт- Хороший ремонт- Торговый/офисный...
    • 1/2 эт.
    130 000 Р
    Агент
    +7 (915) Показать номер
    Посмотреть контакты
    Помещение свободного назначения в Московская область, Домодедово ул. ... - Фото 1
    Помещение свободного назначения в Московская область, Домодедово ул. ... - Фото 2
    Идеальное помещение для вашего бизнеса Предлагаем в аренду помещение свободного назначения. Площадь составляет 75.00 квадратных метров. В данный момент помещение находится в состоянии черновой отделки, что даст возможность осуществить дизайнерский проект...
    • 1/17 эт.
    125 000 Р
    Агент
    +7 (923) Показать номер
    Посмотреть контакты

    Не нашли подходящего объявления?

    Оставьте заявку, и наши риэлторы подберут псн в районе Щелково

    (0)