143 300 000 Р 1 887 400 $ или 1 609 000

Информация об помещении

1
Этаж

Состояние и оснащение

Количество этажей
1
Развернуть
Агент
+7 (938) 656-74-88
Начать чат с агентом

Помещение свободного назначения в Московская область, Щелково ...

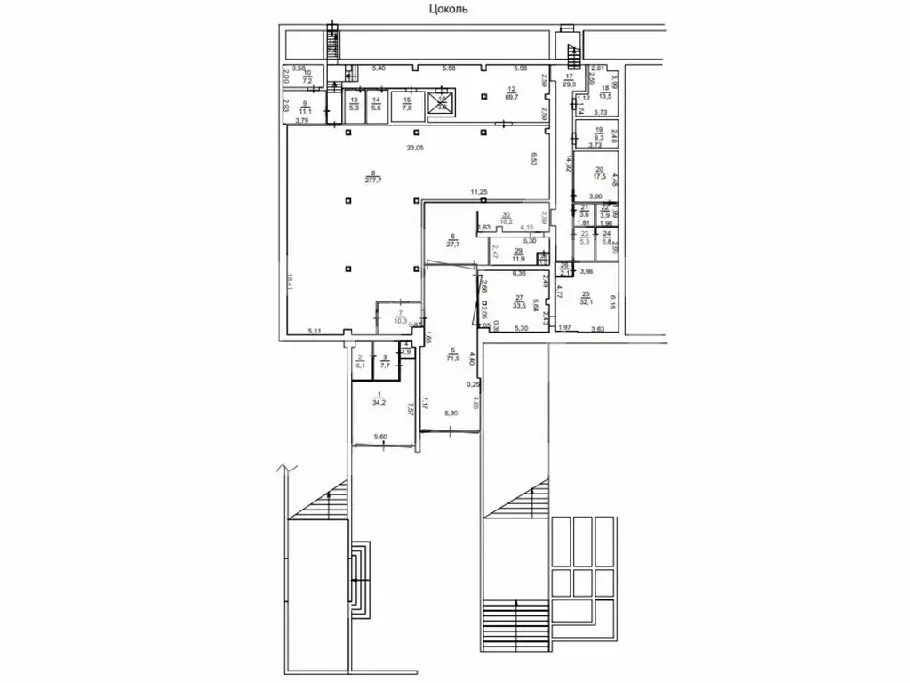
1075428-wf . Предлагается складское здание общей площадью 1 433 кв. м в г. Щелково, на территории Опытного завода.Преимущества:Огороженная охраняемая территория, въезд по пропускам через КПП.Земельный участок под строением выделяется в собственность.Центральная канализация, водоснабжение - скважина, отопление от газовой котельной.Тепловые завесы над воротами.Полы с антипылевым покрытием.Хорошая транспортная доступность.Рядом остановки общественного транспорта.Технические характеристики:Общая площадь: 1433 кв. м.Количество ворот: 2 на уровне 0 Рабочая высота потолка: 8 метров, в коньке - 11.Электрическая мощность: 50 кВт, с возможностью увеличения.Прямой представитель собственника. Без комиссии.Возможно увеличение площади за счет соседних складов.

Читать полностью
    Позвонить Написать
    143 300 000 Р1 887 400 $ или 1 609 000
    Агент
    +7 (938) 656-74-88
    Начать чат с агентом
    Похожие предложения
    Помещение свободного назначения в Московская область, Щелково ... - Фото 1
    Помещение свободного назначения в Московская область, Щелково ... - Фото 2
    1075428 . Предлагается складское здание общей площадью 1 433 кв. м в г. Щелково, на территории Опытного завода.Преимущества:Огороженная охраняемая территория, въезд по пропускам через КПП.Земельный участок под строением выделяется в собственность.Центральная...
    • 1/1 эт.
    143 300 000 Р
    Агент
    +7 (938) Показать номер
    Посмотреть контакты
    Помещение свободного назначения в Московская область, Ленинский ... - Фото 1
    Помещение свободного назначения в Московская область, Ленинский ... - Фото 2
    Продается помещение свободного назначения на 1 этаже в ЖК Богдановский лес, В класса, который находится по адресу: г. Видное, д. Богданиха, ул. Ленина, д. 119. Без комиссии для покупателя ЛОКАЦИЯ:- Ближайшие станции м. Красногвардейская, Зябликово, Шипиловская.-...
    • 1/12 эт.
    131 829 815 Р
    Агент
    +7 (989) Показать номер
    Посмотреть контакты
    Помещение свободного назначения в Московская область, Дмитровский ... - Фото 1
    Помещение свободного назначения в Московская область, Дмитровский ... - Фото 2
    Продажа производственно-складского помещения 1056 кв.м в ГлазовоВысота: 6 м.Нагрузка на пол: 5 т/кв.мСрок сдачи 4 квартал 2025гВАЖНОпрямая продажа от собственникаСтоимость указана с учётом НДСОСНОВНЫЕ ХАРАКТЕРИСТИКИ- Площадь 1056 кв.м- Помещение трёхэтажное-...
    • 1/3 эт.
    137 280 000 Р
    Агент
    +7 (923) Показать номер
    Посмотреть контакты
    Помещение свободного назначения в Московская область, Коломна наб. ... - Фото 1
    Помещение свободного назначения в Московская область, Коломна наб. ... - Фото 2
    643095-gab . Предлагаем торговый центр с сетевыми надежными арендаторами Аптека Апрель, Чижик, Вайлдберриз, Озон, Табачная лавка, Кофе поинт, аппарат с игрушками, Бристоль, Фикс Прайс, Смарт, площадью 2 478 кв. м., расположенный в г. Коломна. Без комиссии...
    • 1/2 эт.
    150 000 000 Р
    Агент
    +7 (938) Показать номер
    Посмотреть контакты
    Помещение свободного назначения в Московская область, Подольск Красная ... - Фото 1
    Помещение свободного назначения в Московская область, Подольск Красная ... - Фото 2
    Возможно, вы искали: Коммерческая недвижимость в Москве, Коммерческая недвижимость в Подольске, Коммерческое помещение в жилом комплексе, Коммерция ЖК Онегин, Купить коммерческую недвижимость в Подольск, Купить коммерческую недвижимость ЖК Онегин, Нежилое...
    • 1/22 эт.
    143 090 080 Р
    Агент
    +7 (980) Показать номер
    Посмотреть контакты

    Не нашли подходящего объявления?

    Оставьте заявку, и наши риэлторы подберут псн в районе Щелково

    (0)