14 500 000 Р 176 500 $ или 152 600

Информация о коттедже

187 м2
Площадь
2
Этажность
18 cоток
Участок

Дополнительная информация

Дом продаётся вместе с участком
есть
Развернуть
Агент
+7 (985) 528-20-20
Начать чат с агентом

Дом в Московская область, Серпухов городской округ, Академпарк кп бул. ...

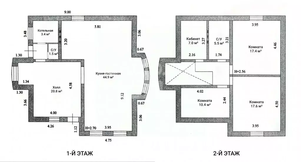
Продается готовый дом с коммуникациями для круглодичной жизни и отдыха -Уч. 18 соток ровной формы расположен в тупиковой зоне КП Академ Парк-2 (с.Тульчино, Серпуховской район)в непосредственной близости к большому лесному массиву.- На участке 2-этажный жилой дом из бруса и маленький 18 кв летний (можно использовать как гостевой, летнюю кухню, можно переделать в баню).ДОМ:Брус 22 см. О.п. 187 кв, 2024 год фундамент, коробка, 2025 - внутренние работы. Все коммуникации заведены в дом ( септик, скважина, электричество)1 этаж - 112 кв.м: терасса, холл, спальни — 16, 16, 12 кв.м., кухня- гостиная — 40кв.м.,совм.санузел— 12кв.м., веранда из гостиной- 30 кв.м., фундамент под печь/камин. Потолки-2.7Окна Rehau. Отопление — конвекторы.Вода заведена в дом, скважина 47 метров, греющий кабель.Канализация септик, станция очистки. Пол утеплен, ламинат. Лаги обработаны антисептиком. Имеется один люк.Кухня: электропанель, кухонный гарнитур, диван.Спальни: новые диваны, комоды. Ванная комната: сантехника, бойлер 200л. 2 этаж мансарда 65 кв.м. Пол утеплен, черновой настил фанера. Под финишную отделку. Свободное пространство. Крыша утеплена, гидроизоляция, ветрозащита, водоотводы. Дом новый. Строили для себя. Продаем в связи с переездом из Москвы. КОММУНИКАЦИИ:Артезианская скважина 47 м с кессоном.Септик 320 литров.Накопительный бак для воды 200 литров.Электричество - 15 кВт.УЧАСТОК:Выровненный участок. Состоит из двух зон: 6 соток ижс, 12 соток сельхоз.Имеется строительная бытовка. Есть уличный туалет. На участке сосны, ели и березы, Сельхоз земля - без насаждений.Также есть еще 2 соседних участка по 18 соток без строений. При желании можно приобрести дом с участком 18, 36 или 54 сотки.О ПОСЕЛКЕ:Коттеджный поселок Академ-Парк 2. Работает доставка из маркетплейсов, доставка пиццы, а так же такси Въезд через шлагбаум. В посёлке дежурит круглосуточная охрана, имеются видеокамеры наблюдения.К/п очень спокойный, дружелюбный и безопасный . Посёлок находится на возвышении берега реки Оки с прекрасным видом, до реки всего 1 км. Асфальтированная дорога до самого дома.В посёлке -детская площадка, волейбольная площадка и футбольное поле, зона барбекю и отдыха. Ухоженная территория с соснами и березами. Дороги зимой чистятся. ИНФРАСТРУКТУРА:В 4 км, в г. Пущино есть вся городская инфраструктура: д/сады, школы, развивающие и спортивные центры, бассейн, банки, поликлиника и больница, большой выбор продуктовых магазинов. ЛОКАЦИЯ:Красивое, экологически чистое место для семейного отдыха и проживания За р. Ока - 49 км территории Приокско-Террасного заповедника. Рядом нет никаких промышленных объектов и производств. Экология - огромное преимущество этого поселка От МКАД до посёлка можно добраться за 50 мин по скоростной трассе М2 без единого светофора (1,5 часа при пробках).В 4 км- г. Пущино. В 25 км- г. Серпухов.До Пущино можно доехать на автобусе от Москвы или от Серпухова.1 взрослый собственник. Документы оформлены.

Читать полностью

    Для того, чтобы купить 2-этажный коттедж по адресу: Звездный бульвар, 159, позвоните по телефону +7 (985) 528-20-20. Торопитесь! Объявление №50016889924 о продаже двухэтажного коттеджа опубликовано Вчера.

    Позвонить Написать
    14 500 000 Р176 500 $ или 152 600
    Агент
    +7 (985) 528-20-20
    Начать чат с агентом
    Похожие предложения
    Дом в Московская область, Серпухов городской округ, Саят-Нова вилладж ... - Фото 1
    Дом в Московская область, Серпухов городской округ, Саят-Нова вилладж ... - Фото 2
    1 этаж, общая площадь 130м², участок 10 соток

    Коттеджный посёлок бизнес класса Саят-Нова Вилладж Всего 46 домовладений охрана, видеонаблюдение, уличное освещение и асфальтированные дороги.Предлагаем коттедж с предчистовой отделкой:-высокие потолки и панорамное широкоформатное остекление; -тёплый...
    • 1 эт.
    • 130 м²
    • 10 сот.
    15 025 000 Р
    Агент
    +7 (916) Показать номер
    Посмотреть контакты
    Дом в Московская область, Серпухов городской округ, д. Всходы 502 (120 ... - Фото 1
    Дом в Московская область, Серпухов городской округ, д. Всходы 502 (120 ... - Фото 2
    1 этаж, общая площадь 120м², участок 6 соток

    Коттеджный посёлок бизнес класса Саят-Нова Вилладж всего 46 домовладений :охрана, видеонаблюдение, уличное освещение и асфальтированные дороги. Предлагаем коттедж с предчистовой отделкой высокие потолки и панорамное широкоформатное остекление; тёплый...
    • 1 эт.
    • 120 м²
    • 6 сот.
    14 260 000 Р
    Агент
    +7 (916) Показать номер
    Посмотреть контакты
    Дом в Московская область, Серпухов городской округ, СНТ Мартьяново ТСН ... - Фото 1
    Дом в Московская область, Серпухов городской округ, СНТ Мартьяново ТСН ... - Фото 2
    2 этажа, общая площадь 73м², участок 10 соток

    Объект 4954. Продается 2-этажный жилой дом по адресу: Московская область, г.о. Серпуховский район, д. Мартьяново.Легко купить:- один собственник,- более 9 лет в собственности,- подходит под ипотеку,- сертификат,- материнский капитал,- быстрый выход на...
    • 2 эт.
    • 73 м²
    • 10 сот.
    14 500 000 Р
    Агент
    +7 (985) Показать номер
    Посмотреть контакты
    Дом в Московская область, Серпухов городской округ, д. Васильевское 54 ... - Фото 1
    Дом в Московская область, Серпухов городской округ, д. Васильевское 54 ... - Фото 2
    2 этажа, общая площадь 134м², участок 6 соток

    МОНОЛИТНЫЙ ДОМ С ГАЗОМ, ВСЕ КОММНУКАЦИИ, МЕБЕЛЬ, ПРОПИСКА, ИНФРАСТРУКТУРА ОДИН ИЗ ЛУЧШИХ ВАРИАНТОВ В ЛОКАЦИИ • Прочный монолитный теплый дом • Небольшой островок леса на участке • Тупиковый подъезд с асфальтом до участка • Дом готов к проживанию: качественный...
    • 2 эт.
    • 134 м²
    • 6 сот.
    15 300 000 Р
    Агент
    +7 (923) Показать номер
    Посмотреть контакты
    2 этажа, общая площадь 182м², участок 10 соток

    Арт.Ищете идеальное место для комфортной жизни и активного отдыха? Продается просторный дом в живописном поселке Петрухино-клуб — ваш личный оазис на природе, где каждый день наполнен возможностями для приключений и релакса Удобный съезд на Москву по...
    • 2 эт.
    • 182 м²
    • 10 сот.
    15 000 000 Р
    Агент
    +7 (985) Показать номер
    Посмотреть контакты

    Не нашли подходящего объявления?

    Оставьте заявку, и наши риэлторы подберут купить дом в районе Серпуховского района

    (0)