7 750 000 Р 102 600 $ или 87 790

Информация о квартире

60 м2
Площадь
33 м2
Жилая
12 м2
Кухня
2
Комнаты
12
Этаж
16
Этажность
Развернуть
Агент
+7 (906) 560-81-27
Начать чат с агентом

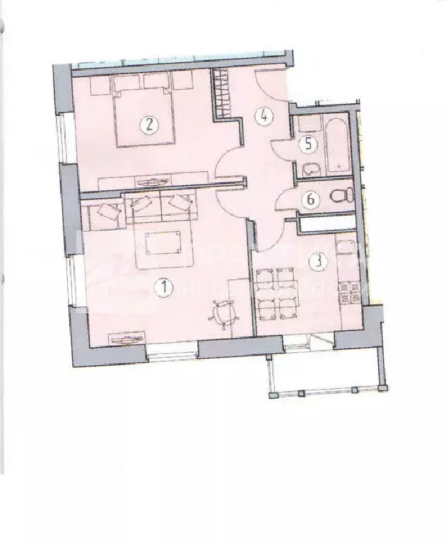
2-комнатная квартира: Серпухов, Юбилейная улица, 6 (60.3 м)

Код объекта: 2120775.Уникальное предложение на рынке недвижимости — двухкомнатная квартира в живописном районе Серпухова Просторная квартира общей площадью 60,3 кв. м расположена на 12 этаже 16-этажного панельного дома, построенного в 2010 году.Изолированные комнаты, окна выходят на улицу и двор, создают комфортное пространство для жизни.Большая кухня 12 кв.м., гостиная 20 м и спальня 13,5 м, отдельная большая гардеробная. Квартира с ремонтом от застройщика. Отличная планировка, распашонка, есть лоджия, раздельный санузей. В доме грузовой и пассажирский лифты.Наземная парковка обеспечит удобное место для вашего автомобиля.Рядом находятся школы и детские сады. В шаговой доступности расположены магазины, клиники, аквапарк и фитнес-клубы.Свободная продажа, 1 взрослый собственник, без обременений. Не упустите возможность стать владельцем этой замечательной квартиры Позвоните нам прямо сейчас, чтобы узнать больше и записаться на просмотр. Мы гарантируем безопасную сделку и юридическую поддержку нашим Клиентам. Поможем одобрить ипотеку с сниженной ставкой.

Читать полностью

    Для того, чтобы купить двухкомнатную квартиру по адресу: Серпухов, ул. Юбилейная, 6, позвоните по телефону +7 (906) 560-81-27. Торопитесь! Объявление №30094908106 о продаже двухкомнатной квартиры опубликовано 13 апреля 2026.

    Позвонить Написать
    7 750 000 Р102 600 $ или 87 790
    Агент
    +7 (906) 560-81-27
    Начать чат с агентом
    Похожие предложения
    2-к кв. Московская область, Серпухов Юбилейная ул., 6 (60.3 м) - Фото 1
    2-к кв. Московская область, Серпухов Юбилейная ул., 6 (60.3 м) - Фото 2
    2-комнатная квартира, общая площадь 60м², жилая 33м², кухня 12м²

    Код объекта: 2120775.Уникальное предложение на рынке недвижимости — двухкомнатная квартира в живописном районе Серпухова Просторная квартира общей площадью 60,3 кв. м расположена на 12 этаже 16-этажного панельного дома, построенного в 2010 году.Изолированные...
    • 60 м²
    • 2-ком
    • 12/16 эт.
    • панельный
    7 750 000 Р
    Агент
    +7 (986) Показать номер
    Посмотреть контакты
    Продается 2-комнатная квартира - Фото 1
    Продается 2-комнатная квартира - Фото 2
    2-комнатная квартира, общая площадь 50м², жилая 30м², кухня 8м²

    Продается двухкомнатная квартира в пяти минутах ходьбы от центра г. Одинцово. Частично сделан ремонт: новая электропроводка, лоджия 4,5 кв м застеклена, заменены стеклопакеты, испанская плитка. В шаговой доступности военный госпиталь и зона отдыха - парк...
    • 50 м²
    • 2-ком
    • 6/9 эт.
    7 900 000 Р
    Агент
    +7 (985) Показать номер
    Посмотреть контакты
    Продается 2-комнатная квартира - Фото 1
    Продается 2-комнатная квартира - Фото 2
    2-комнатная квартира, общая площадь 45м², жилая 28м², кухня 6м²

    Номер объекта: 600008. Продаётся уютная двухкомнатная квартира на вторичном рынке, расположенная на 4 этаже 9-этажного дома. Общая площадь квартиры составляет 45.20 квадратных метров, из них кухня занимает 6 квадратных метров. Этот вариант является очень...
    • 45 м²
    • 2-ком
    • 4/9 эт.
    7 700 000 Р
    Агент
    +7 (985) Показать номер
    Посмотреть контакты
    Продается студия - Фото 1
    Продается студия - Фото 2
    общая площадь 30м², жилая 20м², кухня 5м²

    СТИЛЬНАЯ КВАРТИРА В ЖК ОДИНЦОВСКИЙ ПАРК. О КВАРТИРЕ : -Общая площадь 30,5м2; -ДИЗАЙНЕРСКИЙ ремонт выполнен из высококачественных материалов; -ЗАСТЕКЛЕННАЯ лоджия; -Квартира укомплектована мебелью и техникой( все остается новому собственнику); -Пространство...
    • 30 м²
    • 21/22 эт.
    7 700 000 Р
    Агент
    +7 (926) Показать номер
    Посмотреть контакты
    Продается 2-комнатная квартира - Фото 1
    Продается 2-комнатная квартира - Фото 2
    2-комнатная квартира, общая площадь 50м², жилая 31м², кухня 8м²

    Код объекта: 1968458.Продается светлая 2-комнатная квартира в новом шикарном ЖК Митино О2 .Уникальное предложение для тех, кто ищет комфортное жильё в живописном районе Подмосковья Описание квартиры Квартира расположена на третьем этаже восьмиэтажного...
    • 50 м²
    • 2-ком
    • 3/9 эт.
    7 825 000 Р
    Агент
    +7 (499) Показать номер
    Посмотреть контакты

    Не нашли подходящего объявления?

    Оставьте заявку, и наши риэлторы подберут квартиру в районе Серпухова

    (0)