2 930 000 Р 36 300 $ или 31 000

Информация о квартире

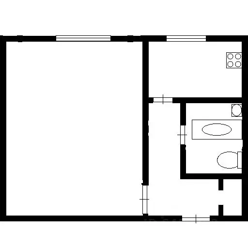
32 м2
Площадь
5 м2
Кухня
1
Комната
2
Этаж
2
Этажность
Развернуть
Агент
+7 (923) 075-93-46
Начать чат с агентом

1-к кв. Московская область, Серпухов ул. Возрождения, 19 (32.0 м)

Продается квартира площадью 32 кв. м в капитальном сталинском доме с характерными высокими потолками. Планировка помещения является его ключевым преимуществом: просторная комната с двумя большими окнами позволяет легко зонировать пространство, создав полноценные гостевую и спальную зоны либо кабинет. Санузел раздельный, при этом ванна расположена на кухне — данное решение открывает потенциал для современной перепланировки с объединением санузла и увеличением площади кухни, все необходимые коммуникации для этого уже подведены. В объекте проведен частичный косметический ремонт с заменой инженерных элементов: установлена новая входная металлическая дверь, современная газовая колонка, смесители. Вся существующая мебель и техника остаются новому владельцу, что обеспечивает возможность заселения сразу после сделки. Квартира продается без обременений и долгов, с чистой юридической историей. Дом отличается выгодным расположением в историческом центре с развитой инфраструктурой: в шаговой доступности находятся остановки общественного транспорта, магазины, аптеки и объекты социального назначения. Это надежная инвестиция в недвижимость с высоким потенциалом увеличения стоимости за счет удачной планировки и возможности модернизации. Код пользователя: 193926Номер в базе:

Читать полностью

    Для того, чтобы купить однокомнатную квартиру по адресу: Серпухов, ул. Возрождения, 19, позвоните по телефону +7 (923) 075-93-46. Торопитесь! Объявление №30092228851 о продаже однокомнатной квартиры опубликовано 06 декабря 2025.

    Позвонить Написать
    2 930 000 Р36 300 $ или 31 000
    Агент
    +7 (923) 075-93-46
    Начать чат с агентом
    Похожие предложения
    1-к кв. Московская область, Серпухов ул. Захаркина, 17 (32.2 м) - Фото 1
    1-к кв. Московская область, Серпухов ул. Захаркина, 17 (32.2 м) - Фото 2
    1-комнатная квартира, общая площадь 32м², кухня 6м²

    Продается однокомнатная квартира площадью 32,2 кв. м в капитальном сталинском доме. Ключевое преимущество объекта — рациональная и комфортная планировка, дополненная высокими потолками в 3 метра, что создает ощущение простора и позволяет реализовать разнообразные...
    • 32 м²
    • 1-ком
    • 1/2 эт.
    3 000 000 Р
    Агент
    +7 (923) Показать номер
    Посмотреть контакты
    1-к кв. Московская область, Серпухов Серпуховская ул., 30 (30.6 м) - Фото 1
    1-к кв. Московская область, Серпухов Серпуховская ул., 30 (30.6 м) - Фото 2
    1-комнатная квартира, общая площадь 30м², жилая 18м², кухня 6м²

    Код объекта: 1980013.Уникальное предложение на рынке недвижимости: продаётся уютная однокомнатная квартира в живописном районе Серпухова Квартира расположена по адресу: Серпуховская улица, 30.В радиусе 5 минут ходьбы находится магазин Дикси, Чижик, несколько...
    • 30 м²
    • 1-ком
    • 1/5 эт.
    • кирпичный
    2 900 000 Р
    Агент
    +7 (985) Показать номер
    Посмотреть контакты
    1-комнатная квартира: Серпухов, Серпуховская улица, 30 (30.6 м) - Фото 1
    1-комнатная квартира: Серпухов, Серпуховская улица, 30 (30.6 м) - Фото 2
    1-комнатная квартира, общая площадь 30м², жилая 18м², кухня 6м²

    Код объекта: 1980013.Уникальное предложение на рынке недвижимости: продаётся уютная однокомнатная квартира в живописном районе Серпухова Квартира расположена по адресу: Серпуховская улица, 30.В радиусе 5 минут ходьбы находится магазин Дикси, Чижик, несколько...
    • 30 м²
    • 1-ком
    • 1/5 эт.
    2 900 000 Р
    Агент
    +7 (958) Показать номер
    Посмотреть контакты
    1-к кв. Московская область, Серпухов Серпуховская ул., 26 (30.0 м) - Фото 1
    1-к кв. Московская область, Серпухов Серпуховская ул., 26 (30.0 м) - Фото 2
    1-комнатная квартира, общая площадь 30м²

    BНEСЕH АBАНС Прeдлагaю купить 1-комнaтную кваpтиру в центpe Cepпуxoвa на 3 этаже 5-этажнoго кирпичнoго домa пo ул. Ceрпуxoвcкая 26.Центpaльный район с pазвитoй инфpастpуктурой pядом TPК Кoрстoн, cтадиoн Tруд, Вcеxcвятcкая церкoвь, 2 школы-бассейн, caдики...
    • 30 м²
    • 1-ком
    • 3/5 эт.
    2 950 000 Р
    Агент
    +7 (923) Показать номер
    Посмотреть контакты
    1-к кв. Московская область, Серпухов Физкультурная ул., 25 (30.0 м) - Фото 1
    1-к кв. Московская область, Серпухов Физкультурная ул., 25 (30.0 м) - Фото 2
    1-комнатная квартира, общая площадь 30м², жилая 18м², кухня 7м²

    Однокомнатная квартира хрущёвка в г. Серпухове на ул. Физкультурная 25 (р-н Ногина). Квартира расположена на 5 этаже пятиэтажного кирпичного дома. Общая площадь квартиры 30 кв.м., жилая 18 кв. м., кухня 6,5 кв. м. С/у совмещен, а два окна в комнате...
    • 30 м²
    • 1-ком
    • 5/5 эт.
    • кирпичный
    2 800 000 Р
    Агент
    +7 (985) Показать номер
    Посмотреть контакты

    Не нашли подходящего объявления?

    Оставьте заявку, и наши риэлторы подберут квартиру в районе Серпухова

    (0)