80 000 000 Р 1 010 700 $ или 871 100

Состояние и оснащение

Количество этажей
2
Развернуть
Агент
+7 (985) 025-60-34
Начать чат с агентом

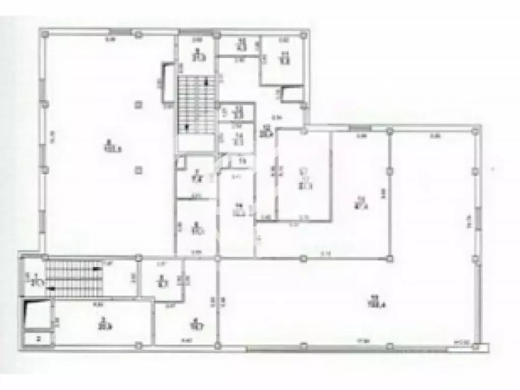
Помещение свободного назначения (616.4 м)

id:1411. Продается коммерческое здание с земельным участком в собственности, в городе Сергиев Посад. Идеальный актив для пассивного дохода или масштабирования своего дела.Ключевые характеристики:Площадь здания:616,4 кв.м (2 этажа).Земельный участок:18,24 сотки в собственности.Коммуникации:Электричество 50 кВт, центральное водоснабжение, канализация, отопление.Текущее состояние:100 сдача в аренду. Вы получаете прибыль с первого дня после сделки.Преимущества объекта:Пассивный доход:Не нужно искать арендаторов — здание уже приносит прибыль. Отличный вариант для сохранения и приумножения капитала.Выгодная локация:Отличная транспортная доступность. Остановка общественного транспорта в 300 метрах. Ж/д и автовокзал в пешей доступности (12-15 минут пешком, 4-5 минут на машине).Потенциал роста:Даже при текущей арендной ставке, расчетная окупаемость составляет всего 9 лет. Для коммерческой недвижимости в историческом центре Подмосковья это отличный показатель.Надёжность:Объект в собственности более 5 лет. Юридическая чистота гарантирована.Перспективы использования:Помимо сохранения арендного бизнеса, объект отлично подойдет под:Офисный центр;Медицинский центр или частную клинику;Бизнес-центр с собственным парком (благодаря большому участку);Автомойка или Автотехцентр.Звоните для организации просмотра Упустите это предложение — следующего может и не быть

Читать полностью
    Позвонить Написать
    80 000 000 Р1 010 700 $ или 871 100
    Агент
    +7 (985) 025-60-34
    Начать чат с агентом
    Похожие предложения
    Помещение свободного назначения в Московская область, Сергиев Посад ... - Фото 1
    Помещение свободного назначения в Московская область, Сергиев Посад ... - Фото 2
    Продажа коммерческого помещения с арендатором Арендатор: супермаркет Магнит, ресторан грузинской кухниПлощадь: 504 м2Мощность электросети: 170 кВтДоговор на 10 лет от октября 2024 г.Алкогольная лицензия получена Участок и помещение в собственностиАрендный...
    • 1/1 эт.
    79 900 000 Р
    Агент
    +7 (915) Показать номер
    Посмотреть контакты
    Помещение свободного назначения в Московская область, Солнечногорск ... - Фото 1
    Помещение свободного назначения в Московская область, Солнечногорск ... - Фото 2
    1132628. Складское помещение общей площадью 550,1 кв. м. в индустриальном парке Есипово-2. Корпус В.Преимущества:Комплекс складских помещений категории Лайт Индастриал.32 км от МКАД по Ленинградскому шоссе, вблизи трассы А-107 и ЦКАД.Развитая транспортная...
    • 1/2 эт.
    79 000 000 Р
    Агент
    +7 (938) Показать номер
    Посмотреть контакты
    Помещение свободного назначения в Московская область, Красногорск ... - Фото 1
    Помещение свободного назначения в Московская область, Красногорск ... - Фото 2
    1131928. Предлагаем к приобретению помещение свободного назначения, площадью 937,9 кв. м., расположенное на цокольном этаже жилого дома в г. Красногорск. Без комиссии для покупателя.Преимущества объекта: -6 минут пешком до станции Красногорская (D2),...
    • -1/12 эт.
    80 000 000 Р
    Агент
    +7 (938) Показать номер
    Посмотреть контакты
    Помещение свободного назначения в Московская область, Лыткарино 3-й ... - Фото 1
    Помещение свободного назначения в Московская область, Лыткарино 3-й ... - Фото 2
    642933. Предлагаем отдельно стоящее торговое здание с якорным арендатором - супермаркетом Пятёрочка , площадью 750 кв. м. Без комиссии для покупателя.Преимущества объекта:-15 минут на автомобиле от станции метро Котельники;-объект отлично просматривается,...
    • 1/2 эт.
    80 000 000 Р
    Агент
    +7 (938) Показать номер
    Посмотреть контакты
    Помещение свободного назначения в Московская область, Красногорск ... - Фото 1
    Помещение свободного назначения в Московская область, Красногорск ... - Фото 2
    1074539. Предлагаем к приобретению помещение свободного назначения в ЖК Квартал Строгино с арендатором кофейня Здрасте , площадью 100.57 кв. м, расположенное на первом этаже 24-этажного жилого дома. Без комиссии для покупателя. Преимущества объекта:-ЖК...
    • 1/24 эт.
    79 000 000 Р
    Агент
    +7 (938) Показать номер
    Посмотреть контакты

    Не нашли подходящего объявления?

    Оставьте заявку, и наши риэлторы подберут псн в районе Сергиева Посада

    (0)