7 500 000 Р 92 610 $ или 79 300

Информация о квартире

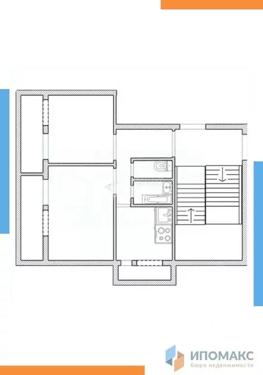
42 м2
Площадь
26 м2
Жилая
6 м2
Кухня
2
Комнаты
4
Этаж
5
Этажность

Дополнительная информация

Тип дома
кирпичный
Развернуть
Агент
+7 (933) 936-19-41
Начать чат с агентом

2-к кв. Московская область, Наро-Фоминский городской округ, Селятино ...

Арт.Идеальный вариант для комфортной жизни Свободная продажа, 2 собственника.О квартире:Общая площадь: 42.2 мЭтаж: 4 из 5, кирпичный домПланировка: Две изолированные комнаты (14 м и 12 м), раздельный санузел.Ремонт: Качественный современный ремонт под тапочки . Натяжные потолки. Вся мебель и техника остаются новым хозяевам — заезжайте и живите Балконы: Две застекленные лоджии в комнатах и балкон на кухне. Вид на зеленый массив, что обеспечивает квартире много света и уютную атмосферу.Планировка и особенности:Простая кухня: 6 мКомната 1: 14 м с застекленной лоджиейКомната 2: 12 м с застекленной лоджиейРаздельный санузелБалкон: на кухне (не застеклен)Инфраструктура развита идеально — всё в шаговой доступности:Для детей: детская площадка во дворе, современная школа, муниципальные и частные детские сады.Для здоровья: поликлиника, стоматология, аптеки, спортивный комплекс, ледовый дворец.Для покупок: торговые центры, сетевые магазины Магнит , Дикси , Пятерочка , Лента и др.Для отдыха: парк Мечта , кафе и рестораны.Транспортная доступность — быстро до Москвы:Ж/д станция Селятино в 10 минутах пешком.До Москвы на электричке — 25-30 минут до Киевского вокзала.На автомобиле до м. Саларьево по скоростному Киевскому шоссе — около 30 минут.Документы и условия:В собственности у 2 взрослых человека.Свободная продажа (без обременений).Без использования материнского капитала.Возможен оперативный выход на сделку.

Читать полностью

    Для того, чтобы купить двухкомнатную квартиру по адресу: Селятино, Спортивная улица, 39, позвоните по телефону +7 (933) 936-19-41. Торопитесь! Объявление №30091031502 о продаже двухкомнатной квартиры опубликовано 2 дня назад.

    Позвонить Написать
    7 500 000 Р92 610 $ или 79 300
    Агент
    +7 (933) 936-19-41
    Начать чат с агентом
    Похожие предложения
    2-к кв. Московская область, Наро-Фоминский городской округ, Селятино ... - Фото 1
    2-к кв. Московская область, Наро-Фоминский городской округ, Селятино ... - Фото 2
    2-комнатная квартира, общая площадь 51м², жилая 28м², кухня 8м²

    ПРОДАЕТСЯ Хороший дом, цена и состояние Большая утепленная лоджия Уютная светлая квартира в поселке Селятино Удобное транспортное сообщение с Москвой. Школы, сады, ТЦ , поликлиника, все рядом в 5-7 минутах. Прямая свободная продажа, более 5 лет...
    • 51 м²
    • 2-ком
    • 3/9 эт.
    • кирпичный
    7 599 000 Р
    Агент
    +7 (923) Показать номер
    Посмотреть контакты
    2-к кв. Московская область, Наро-Фоминский городской округ, Селятино ... - Фото 1
    2-к кв. Московская область, Наро-Фоминский городской округ, Селятино ... - Фото 2
    2-комнатная квартира, общая площадь 48м², жилая 30м², кухня 7м²

    Арт.Продается уютная 2-ух комнатная квартира, расположенная на 3 этаже 9-этажного кирпичного дома. Общей площадью 48,8 м2, жилая площадь 30,1 м2, изолированные комнаты 18,2 и 11,9 м2, кухня 7,2 м2, застекленная лоджия; с/узелаздельный. В квартире сделан...
    • 48 м²
    • 2-ком
    • 3/9 эт.
    • кирпичный
    7 600 000 Р
    Агент
    +7 (986) Показать номер
    Посмотреть контакты
    2-комнатная квартира: Селятино, 41 (42.2 м) - Фото 1
    2-комнатная квартира: Селятино, 41 (42.2 м) - Фото 2
    2-комнатная квартира, общая площадь 42м², жилая 26м², кухня 6м²

    Арт.Идеальный вариант для комфортной жизни Свободная продажа, 2 собственника. О квартире:Общая площадь: 42.2 мЭтаж: 4 из 5, кирпичный домПланировка: Две изолированные комнаты (14 м и 12 м), раздельный санузел.Ремонт: Качественный современный ремонт «под...
    • 42 м²
    • 2-ком
    • 4/5 эт.
    7 500 000 Р
    Агент
    +7 (966) Показать номер
    Посмотреть контакты
    Квартира, 2 комнаты, 42.2 м - Фото 1
    Квартира, 2 комнаты, 42.2 м - Фото 2
    2-комнатная квартира, общая площадь 42м², кухня 6м²

    Арт.Идеальный вариант для комфортной жизни Свободная продажа, 2 собственника.О квартире:Общая площадь: 42.2 мЭтаж: 4 из 5, кирпичный домПланировка: Две изолированные комнаты (14 м и 12 м), раздельный санузел.Ремонт: Качественный современный ремонт под...
    • 42 м²
    • 2-ком
    • 4/5 эт.
    • кирпичный
    7 500 000 Р
    Агент
    +7 (933) Показать номер
    Посмотреть контакты
    1-к кв. Московская область, Апрелевка Наро-Фоминский городской округ, ... - Фото 1
    1-к кв. Московская область, Апрелевка Наро-Фоминский городской округ, ... - Фото 2
    1-комнатная квартира, общая площадь 45м², жилая 14м², кухня 16м²

    Арт.Мечтаете о своей идеальной квартире для семьи или проживания с домашними животными ?В ЖК Весна ( г.Апрелевка) ваша мечта станет реальностью Близость к Москве по привлекательной цене.ЖК Весна - это комплекс комфорт-класса в экологически чистом...
    • 45 м²
    • 1-ком
    • 4/9 эт.
    7 600 000 Р
    Агент
    +7 (984) Показать номер
    Посмотреть контакты

    Не нашли подходящего объявления?

    Оставьте заявку, и наши риэлторы подберут квартиру в районе Селятино

    (0)