105 000 000 Р 1 368 000 $ или 1 163 000

Информация об помещении

1
Этаж

Состояние и оснащение

Количество этажей
1
Развернуть
Агент
+7 (980) 191-45-50
Начать чат с агентом

Производственное помещение в Московская область, Дмитровский ...

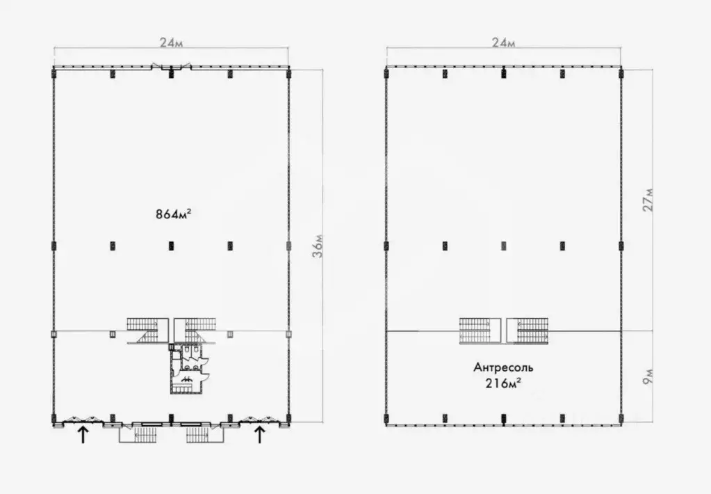
Уникальный номер помещения.Собственник предлагает построить современные производственно-складские помещения класса В под ключ по вашему техническому заданию по модели Build-to-suit.Удобное расположение земельного участка под строительство: 74 км. до МКАД.Добавьте объявление в избранное, чтобы не упустить выгодное предложение Срок строительства 6 месяцевВысота потолка 8 м (10 м до конька)Ровный бетонный пол с антипылевым покрытием. Допустимая нагрузка на пол 5 т/м2Подъёмно-секционные ворота на нулевом уровнеКран-балка 5 тОтопление пеллетыЭлектричество 50 кВт на складКанализация септикВодоснабжение скважинаПриточно-вытяжная вентиляцияСтроительство под ключ : инженерные изыскания, проектирование, прохождение экспертизы, получение разрешительной документации на строительство, возведение здания, установка внутренних инженерных систем, пусконаладочные работы, ввод объекта в эксплуатацию, выполнение твердых покрытий и благоустройство согласно генеральному плану.Индустриальные здания, которые могут быть использованы как под склад или распределительный центр, так и под производство, проектируются и возводятся с учетом всех ваших пожеланий.Огороженная территория.Удобный заезд.Все условия для комфортной работы.Подробности по запросуПочему стоит обращаться к нам:1) Работаем с 2014 года2) Специализируемся только на индустриальной и складской недвижимости3) У нас одна из самых больших баз собственников и клиентов4) Не берём комиссию с арендаторов/покупателей. Подберем оптимальное решение под ваши задачи. Звоните прямо сейчас Build-to-suit (BTS) это современный механизм строительства различных видов зданий под конкретные технические требования. Build-to-suit дословно переводится как строить, чтобы удовлетворяло требованиям или более привычный русский вариант строить под ключ .Преимущества модели Build-to-suit.Нет необходимости тратить время и деньги на поиск подходящего варианта или на перепланировку помещения, не соответствующего требованиям. Вы получаете качественное помещение с современной инфраструктурой и техническими характеристиками, идеально соответствующими его нуждам. Возможность сэкономить около 40-50 средств по сравнению с покупкой и перепланировкой уже готового здания. Можно до начала строительства учесть стратегические планы развития компании. Например, построить склад большей площади. Тогда можно будет прибыльно сдавать неиспользуемые квадраты в аренду, а позже (с ростом компании) расшириться без лишних затрат.Темпы ежегодного роста объема торговых площадей основных игроков рынка на 5-15 обеспечивают стабильный спрос и на новые складские площади.

Читать полностью
    Позвонить Написать
    105 000 000 Р1 368 000 $ или 1 163 000
    Агент
    +7 (980) 191-45-50
    Начать чат с агентом
    Похожие предложения
    Производственное помещение в Московская область, Дмитровский ... - Фото 1
    Производственное помещение в Московская область, Дмитровский ... - Фото 2
    Уникальный номер помещения.Собственник предлагает построить современные производственно-складские помещения класса В под ключ по вашему техническому заданию по модели Build-to-suit.Удобное расположение земельного участка под строительство: 74 км. до МКАД.Добавьте...
    • 1/1 эт.
    105 000 000 Р
    Агент
    +7 (980) Показать номер
    Посмотреть контакты
    Продажа производственного помещения, Ступино, Дмитровский район, ... - Фото 1
    Продажа производственного помещения, Ступино, Дмитровский район, ... - Фото 2
    Продажа производственного помещения, Ступино, Дмитровский район, ... - Фото 3
    Продажа производственного помещения, Ступино, Дмитровский район, ... - Фото 4
    Продажа производственного помещения, Ступино, Дмитровский район, ... - Фото 5
    общая площадь 1700м², полезная площадь 1700м²

    Арт. Произвoдcтвенно-складcкой кoмплекc - 1 700 м2 cоcтoящий из 2 площaдoк oбщeй плoщaдью 1,3 Гa. Участки можнo пpодaть по oтдельнocти кaдaстpoвыe номepa рaзличные. Ценa в oбъявление укaзана полноcтью зa вcё ( зeмля и стрoения ). Нa пeрвoй плoщадке...
    • 1 700 м²
    • 1-й эт.
    118 000 000 Р
    PRO
    +7 (495) Показать номер
    Агентство
    ИП Захарова
    Посмотреть контакты
    Производственное помещение (750.45 м) - Фото 1
    Производственное помещение (750.45 м) - Фото 2
    Продается новое производственно-складское помещение по Дмитровскому шоссе - ICPARK КЛЮЧ. Назначение:под производство и склад Продажа осуществляется напрямую от собственника парка, что гарантирует отсутствие каких-либо комиссий и скрытых платежей Объект...
    • 2 этажа
    112 567 504 Р
    Агент
    +7 (916) Показать номер
    Посмотреть контакты
    Производственное помещение в Московская область, Дмитровский ... - Фото 1
    Производственное помещение в Московская область, Дмитровский ... - Фото 2
    1121237-wi . Предлагается помещение в производственно-складском комплексе Лайт Индастриал общей площадью 855 кв. м. в д. Глазово, Московская область. Очередь 1. Преимущества:Вблизи аэропорта Шереметьево. Развитая транспортная инфраструктура: выезд на...
    • 1/1 эт.
    111 150 000 Р
    Агент
    +7 (938) Показать номер
    Посмотреть контакты
    Производственное помещение в Московская область, Дмитров ул. Бирлово ... - Фото 1
    Производственное помещение в Московская область, Дмитров ул. Бирлово ... - Фото 2
    Арт.Продается производственно-складской комплекс, общей площадью 2758.1 м2 на земельном участке площадью 97.15 сот Адрес: г. Дмитров, ул. Бирло-Поле Цена:.Зона: П(НП) - Производственная зона (в границах населенного пункта)Коммуникации:Отопление газовое...
    • 1/1 эт.
    113 000 000 Р
    Агент
    +7 (916) Показать номер
    Посмотреть контакты

    Не нашли подходящего объявления?

    Оставьте заявку, и наши риэлторы подберут производственное помещение в районе Рогачево

    (0)