360 000 000 Р 4 677 000 $ или 3 999 500

Информация об помещении

1
Этаж

Состояние и оснащение

Количество этажей
3
Развернуть
Агент
+7 (938) 656-74-88
Начать чат с агентом

Производственное помещение в Московская область, Реутов Транспортная ...

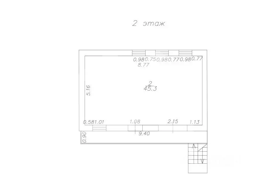
763474. Предлагается складской комплекс общей площадью 3 872 кв. м. в гор. Реутов.Преимущества:Развитая транспортная инфраструктура, шоссе Энтузиастов и МКАД в 4 км.10 минут на автомобиле от ст. Никольское и Новокосино .Сложившееся торгово-промышленное окружение.На территории комплекса расположены объекты складского назначения, офисный блок, административное здание.Ведется строительство быстровозводимого складского здания из металлоконструкций + одно здание в проекте.Каждый объект недвижимости обеспечен электро/тепло/водоснабжением и водоотведением в соответствии с проектной документацией.Газовая котельная, обустроенная артезианская скважина.Зона загрузки/выгрузки грузов.По границе объекта примыкают 2 железнодорожные ветки.Огороженная территория, КПП.Парковка на территории комплекса.Категория земель - земли населенных пунктов. Разрешенный вид использования под размещение и строительство производственно-складской базы.Технические характеристики:КПП для охраны: 1, 2 этаж, площадь ~ 12 кв. м.Складское здание: 1, 2, 3 этаж, площадь 1 481 кв. м.Высота потолков на 1 этаже: 6 м, на 2 этаже: 4,8 м.Вспомогательное офисно-складское здание: 1 этаж, площадь 454 кв. м.Административно-хозяйственное здание: 1, 2, 3 этаж, площадь 925 кв. м.Земельный участок площадью 4 925 кв. м.

Читать полностью
    Позвонить Написать
    360 000 000 Р4 677 000 $ или 3 999 500
    Агент
    +7 (938) 656-74-88
    Начать чат с агентом
    Похожие предложения
    Производственное помещение в Московская область, Реутов Транспортная ... - Фото 1
    Производственное помещение в Московская область, Реутов Транспортная ... - Фото 2
    763474. Предлагается складской комплекс общей площадью 3 872 кв. м. в гор. Реутов.Преимущества:Развитая транспортная инфраструктура, шоссе Энтузиастов и МКАД в 4 км.10 минут на автомобиле от ст. Никольское и Новокосино .Сложившееся торгово-промышленное...
    • 1/3 эт.
    360 000 000 Р
    Агент
    +7 (938) Показать номер
    Посмотреть контакты
    Производственное помещение в Московская область, Реутов Транспортная ... - Фото 1
    Производственное помещение в Московская область, Реутов Транспортная ... - Фото 2
    763474. Предлагается складской комплекс общей площадью 3 872 кв. м. в гор. Реутов.Преимущества:Развитая транспортная инфраструктура, шоссе Энтузиастов и МКАД в 4 км.10 минут на автомобиле от ст. Никольское и Новокосино .Сложившееся торгово-промышленное...
    • 1/3 эт.
    360 000 000 Р
    Агент
    +7 (938) Показать номер
    Посмотреть контакты
    Продажа производственного помещения, Кашира, Каширский район, ул. ... - Фото 1
    Продажа производственного помещения, Кашира, Каширский район, ул. ... - Фото 2
    Продажа производственного помещения, Кашира, Каширский район, ул. ... - Фото 3
    Продажа производственного помещения, Кашира, Каширский район, ул. ... - Фото 4
    Продажа производственного помещения, Кашира, Каширский район, ул. ... - Фото 5
    Продажа производственного помещения, Кашира, Каширский район, ул. ... - Фото 6
    Продажа производственного помещения, Кашира, Каширский район, ул. ... - Фото 7
    Продажа производственного помещения, Кашира, Каширский район, ул. ... - Фото 8
    Продажа производственного помещения, Кашира, Каширский район, ул. ... - Фото 9
    Продажа производственного помещения, Кашира, Каширский район, ул. ... - Фото 10
    Продажа производственного помещения, Кашира, Каширский район, ул. ... - Фото 11
    Продажа производственного помещения, Кашира, Каширский район, ул. ... - Фото 12
    Продажа производственного помещения, Кашира, Каширский район, ул. ... - Фото 13
    общая площадь 3500м², полезная площадь 3500м²

    Арт. Адрес объекта отсутствует на Яндекс картах, поэтому указан ближайший. Точный адрес: Московская обл., Каширский р-н, район ст.Пурлово. Имущественный комплекс. Земельный участок промназначения 11,7 га, с ж/д тупиком. Возможна покупка прилегающей...
    • 3 500 м²
    • 1-й эт.
    350 000 000 Р
    PRO
    +7 (499) Показать номер
    Агентство
    МИЭЛЬ
    Посмотреть контакты
    Продажа производственного помещения, Пушкинский район - Фото 1
    Продажа производственного помещения, Пушкинский район - Фото 2
    Продажа производственного помещения, Пушкинский район - Фото 3
    Продажа производственного помещения, Пушкинский район - Фото 4
    Продажа производственного помещения, Пушкинский район - Фото 5
    Продажа производственного помещения, Пушкинский район - Фото 6
    Продажа производственного помещения, Пушкинский район - Фото 7
    Продажа производственного помещения, Пушкинский район - Фото 8
    Продажа производственного помещения, Пушкинский район - Фото 9
    Продажа производственного помещения, Пушкинский район - Фото 10
    Продажа производственного помещения, Пушкинский район - Фото 11
    Продажа производственного помещения, Пушкинский район - Фото 12
    Продажа производственного помещения, Пушкинский район - Фото 13
    Продажа производственного помещения, Пушкинский район - Фото 14
    общая площадь 4380м², полезная площадь 4380м²

    Арт. Продается производственный комплекс общей площадью - 4380 кв.м . Площадь земельного участка - 7 321 кв.м. Площадь производственных помещений - 3 780 кв.м. Площадь офисно-бытовой части - 600 кв.м. Помещения с ровными бетонными полами, освещением,...
    • 4 380 м²
    • 1-й эт.
    352 000 000 Р
    PRO
    +7 (495) Показать номер
    Агентство
    ИП Захарова
    Посмотреть контакты
    Продажа производственного помещения, Дедовск, Истринский район, 1-я ... - Фото 1
    Продажа производственного помещения, Дедовск, Истринский район, 1-я ... - Фото 2
    Продажа производственного помещения, Дедовск, Истринский район, 1-я ... - Фото 3
    Продажа производственного помещения, Дедовск, Истринский район, 1-я ... - Фото 4
    Продажа производственного помещения, Дедовск, Истринский район, 1-я ... - Фото 5
    Продажа производственного помещения, Дедовск, Истринский район, 1-я ... - Фото 6
    общая площадь 5903м², полезная площадь 5903м²

    Арт. Продажа. Производственно-складское здание. Под производство или склад. Общая площадь 5902,9 кв.м; 1-этажное; неотапливаемое; Год постройки – 2013. Габаритны здания 108 м х 54 м; Конструктив здания - сэндвич-панель + металл, металл. перекрытия; Здание...
    • 5 903 м²
    • 1-й эт.
    350 000 000 Р
    PRO
    +7 (495) Показать номер
    Агентство
    ИП Захарова
    Посмотреть контакты

    Не нашли подходящего объявления?

    Оставьте заявку, и наши риэлторы подберут производственное помещение в районе Реутова

    (0)