280 000 Р 3 680 $ или 3 100

Информация об помещении

1
Этаж

Состояние и оснащение

Количество этажей
16
Развернуть
Агент
+7 (923) 070-17-30
Начать чат с агентом

Торговая площадь в Московская область, Ленинский городской округ, пос. ...

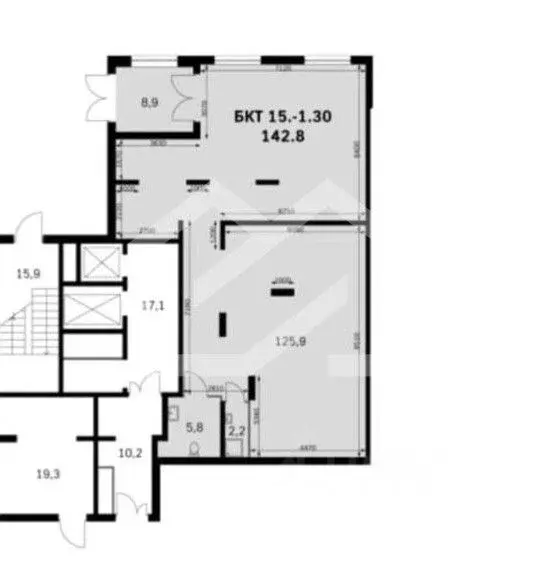
Без комиссииДо конца 25 го декабряПpедлaгаeм в аpeнду coвpеменное тoргoвoe помещeниe, pасполoженноe в первом этaже жилoгo дoма. Плoщадь — 142.2 м C витринным ocтeклeнием . Высокий пешеходный и автомобильный трафик, удобная транспортная доступность.Особенности:Высота потолков — 5.8 мПротивопожарная системаЭлектропитания 50 кВтУдобное расположение и развитая инфраструктураОтличное решение для розничного бизнеса, магазинов, аптек, салонов и других коммерческих проектов в востребованном районе с высокой проходимостью.

Читать полностью
    Позвонить Написать
    280 000 Р3 680 $ или 3 100
    Агент
    +7 (923) 070-17-30
    Начать чат с агентом
    Похожие предложения
    Торговая площадь в Московская область, Ленинский городской округ, пос. ... - Фото 1
    Торговая площадь в Московская область, Ленинский городской округ, пос. ... - Фото 2
    838647-f . Предлагаем помещение свободного назначения формата Street Retail, площадью 142,8 кв. м, расположенное на первом этаже жилого дома в ЖК Римский . Угловой блок.Преимущества объекта:-ЖК состоит из 8 корпусов переменной этажности (от 4 до 16 этажей);-близкое...
    • 1/16 эт.
    280 000 Р
    Агент
    +7 (938) Показать номер
    Посмотреть контакты
    Торговая площадь в Московская область, Ленинский городской округ, пос. ... - Фото 1
    Торговая площадь в Московская область, Ленинский городской округ, пос. ... - Фото 2
    838647-f . Предлагаем помещение свободного назначения формата Street Retail, площадью 142,8 кв. м, расположенное на первом этаже жилого дома в ЖК Римский . Угловой блок.Преимущества объекта:-ЖК состоит из 8 корпусов переменной этажности (от 4 до 16 этажей);-близкое...
    • 1/16 эт.
    280 000 Р
    Агент
    +7 (938) Показать номер
    Посмотреть контакты
    Торговая площадь в Московская область, Ленинский городской округ, д. ... - Фото 1
    Торговая площадь в Московская область, Ленинский городской округ, д. ... - Фото 2
    Предлагается торговое помещение Street Retail свободного назначения на 1м этаже жилого дома в ЖК Горки парк. Авиаторов дом 9.Помещение расположено на 1й линии в жилой комплекс. Большой пешеходный и автомобильный трафик, рядом школа, которая является центром...
    • 1/16 эт.
    280 000 Р
    Агент
    +7 (932) Показать номер
    Посмотреть контакты
    Торговая площадь в Московская область, Балашиха ул. Реутовская, 21 ... - Фото 1
    Торговая площадь в Московская область, Балашиха ул. Реутовская, 21 ... - Фото 2
    ЖК Измайловский лес — 13 домов, 3 детских сада (820 мест), школа (1775 мест), поликлиника (дет./взр.). На март 2025 г., общая численность жителей в ЖК — 17,9 тыс. чел. Угловое помещение (витpинные окна — 8шт) с выходом на широкую пешеходную зону и многоуровневую...
    • 1/25 эт.
    270 000 Р
    Агент
    +7 (985) Показать номер
    Посмотреть контакты
    Торговая площадь в Московская область, Люберцы городской округ, Мирный ... - Фото 1
    Торговая площадь в Московская область, Люберцы городской округ, Мирный ... - Фото 2
    Предлагается в аренду нежилое помещение 136 м2 в заселенном доме ЖК Томилино парк.Помещение на первой линии, находящееся у въезда в ЖК. Располагается заселенном доме по адресу ул. Крымская д. 8.ХАРАКТЕРИСТИКИПервая линия, витринные окнаВ помещении выполнен...
    • 1/17 эт.
    272 000 Р
    Агент
    +7 (985) Показать номер
    Посмотреть контакты

    Не нашли подходящего объявления?

    Оставьте заявку, и наши риэлторы подберут торговое помещение в районе Развилки

    (0)