338 000 Р 4 430 $ или 3 700

Информация об помещении

1
Этаж

Состояние и оснащение

Количество этажей
17
Развернуть
Агент
+7 (916) 443-03-49
Начать чат с агентом

Торговая площадь в Московская область, Ленинский городской округ, пос. ...

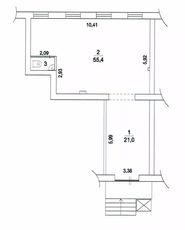
Помещение в аренду для вашего бизнеса.Помещение свободной планировки на 1м этаже 18ти этажного дома, площадь 135,9 кв м, высокие потолки - 4 метра, что делает помещение просторным, витринное остекление.Выгодная локация на первой линии домов и трафика образующее соседство с Пятерочкой и Здравсити .ЖК Римский - современный и больше семейный, сейчас в жилом комплексе проживает более 5000 жителей, в дальнейшем планируется при полном заселении порядка 7000 жителей. Успейте занять самое популярное место.

Читать полностью
    Позвонить Написать
    338 000 Р4 430 $ или 3 700
    Агент
    +7 (916) 443-03-49
    Начать чат с агентом
    Похожие предложения
    Торговая площадь в Московская область, Ленинский городской округ, пос. ... - Фото 1
    Торговая площадь в Московская область, Ленинский городской округ, пос. ... - Фото 2
    1081494-f . Предлагаем помещение свободного назначения формата street-retail в ЖК Римский , площадью 121.7 кв. м, расположенное на первом этаже 18-этажного жилого дома. Преимущества объекта:-ЖК состоит из 7 корпусов переменной этажности (от 4 до 16 этажей),...
    • 1/18 эт.
    350 000 Р
    Агент
    +7 (938) Показать номер
    Посмотреть контакты
    Торговая площадь в Московская область, Ленинский городской округ, пос. ... - Фото 1
    Торговая площадь в Московская область, Ленинский городской округ, пос. ... - Фото 2
    Предлагается в аренду коммерческое помещение 201,3 м на первом этаже в сформированном жилом комплексе Южная Битца (Московская область, Ленинский г.о., пос. Битца, Южный б-р, 4). Локация с устойчивым потоком покупателей: ЖК полностью заселён, ремонты...
    • 1/25 эт.
    350 000 Р
    Агент
    +7 (985) Показать номер
    Посмотреть контакты
    Торговая площадь в Московская область, Мытищи Трудовая ул., 29 (79 м) - Фото 1
    Торговая площадь в Московская область, Мытищи Трудовая ул., 29 (79 м) - Фото 2
    Аренда торгового помещения 78,85 м2 в новом ЖК Долина Яузы , ул. Трудовая, д.29 (20 минут транспортом от метро Медведково). 1 линия домов.Помещение 78,85 м2, располагается на 1 этаже, открытая планировка, отдельный вход с фасада, высота потолка 4 м,...
    • 1/25 эт.
    350 000 Р
    Агент
    +7 (916) Показать номер
    Посмотреть контакты
    Торговая площадь в Московская область, Красногорск Ильинское ш., 6 ... - Фото 1
    Торговая площадь в Московская область, Красногорск Ильинское ш., 6 ... - Фото 2
    Лот 153642.Сдаётся помещение свободного назначения на первом этаже по адресу: МО, г. Красногорск, Ильинское ш., дом 6.В непосредственной близости находится выход из D2 Павшино.Помещение находится на первом этаже 17-ти этажного жилого дома. Первая линия.Густонаселенный...
    • 1/17 эт.
    350 000 Р
    Агент
    +7 (985) Показать номер
    Посмотреть контакты
    Торговая площадь в Московская область, Мытищи Мытищи Парк жилой ... - Фото 1
    Торговая площадь в Московская область, Мытищи Мытищи Парк жилой ... - Фото 2
    863839-f . Предлагаем помещение свободного назначения формата Street Retail, площадью 139,4 кв. м., расположенное на первом этаже жилого дома в ЖК Мытищи Парк . Преимущества объекта:-первая линия;-ЖК состоит из 7 корпусов, этажностью от 11 до 17 этажей,...
    • 1/17 эт.
    348 500 Р
    Агент
    +7 (938) Показать номер
    Посмотреть контакты

    Не нашли подходящего объявления?

    Оставьте заявку, и наши риэлторы подберут торговое помещение в районе Развилки

    (0)