232 565 Р 2 920 $ или 2 520

Информация об помещении

1
Этаж

Состояние и оснащение

Количество этажей
17
Развернуть
Агент
+7 (916) 578-91-75
Начать чат с агентом

Помещение свободного назначения в Московская область, Ленинский ...

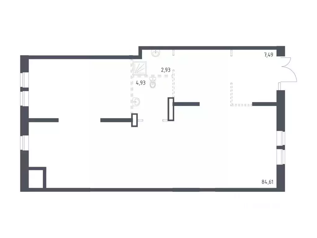
Готовое торговое помещение площадью 149,8 кв.м. в квартале Миловидное. В квартале 2 корпуса, 768 квартир, 2100 жителей. Полностью сдан, идет заселение.Помещение расположено на 1 этаже корпуса 2, вход с улицы. Панорамные витрины, высота потолка 4 метра, мокрая точка. Предусмотрена электрическая мощность 25 кВт.Основные преимущества:- Высота потолка 4 метра- Место для размещения вывески- Отдельный вход- Электрическая мощность 25 кВт

Читать полностью
    Позвонить Написать
    232 565 Р2 920 $ или 2 520
    Агент
    +7 (916) 578-91-75
    Начать чат с агентом
    Похожие предложения
    Помещение свободного назначения в Московская область, Ленинский ... - Фото 1
    Помещение свободного назначения в Московская область, Ленинский ... - Фото 2
    Предлагается в аренду угловое помещение с отличной видимостью и рекламным потенциалом в ЖК Пригород Лесное — один из самых масштабных жилых комплексов в Ленинском городском округе, Московской области от группы Самолет.На участке в 141 га возводится...
    • 1/17 эт.
    220 000 Р
    Агент
    +7 (915) Показать номер
    Посмотреть контакты
    Помещение свободного назначения в Московская область, Ленинский ... - Фото 1
    Помещение свободного назначения в Московская область, Ленинский ... - Фото 2
    Аренда нежилого помещения 99.96 кв. м в проекте Пригород Лесное в строящемся доме 18.Срок сдачи: 4-й квартал 2026 года.Технические характеристики помещения:1-й этаж 1-этажного дома;Витринное остекление - да;Без отделки;Помещение оснащено водоснабжением,...
    • 1/17 эт.
    221 852 Р
    Агент
    +7 (915) Показать номер
    Посмотреть контакты
    Помещение свободного назначения в Московская область, Ленинский ... - Фото 1
    Помещение свободного назначения в Московская область, Ленинский ... - Фото 2
    Помещение 92 м напротив единственной в ЖК поликлиники (и посещений в день) Адрес ул.Современников д.2 ( при строительстве был корпус 13.2.)Жилые корпуса по 17 этажей ,квартиры сдаются с ремонтом - дом быстро заселяется. Плотность населения очень высокая...
    • 1/17 эт.
    230 000 Р
    Агент
    +7 (984) Показать номер
    Посмотреть контакты
    Помещение свободного назначения в Московская область, Одинцовский ... - Фото 1
    Помещение свободного назначения в Московская область, Одинцовский ... - Фото 2
    Коммерческое помещение с ремонтом в аренду на первой линии жилого комплекса в локации с высокой плотностью населения Расположение напротив школы и детского садика.В жилом комплексе более 6000 жителей,большая школа, детский садик гарантированный трафик...
    • 1/9 эт.
    230 000 Р
    Агент
    +7 (923) Показать номер
    Посмотреть контакты
    Помещение свободного назначения в Московская область, Красногорск ... - Фото 1
    Помещение свободного назначения в Московская область, Красногорск ... - Фото 2
    ЛотПредложение от Собственника Предлагается помещение под офис площадью 157.00 м2. Помещение расположено 8 км от г Ильинское. 3 этаж. Система кондиционирования. Пропускная система. Есть круглосуточный доступ. Планировка - кабинетная. Есть лифт. Есть...
    • 3/7 эт.
    222 417 Р
    Агент
    +7 (986) Показать номер
    Посмотреть контакты

    Не нашли подходящего объявления?

    Оставьте заявку, и наши риэлторы подберут псн в районе Развилки

    (0)