37 842 000 Р 483 300 $ или 413 300

Информация об помещении

1
Этаж

Состояние и оснащение

Количество этажей
18
Развернуть
Агент
+7 (938) 656-74-88
Начать чат с агентом

Торговая площадь в Московская область, Ленинский городской округ, пос. ...

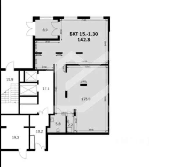
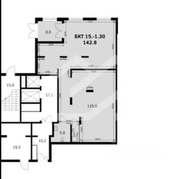
1098986. Предлагаем угловое помещение свободного назначения в ЖК Римский , площадью 142.8 кв. м, расположенное на первом этаже 18-этажного жилого дома. Без комиссии для покупателя.Преимущества объекта:-ЖК состоит из 7 корпусов переменной этажности (от 4 до 16 этажей), рассчитанных на 5 097 квартир;-14 минут на автомобиле от станции метро Шипиловская ;-удобная транспортная доступность: 2.7 км до МКАД, 3 км до Каширского шоссе, 3.7 км до Картинского шоссе, 6.8 км до Володарского шоссе;-плотный жилой массив;-развитая инфраструктура района;-коммерческая инфраструктура разделена от жилой двухуровневой системой организации;-стабильный автомобильный и пешеходный трафик;-отлично просматривается, находится в легком доступе для потенциальных клиентов;-гибкая планировка, позволяющая адаптировать пространство под различные нужды;-современная инженерия;-витринное остекление;-возможность размещения вывески;-подземная парковка.Технические параметры объекта:-отдельный вход;-электрическая мощность: 50 кВт;-высота потолков: 6 м.Свяжитесь с нами для получения дополнительной информации

Читать полностью
    Позвонить Написать
    37 842 000 Р483 300 $ или 413 300
    Агент
    +7 (938) 656-74-88
    Начать чат с агентом
    Похожие предложения
    Торговая площадь в Московская область, Ленинский городской округ, пос. ... - Фото 1
    Торговая площадь в Московская область, Ленинский городской округ, пос. ... - Фото 2
    1098986. Предлагаем угловое помещение свободного назначения в ЖК Римский , площадью 142.8 кв. м, расположенное на первом этаже 18-этажного жилого дома. Без комиссии для покупателя.Преимущества объекта:-ЖК состоит из 7 корпусов переменной этажности (от...
    • 1/18 эт.
    37 842 000 Р
    Агент
    +7 (938) Показать номер
    Посмотреть контакты
    Торговая площадь в Московская область, Ленинский городской округ, пос. ... - Фото 1
    Торговая площадь в Московская область, Ленинский городской округ, пос. ... - Фото 2
    1098986. Предлагаем угловое помещение свободного назначения в ЖК Римский , площадью 142.8 кв. м, расположенное на первом этаже 18-этажного жилого дома. Без комиссии для покупателя.Преимущества объекта:-ЖК состоит из 7 корпусов переменной этажности (от...
    • 1/18 эт.
    37 842 000 Р
    Агент
    +7 (938) Показать номер
    Посмотреть контакты
    Торговая площадь в Московская область, Ленинский городской округ, ... - Фото 1
    Торговая площадь в Московская область, Ленинский городской округ, ... - Фото 2
    Продажа торгового помещения 68 м2 по адресу Московская область, г. Видное, пгт. Дрожжино, ул. Южная, д. 7. Помещение 68 м2 по документам (по факту 100 м2 за счет надстройки антресоли), открытая планировка, отдельный вход с фасада, высота потолка 4 м,...
    • 1/11 эт.
    39 000 000 Р
    Агент
    +7 (916) Показать номер
    Посмотреть контакты
    Торговая площадь в Московская область, Ленинский городской округ, д. ... - Фото 1
    Торговая площадь в Московская область, Ленинский городской округ, д. ... - Фото 2
    Арт.Помещение свободного назначенияЖК Видный Берег 2.0, д. Сапроново, улица Западный квартал 7к2Помещение:•Витринные окна;•Ровная прямоугольная форма, удобная планировка;•Отдельный вход с улицы.Локация:•Густонаселенный жилой массив;•Квартиры продаются...
    • 1/15 эт.
    37 000 000 Р
    Агент
    +7 (916) Показать номер
    Посмотреть контакты
    Торговая площадь в Московская область, Одинцовский городской округ, с. ... - Фото 1
    Торговая площадь в Московская область, Одинцовский городской округ, с. ... - Фото 2
    1011637. Предлагаем помещение свободного назначения, площадью 154 кв. м., расположенное на первом этаже жилого дома в ЖК комфорт-класса Равновесие . Корпус 5. Преимущества объекта:-на въезде в новый комплекс, рядом со входом в супермаркет;-ЖК состоит...
    • 1/6 эт.
    38 500 000 Р
    Агент
    +7 (938) Показать номер
    Посмотреть контакты

    Не нашли подходящего объявления?

    Оставьте заявку, и наши риэлторы подберут торговое помещение в районе Развилки

    (0)