37 842 000 Р 486 400 $ или 417 000

Информация об помещении

1
Этаж

Состояние и оснащение

Количество этажей
18
Развернуть
Агент
+7 (938) 656-74-88
Начать чат с агентом

Торговая площадь в Московская область, Ленинский городской округ, пос. ...

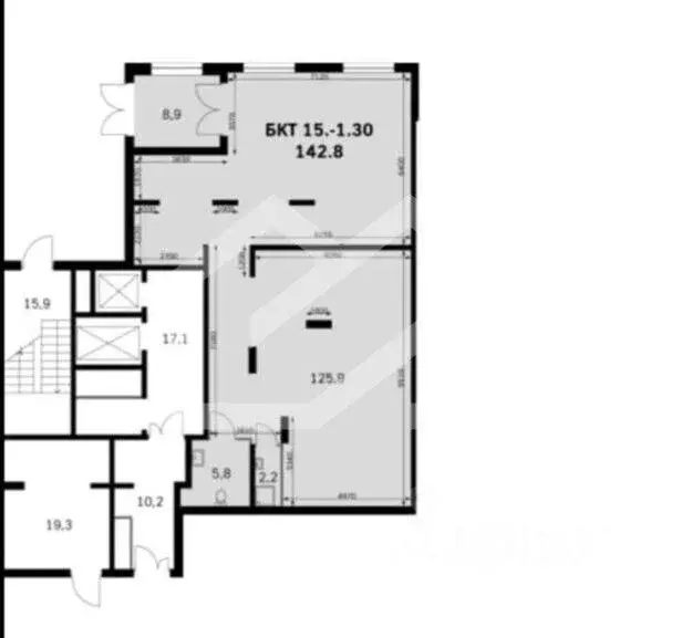
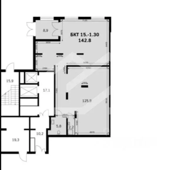
1098986-f . Предлагаем угловое помещение свободного назначения формата street-retail в ЖК Римский , площадью 142.8 кв. м, расположенное на первом этаже 18-этажного жилого дома. Без комиссии для покупателя.Преимущества объекта:-ЖК состоит из 7 корпусов переменной этажности (от 4 до 16 этажей), рассчитанных на 5 097 квартир;-14 минут на автомобиле от станции метро Шипиловская ;-удобная транспортная доступность: 2.7 км до МКАД, 3 км до Каширского шоссе, 3.7 км до Картинского шоссе, 6.8 км до Володарского шоссе;-плотный жилой массив;-развитая инфраструктура района;-коммерческая инфраструктура разделена от жилой двухуровневой системой организации;-стабильный автомобильный и пешеходный трафик;-отлично просматривается, находится в легком доступе для потенциальных клиентов;-гибкая планировка, позволяющая адаптировать пространство под различные нужды;-современная инженерия;-витринное остекление;-возможность размещения вывески;-подземная парковка.Технические параметры объекта:-отдельный вход;-электрическая мощность: 50 кВт;-высота потолков: 6 м.Свяжитесь с нами для получения дополнительной информации

Читать полностью
    Позвонить Написать
    37 842 000 Р486 400 $ или 417 000
    Агент
    +7 (938) 656-74-88
    Начать чат с агентом
    Похожие предложения
    Торговая площадь в Московская область, Ленинский городской округ, пос. ... - Фото 1
    Торговая площадь в Московская область, Ленинский городской округ, пос. ... - Фото 2
    1098986. Предлагаем угловое помещение свободного назначения в ЖК Римский , площадью 142.8 кв. м, расположенное на первом этаже 18-этажного жилого дома. Без комиссии для покупателя.Преимущества объекта:-ЖК состоит из 7 корпусов переменной этажности (от...
    • 1/18 эт.
    37 842 000 Р
    Агент
    +7 (938) Показать номер
    Посмотреть контакты
    Торговая площадь в Московская область, Ленинский городской округ, пос. ... - Фото 1
    Торговая площадь в Московская область, Ленинский городской округ, пос. ... - Фото 2
    Лот 152579.Предлагается в продажу помещение свободного назначения в ЖК Римский квартал, площадью 121,7 кв.м. Объект расположен по адресу: МО, г.о. Ленинский, поселок Развилка, Римский проезд д.15. Помещение имеет прекрасную визуализацию, высокий рекламный...
    • 1/14 эт.
    37 000 000 Р
    Агент
    +7 (985) Показать номер
    Посмотреть контакты
    Торговая площадь в Московская область, Ленинский городской округ, пос. ... - Фото 1
    Торговая площадь в Московская область, Ленинский городской округ, пос. ... - Фото 2
    1098986-f . Предлагаем угловое помещение свободного назначения формата street-retail в ЖК Римский , площадью 142.8 кв. м, расположенное на первом этаже 18-этажного жилого дома. Без комиссии для покупателя.Преимущества объекта:-ЖК состоит из 7 корпусов...
    • 1/18 эт.
    37 842 000 Р
    Агент
    +7 (938) Показать номер
    Посмотреть контакты
    Торговая площадь в Московская область, Ленинский городской округ, пос. ... - Фото 1
    Торговая площадь в Московская область, Ленинский городской округ, пос. ... - Фото 2
    Лот 157214.Предлагается в продажу помещение свободного назначения в ЖК Римский квартал по адресу: МО, г.о. Ленинский, поселок Развилка, Римский проезд д.15. Римский квартал удачно расположен к югу от столицы всего в 2 км от МКАД по Каширскому или Бесединскому...
    • 1/20 эт.
    38 904 600 Р
    Агент
    +7 (985) Показать номер
    Посмотреть контакты
    Торговая площадь в Московская область, Ленинский городской округ, д. ... - Фото 1
    Торговая площадь в Московская область, Ленинский городской округ, д. ... - Фото 2
    Лот 158912.Предлагается в продажу помещение свободного назначения ЖК 1-й Донской, Сапроново, Ленинский г.о.Комплекс состоит из 11 корпусов разной этажности и 4 000 квартир, будет проживать около 10 000 жителей. Первая очередь (корпуса 1 и 2)уже сданы...
    • 1/21 эт.
    37 875 750 Р
    Агент
    +7 (985) Показать номер
    Посмотреть контакты

    Не нашли подходящего объявления?

    Оставьте заявку, и наши риэлторы подберут торговое помещение в районе Развилки

    (0)