12 200 000 Р 161 500 $ или 138 200

Информация о квартире

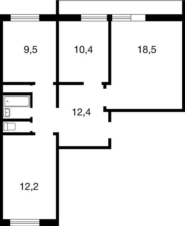
60 м2
Площадь
19 м2
Кухня
2
Комнаты
13
Этаж
17
Этажность
Развернуть
Агент
+7 (989) 363-83-72
Начать чат с агентом

2-комнатная квартира: посёлок Развилка, 52к1 (60.7 м)

Продается Евро 3х-комнатная квартира без отделки в монолитном доме Комфорт класса в ЖК «Миловидное Московская область, Ленинский городской округ, Развилка поселок, дом 52, корпус 1, этаж 13. Общая площадь- 60,7 м2. с учетом лоджии, 59,3 без учета лоджии. жилая - 36,3м2; комнаты - 13,9м2/ 11,4м2/ 11м2; кухня- ниша 6,5 м2;2 санузла Подъезды домов находятся на уровне земли, проходы сквозные.ИнфраструктураСобственная инфраструктура «Миловидного включает детский сад, коммерческие помещений на первых этажах, кафе, супермаркет, пекарня, цветочная лавка. На территории есть паркинг и парковочные карманы.Несмотря на свои скромные размеры, локация достаточно развита с точки зрения инфраструктуры. Местные жители без нужды в Москву не ездят. У них есть свои супермаркеты, торговые комплексы, медицинские центры и поликлиника, салоны красоты и парикмахерские, кафе и рестораны, крупный оздоровительный центр «Дельфин с бассейном и несколько образовательных учреждений. Жители Развилки гордятся своей школой, которая официально считается самой крупной в Подмосковье и входит в топ-300 лучших сельских школ России. Ближайшие станции метро:Домодедовская - 5 км - 15 мин. на машинеЗябликово - 5.5 км - 13 мин. на машинеОдин взрослый собственник. Основание- ДДУ. Полная стоимость в договоре.Свободная продажа.Показ по договоренности.

Читать полностью

    Для того, чтобы купить двухкомнатную квартиру по адресу: Развилка, 52к1, позвоните по телефону +7 (989) 363-83-72. Торопитесь! Объявление №30095090859 о продаже двухкомнатной квартиры опубликовано 2 дня назад.

    Позвонить Написать
    12 200 000 Р161 500 $ или 138 200
    Агент
    +7 (989) 363-83-72
    Начать чат с агентом
    Похожие предложения в Развилке
    Продается 2-комнатная квартира - Фото 1
    Продается 2-комнатная квартира - Фото 2
    2-комнатная квартира, общая площадь 50м², жилая 26м², кухня 6м²

    Код объекта: 2148233.Светлая евро-двушка с отделкой White Box создайте интерьер своей мечтыНовый дом, удобная планировка и комфортная среда для жизни Описание квартирыПродаётся просторная евро-двушка в современном жилом комплексе комфорт-класса.Квартира...
    • 50 м²
    • 2-ком
    • 12/14 эт.
    12 800 000 Р
    Агент
    +7 (499) Показать номер
    Посмотреть контакты
    2-комнатная квартира: посёлок Развилка, Римский проезд, 15 (50 м) - Фото 1
    2-комнатная квартира: посёлок Развилка, Римский проезд, 15 (50 м) - Фото 2
    2-комнатная квартира, общая площадь 50м², жилая 26м², кухня 6м²

    Код объекта: 2148233.Светлая евро-двушка с отделкой White Box — создайте интерьер своей мечтыНовый дом, удобная планировка и комфортная среда для жизни Описание квартирыПродаётся просторная евро-двушка в современном жилом комплексе комфорт-класса.Квартира...
    • 50 м²
    • 2-ком
    • 12/16 эт.
    12 800 000 Р
    Агент
    +7 (966) Показать номер
    Посмотреть контакты
    3-к кв. Московская область, Ленинский городской округ, пос. Развилка ... - Фото 1
    3-к кв. Московская область, Ленинский городской округ, пос. Развилка ... - Фото 2
    3-комнатная квартира, общая площадь 60м², жилая 36м², кухня 20м²

    Продается Евро 3х-комнатная квартира без отделки в монолитном доме Комфорт класса в ЖК Миловидное Московская область, Ленинский городской округ, Развилка поселок, дом 52, корпус 1, этаж 13. Общая площадь- 60,7 м2. с учетом лоджии, 59,3 без учета...
    • 60 м²
    • 3-ком
    • 13/17 эт.
    • монолит
    12 200 000 Р
    Агент
    +7 (989) Показать номер
    Посмотреть контакты
    Квартира, 2 комнаты, 56.7 м - Фото 1
    Квартира, 2 комнаты, 56.7 м - Фото 2
    2-комнатная квартира, общая площадь 56м², кухня 9м²

    п. Развилка, дом 31В. Продается абсолютно новая 2к.квартира с качественным ремонтом, с кухонным гарнитуром. Вид на лес По документам: 1 взрослый собственник, квартира без обременений и долгов, свободная продажа. Инфраструктура очень развитая - всё в...
    • 56 м²
    • 2-ком
    • 8/17 эт.
    13 000 000 Р
    Агент
    +7 (916) Показать номер
    Посмотреть контакты
    Квартира, 3 комнаты, 60.7 м - Фото 1
    3-комнатная квартира, общая площадь 60м², кухня 20м²

    Продается Евро 3х-комнатная квартира без отделки в монолитном доме Комфорт класса в ЖК Миловидное Московская область, Ленинский городской округ, Развилка поселок, дом 52, корпус 1, этаж 13. Общая площадь- 60,7 м2. с учетом лоджии, 59,3 без учета...
    • 60 м²
    • 3-ком
    • 13/17 эт.
    • монолит
    12 200 000 Р
    Агент
    +7 (989) Показать номер
    Посмотреть контакты

    Не нашли подходящего объявления?

    Оставьте заявку, и наши риэлторы подберут квартиру в районе Развилки

    (0)