13 200 000 Р 162 700 $ или 141 300

Информация о квартире

66 м2
Площадь
34 м2
Жилая
12 м2
Кухня
2
Комнаты
16
Этаж
16
Этажность

Дополнительная информация

Тип дома
монолит
Развернуть
Агент
+7 (915) 074-49-03
Начать чат с агентом

2-к кв. Московская область, Ленинский городской округ, пос. Развилка ...

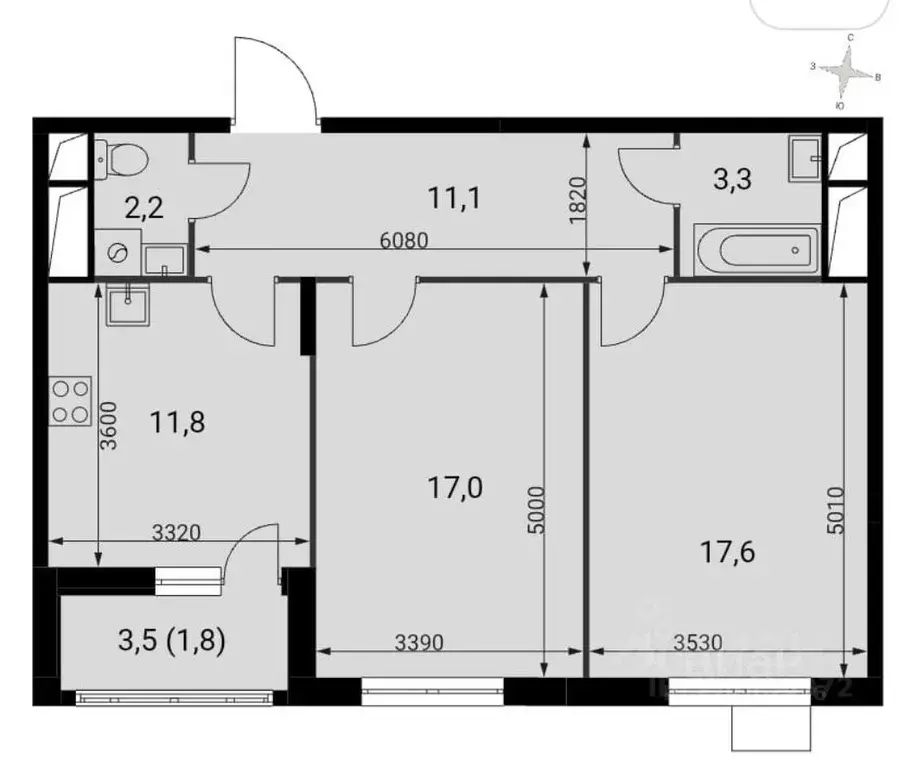
Предлагается Вашему вниманию просторная, видовая двухкомнатная квартира, общей площадью 66,5 м. ( с учетом лоджии) в ЖК Римский - уникальном квартале с изящными фасадами в стиле европейского пригорода по мотивам итальянской архитектуры, где изысканная атмосфера сочетается с продуманным городским пространством.Квартира располагается на последнем 16 этаже, очень светлая и солнечная, а из окон открываются живописные виды.Планировка предполагает 2 изолированные комнаты 17 и 17,6 м., просторную кухню-столовую 11.8 м., два санузла для комфорта большой семье, застекленную лоджию 3,5 м. и коридор-прихожую более 11м. Высота потолков 3 метра.Квартира без отделки - это Ваш шанс воплотить в жизнь любые дизайнерские идеи Пространство легко зонировать, создавая уютную атмосферу.Хорошая транспортная доступность, развитая инфраструктура, закрытый охраняемый двор,азнообразные сетевые магазины рядом с домом, школа и сад в паре минут пешком - идеально для комфортной семейной жизни Для домашних питомцев в подъезде предусмотрена лапомойка, имеется помещение для хранения детских колясок и велосипедов, красивый холл, лифт позволяет спуститься сразу на подземную парковку.Свободная продажа, один взрослый собственник, полная цена в договоре, в квартире никто не прописан, быстрый выход на сделку.

Читать полностью

    Для того, чтобы купить двухкомнатную квартиру по адресу: Развилка, Римский проезд, 15, позвоните по телефону +7 (915) 074-49-03. Торопитесь! Объявление №30094540546 о продаже двухкомнатной квартиры опубликовано 27 марта 2026.

    Позвонить Написать
    13 200 000 Р162 700 $ или 141 300
    Агент
    +7 (915) 074-49-03
    Начать чат с агентом
    Похожие предложения
    2-комнатная квартира: посёлок Развилка, Римский проезд, 15 (50 м) - Фото 1
    2-комнатная квартира: посёлок Развилка, Римский проезд, 15 (50 м) - Фото 2
    2-комнатная квартира, общая площадь 50м², жилая 26м², кухня 6м²

    Код объекта: 2096116. Продаётся уютная 2-комнатная квартира в ЖК Римский Адрес: Россия, Московская область, Ленинский городской округ, посёлок Развилка, Римский проезд, 15. Преимущества: - Свежий воздух и зелёный двор: окна выходят во двор, где можно...
    • 50 м²
    • 2-ком
    • 12/16 эт.
    13 500 000 Р
    Агент
    +7 (966) Показать номер
    Посмотреть контакты
    2-к кв. Московская область, Ленинский городской округ, пос. Развилка ... - Фото 1
    2-к кв. Московская область, Ленинский городской округ, пос. Развилка ... - Фото 2
    2-комнатная квартира, общая площадь 48м², жилая 30м², кухня 6м²

    Вашему вниманию представлена евро 2-х комнатная квартира в ЖК Римский, Бизнес-класс 2025 г.+ 14 этаж, прекрасные видовые характеристики+ удобна евро планировка с большой кухней-гостинной+ ЖК Римский, бизнес-класс 2025 г.+ удобная инфраструктура, зоны...
    • 48 м²
    • 2-ком
    • 14/17 эт.
    • монолит
    12 000 000 Р
    Агент
    +7 (986) Показать номер
    Посмотреть контакты
    1-к кв. Московская область, Ленинский городской округ, пос. Развилка ... - Фото 1
    1-к кв. Московская область, Ленинский городской округ, пос. Развилка ... - Фото 2
    1-комнатная квартира, общая площадь 50м², жилая 26м², кухня 6м²

    Арт.Однокомнатная квартира (евродвушка) комфорт-класса в новом ЖК Римский в Развилке:Удобная планировка: раздельный санузел, лоджия с видом во двор Квартира с отделкой White BoxОдин собственник, сделка прозрачна и безопасна Закрытый двор, два лифта...
    • 50 м²
    • 1-ком
    • 12/16 эт.
    • монолит
    13 500 000 Р
    Агент
    +7 (986) Показать номер
    Посмотреть контакты
    2-к кв. Московская область, Ленинский городской округ, пос. Развилка ... - Фото 1
    2-к кв. Московская область, Ленинский городской округ, пос. Развилка ... - Фото 2
    2-комнатная квартира, общая площадь 66м², кухня 12м²

    Продается просторная 2-комнатная квартира. Идеальный этаж, хороший дом, развитая инфраструктура. Один взрослый собственник. Свободная продажа. Обременений, долгов нет. Зарегистрированных в квартире нет. Оперативный показ. Быстрый выход на сделку.
    • 66 м²
    • 2-ком
    • 10/17 эт.
    12 500 000 Р
    Агент
    +7 (985) Показать номер
    Посмотреть контакты
    2-к кв. Московская область, Ленинский городской округ, пос. Развилка ... - Фото 1
    2-к кв. Московская область, Ленинский городской округ, пос. Развилка ... - Фото 2
    2-комнатная квартира, общая площадь 65м², жилая 36м², кухня 13м²

    Арт.комнатная квартира на 6/17 — заезжай и живи Что получаете:просторную и светлую квартиру с окнами на обе стороны;качественный ремонт — без лишних хлопот;всю мебель и технику — ничего докупать не нужно удобный 6й этаж: хороший напор воды, тихо и вид...
    • 65 м²
    • 2-ком
    • 6/17 эт.
    • панельный
    12 600 000 Р
    Агент
    +7 (967) Показать номер
    Посмотреть контакты

    Не нашли подходящего объявления?

    Оставьте заявку, и наши риэлторы подберут квартиру в районе Развилки

    (0)