180 000 Р 2 230 $ или 1 930

Информация об помещении

1
Этаж

Состояние и оснащение

Количество этажей
2
Развернуть
Агент
+7 (980) 131-03-37
Начать чат с агентом

Помещение свободного назначения в Московская область, Раменское ул. ...

Вашему вниманию предлагается отличное предложение для вашего бизнеса в Раменском Без КОМИССИИ сдаётся коммерческое помещение площадью 121 кв.м на 1 этаже с отдельным входом в многоэтажном жилом доме. В данный момент помещение полностью оборудовано под фитнес - клуб. Но, мы открыты для предложений для любых сфер бизнеса. Помещение имеет два этажа: на первом этаже зоны ресепшен , отдыха и перекуса. По проекту две мокрые точки . Высота потолков 3.3 м. Второй этаж представляет собой два пространства н спортивную зону и раздевалку с санузломи. Помещение светлое, просторное, много окон. Установлены интернет, вентиляция и пожарная сигнализация. Центральное водоснабжение ( холодная и горячая вода), свет- 7 кВт с возможностью увеличения. Представлен план помещения. Вокруг большой жилой район с развитой инфраструктурой: кофейня, стоматология, пекарня, школа, магазины. Рядом находится остановка общественного транспорта. Это помещение - ваш к успешному бизнесу

Читать полностью
    Позвонить Написать
    180 000 Р2 230 $ или 1 930
    Агент
    +7 (980) 131-03-37
    Начать чат с агентом
    Похожие предложения
    Помещение свободного назначения в Московская область, Раменское ... - Фото 1
    Помещение свободного назначения в Московская область, Раменское ... - Фото 2
    Арт.Сдам помещение свободного назначения. Помещение находится на цокольном этаже.Само здание расположено очень удачно. Место нахождение: Московская область, г. Раменское, ул. Красноармейская, д.17.
    • -1/12 эт.
    172 000 Р
    Агент
    +7 (967) Показать номер
    Посмотреть контакты
    Помещение свободного назначения в Московская область, Истра ... - Фото 1
    Помещение свободного назначения в Московская область, Истра ... - Фото 2
    Аренда помещения свободного назначения в строящемся ТЦ по адресу: Московская область, г. о. Истра, деревня Козенки. Собственная парковка на 30 м/м. Ввод объекта в эксплуатацию - апрель 2026 г. Общая площадь помещения 84,3 кв. м, 1 отдельный вход с улицы,...
    • 1/2 эт.
    175 625 Р
    Агент
    +7 (933) Показать номер
    Посмотреть контакты
    Помещение свободного назначения в Московская область, Люберцы Зенино ... - Фото 1
    Помещение свободного назначения в Московская область, Люберцы Зенино ... - Фото 2
    Номер в базе: 9847318.Предлагается в аренду помещение свободного назначения в жк Самолет. Располагается на 1-ом этаже жилого дома на первой линии.Помещение с панорамными окнами и высокими потолками 4.5м. Выделенная электрическая мощность 21 квт, возможно...
    • 1/17 эт.
    175 000 Р
    Агент
    +7 (916) Показать номер
    Посмотреть контакты
    Помещение свободного назначения в Московская область, Наро-Фоминск пл. ... - Фото 1
    Помещение свободного назначения в Московская область, Наро-Фоминск пл. ... - Фото 2
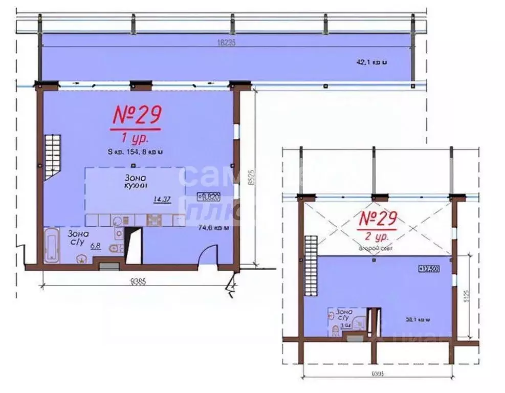
    Арт.Предлагаем в аренду современный лофт 154,8 м для вашего бизнеса, расположенном в самом центре города Бизнес-центр Гермес находится по адресу: Московская область, Наро-Фоминск, площадь Свободы, 4В.О деталях:— 3 этаж;— Лофт 29;— 2 уровня;— 2 месяца...
    • 3/4 эт.
    185 760 Р
    Агент
    +7 (986) Показать номер
    Посмотреть контакты
    Помещение свободного назначения в Московская область, Одинцовский ... - Фото 1
    Помещение свободного назначения в Московская область, Одинцовский ... - Фото 2
    Лот 153246.Аренда помещения свободного назначения на первом этаже жилого дома по адресу: с. Перхушково, ЖК Равновесие корпус 3, секция 5. Общая площадь территории 23 Га. Клубный формат ЖК комфорт класса 4-6 этажей - в общем будет насчитывать 10 500...
    • 1/5 эт.
    190 000 Р
    Агент
    +7 (985) Показать номер
    Посмотреть контакты

    Не нашли подходящего объявления?

    Оставьте заявку, и наши риэлторы подберут псн в районе Раменского

    (0)