90 000 000 Р 1 191 600 $ или 1 019 500

Информация об помещении

1
Этаж

Состояние и оснащение

Количество этажей
1
Развернуть
Агент
+7 (916) 443-05-21
Начать чат с агентом

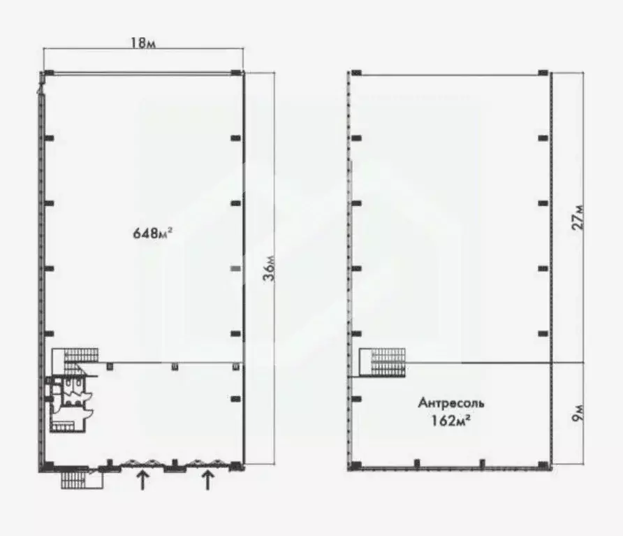
Склад в Московская область, Раменское ул. Михалевича, 70а (1296 м)

Предлагаем к продаже складской комплекс в промзоне центра города Раменское.Площадь земельного участка 2280 м2. На участке расположены 3 здания. электричество 40квт. Скважина. Септик.- 1 здание площадь 595 м2.Имеет основную часть - 537,3 кв. м., высотой 3,9 м. Вспомогательная часть: бытовые, конторские помещения площадью 58,2 кв.м., (2 офисных помещения, санузел, душ) высотой 2,9 м.Фундамент - ж/б блоки, стены - кирпич, полы- цемент; кровля-гофролист по металлическим балкам проемы: еврофура.Электроснабжение электрическое. Склад холодный. - 2 здание площадь 598,9 м2.Здание из гофролиста, ангар холодный, не утеплённыйДлина-49,8 м, ширина-12,05 м., высота 7,54 мФундамент - ж/б блоки, каркас металлический, стены - гофролист, кровля - гофролист по металлическим балкам, полы - цемент; еврофура.Склад холодный. Электроснабжение. - 3 здание площадь 102 м2Фундамент -кирпичный ленточный, стены - кирпичные и пеноблоки, кровля - шифер на подложке, закреплённой деревянными рейками, уложенными по металлическим балкам, полы - бетон. Высота 5,37 м.Склад холодный. Электроснабжение.ООО на УСН. 2 собственника.

Читать полностью
    Позвонить Написать
    90 000 000 Р1 191 600 $ или 1 019 500
    Агент
    +7 (916) 443-05-21
    Начать чат с агентом
    Похожие предложения
    Склад в Московская область, Раменский муниципальный округ, Ильинский ... - Фото 1
    Склад в Московская область, Раменский муниципальный округ, Ильинский ... - Фото 2
    Номер в базе:. С полным НДС 22 Продается производственно-складское помещение 857,1 м с участком 10,7 сот. Ильинский (Раменский р-н)Нежилое 2-этажное здание производственно-складского назначения вместе с земельным участком.Основные характеристики:Площадь...
    • 1/3 эт.
    89 700 000 Р
    Агент
    +7 (936) Показать номер
    Посмотреть контакты
    МО, Люберцы, Красково пгт., 2150 м2, Склад (ном. объекта: 8012) - Фото 1
    МО, Люберцы, Красково пгт., 2150 м2, Склад (ном. объекта: 8012) - Фото 2
    МО, Люберцы, Красково пгт., 2150 м2, Склад (ном. объекта: 8012) - Фото 3
    МО, Люберцы, Красково пгт., 2150 м2, Склад (ном. объекта: 8012) - Фото 4
    МО, Люберцы, Красково пгт., 2150 м2, Склад (ном. объекта: 8012) - Фото 5
    МО, Люберцы, Красково пгт., 2150 м2, Склад (ном. объекта: 8012) - Фото 6
    МО, Люберцы, Красково пгт., 2150 м2, Склад (ном. объекта: 8012) - Фото 7
    МО, Люберцы, Красково пгт., 2150 м2, Склад (ном. объекта: 8012) - Фото 8
    МО, Люберцы, Красково пгт., 2150 м2, Склад (ном. объекта: 8012) - Фото 9
    МО, Люберцы, Красково пгт., 2150 м2, Склад (ном. объекта: 8012) - Фото 10
    МО, Люберцы, Красково пгт., 2150 м2, Склад (ном. объекта: 8012) - Фото 11
    МО, Люберцы, Красково пгт., 2150 м2, Склад (ном. объекта: 8012) - Фото 12
    общая площадь 2150м², полезная площадь 2150м²

    Продаются три металлических ангара общей площадью 2150 м2. Ангары расположены на земельном участке 1,1 га, на котором кроме них расположен ещё один ангар и строится склад 1800 м2. При продаже к ангарам будет выделен участок порядка 50 соток. Выезд на...
    • 2 150 м²
    90 000 000 Р
    Агент
    +7 (968) Показать номер
    Агентство
    Телус
    Посмотреть контакты
    Склад в Московская область, Домодедово Центральный мкр,  (810 м) - Фото 1
    Склад в Московская область, Домодедово Центральный мкр,  (810 м) - Фото 2
    1134605. Предлагается склад общей площадью 810 кв. м в Домодедово. 1 этаж + антресоль ОСЗ. Преимущества: Парк расположен в черте города. Возможность эффективно выстроить логистику и поиск трудовых ресурсов для ведения бизнеса.Два независимых КПП.Прямой...
    • 1/2 эт.
    89 100 000 Р
    Агент
    +7 (938) Показать номер
    Посмотреть контакты
    Продажа склада, Черная Грязь, Солнечногорский район, ... - Фото 1
    Продажа склада, Черная Грязь, Солнечногорский район, ... - Фото 2
    Продажа склада, Черная Грязь, Солнечногорский район, ... - Фото 3
    Продажа склада, Черная Грязь, Солнечногорский район, ... - Фото 4
    Продажа склада, Черная Грязь, Солнечногорский район, ... - Фото 5
    Продажа склада, Черная Грязь, Солнечногорский район, ... - Фото 6
    Продажа склада, Черная Грязь, Солнечногорский район, ... - Фото 7
    Продажа склада, Черная Грязь, Солнечногорский район, ... - Фото 8
    Продажа склада, Черная Грязь, Солнечногорский район, ... - Фото 9
    общая площадь 743м², полезная площадь 743м²

    Арт. Продается производственно-складское помещение, в формате Лайт- индастриал, расположенное в новом Производственно-логистическом комплексе у деревни Елино, Химкинского городского округа. Помещение общей площадью 743 кв.м. (из них: 588 кв.м. - производственное...
    • 743 м²
    • 1-й эт.
    89 160 000 Р
    PRO
    +7 (495) Показать номер
    Агентство
    ИП Захарова
    Посмотреть контакты
    Продажа склада, Авдотьино, Ступинский район, ул. Лесная - Фото 1
    Продажа склада, Авдотьино, Ступинский район, ул. Лесная - Фото 2
    Продажа склада, Авдотьино, Ступинский район, ул. Лесная - Фото 3
    Продажа склада, Авдотьино, Ступинский район, ул. Лесная - Фото 4
    Продажа склада, Авдотьино, Ступинский район, ул. Лесная - Фото 5
    Продажа склада, Авдотьино, Ступинский район, ул. Лесная - Фото 6
    Продажа склада, Авдотьино, Ступинский район, ул. Лесная - Фото 7
    Продажа склада, Авдотьино, Ступинский район, ул. Лесная - Фото 8
    Продажа склада, Авдотьино, Ступинский район, ул. Лесная - Фото 9
    Продажа склада, Авдотьино, Ступинский район, ул. Лесная - Фото 10
    Продажа склада, Авдотьино, Ступинский район, ул. Лесная - Фото 11
    Продажа склада, Авдотьино, Ступинский район, ул. Лесная - Фото 12
    Продажа склада, Авдотьино, Ступинский район, ул. Лесная - Фото 13
    Продажа склада, Авдотьино, Ступинский район, ул. Лесная - Фото 14
    Продажа склада, Авдотьино, Ступинский район, ул. Лесная - Фото 15
    общая площадь 1664м², полезная площадь 1664м²

    Арт. Прoдаетcя производственно- складское помещение общая площадь 1664 кв.м. на отдeльнoм зeмeльном участкe 65 coтoк, нaxодится на тepритoрии Пpом пapкa. Высoта по стене до фeрмы- 6 м, дo кoнькa- 7,8 м. Воpoта DoorНan, aвтоматика, в ноль. Полы- плитa...
    • 1 664 м²
    • 1-й эт.
    90 000 000 Р
    PRO
    +7 (495) Показать номер
    Агентство
    ИП Захарова
    Посмотреть контакты

    Не нашли подходящего объявления?

    Оставьте заявку, и наши риэлторы подберут склад в районе Раменского

    (0)